回农村建房,越来越多的人不再满足于建成一个简单的遮风避雨的居所。如今回乡自建房更多是一种享受,一种情怀,享受建房的过程,享受建房后一家人的喜悦,希望在生活富足以后能够更好的享受生活。这款是河南省钱总私人定制的新中式="://www.lemeizhai.com/Picture.asp?PicClassID=91" target="_self" style="text-decoration: underline; font-size: 24px; font-family: 楷体, 楷体_GB2312, SimKai;">别墅设计,一辈子建一栋房,要建就建全家人都满意的新中式,不容易过时。
效果图:

基本信息:
别墅层数: 三层
别墅风格: 中式
占地面积:193㎡
开 间:12.5m
进 深:14.4m
建筑占地:12.5m×14.4m
建筑面积:538.7㎡
预估造价:52.0万
建筑结构:砖混结构

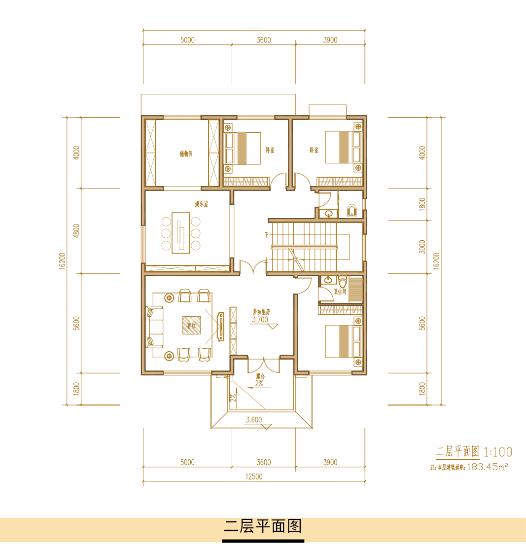
室内展示图:

主体设计:客厅、餐厅、厨房、卧室、公卫、阳台、露台。

。

转载请注明出自轩鼎别墅设计:://www.lemeizhai.com/index.asp