此款15m×14m的户型,是为广东陈总定制设计的一款三层自建房。陈总在深圳工作,今年想在老家把房子重建一下。陈总的宅基地12*13,想设计一个独特一点的房型。在和方案师沟通后。为陈总设计的="://www.lemeizhai.com/Picture.asp?PicClassID=91" target="_self">三层别墅设计
效果图:

基本信息:
别墅层数: 三层
别墅风格: 欧式
占地面积:210㎡
开 间:15m
进 深:14m
占地:15m×14m
建筑面积:520㎡
预估造价:83.0万
建筑结构:其他结构


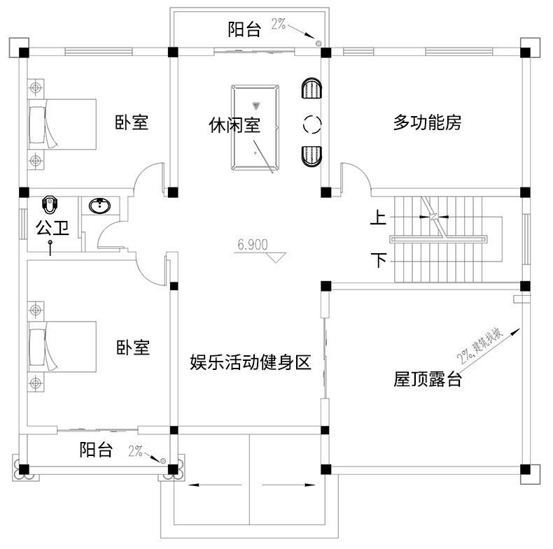
室内展示图:

主体设计:客厅、餐厅、厨房、卧室、公卫、阳台、露台。

。

转载请注明出自轩鼎别墅设计:://www.lemeizhai.com/index.asp