住着别墅,享受生活,如今不仅仅是生活在城市里面的朋友才有的,随着农村生活水平的提高,家家户户,都盖新房,住别墅,这都是常见的事。现在的别墅不过都大同小异,如何建一栋不一样的别墅呢?当然现代风格是首选,这种="://www.lemeizhai.com/Picture.asp?PicClassID=91" target="_self">别墅设计线条简单,建筑总体感觉轻松,舒适自然,深受年轻人喜爱。
效果图:

基本信息:
别墅层数: 四层
别墅风格: 现代
占地面积:118㎡
开 间:8m
进 深:14.8m
建筑占地:8m×14.8m
建筑面积:527.83㎡
预估造价:68.0万
建筑结构:框架结构


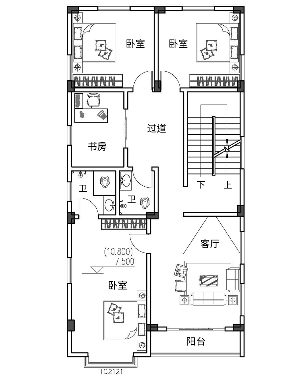
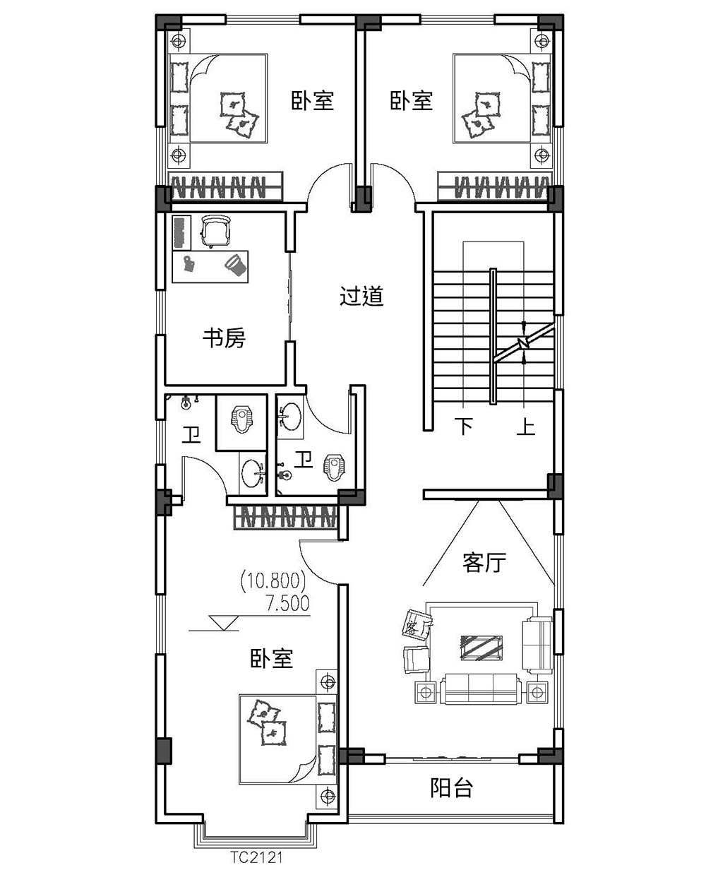
室内展示图:

主体设计:客厅、餐厅、厨房、卧室、公卫、阳台、露台。



。
转载请注明出自轩鼎别墅设计:://www.lemeizhai.com/index.asp