农村建房面积不需要多大,建筑面积:215.47㎡左右刚刚好,建出来简约大气实用。="://www.lemeizhai.com/Picture.asp?PicClassID=88" target="_self" style="font-size: 24px; text-decoration: underline;">二层别墅设计更显温馨,一层给父母或家里的老人,二层自己和孩子住,空间不浪费,造价普通人家都能承受。
效果图:

基本信息:
别墅层数: 二层
别墅风格: 欧式
占地面积:89㎡
开 间:10.7m
进 深:8.4m
建筑占地:10.7m×8.4m
建筑面积:215.47㎡
预估造价:32.0万
建筑结构:框架结构


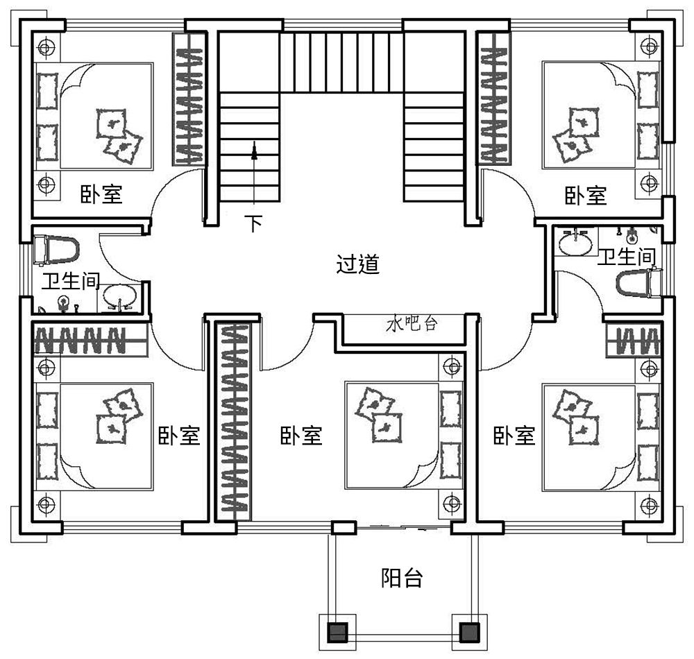
室内展示图:
主体设计:客厅、餐厅、厨房、卧室、公卫、阳台、露台。


。
转载请注明出自轩鼎别墅设计:://www.lemeizhai.com/index.asp