在农村,春暖花开的地方,建一栋房子,一家子人,一日三餐,四季美景,在这里岁月静好,时光悠长,你喜欢这样的生活吗?那就赶快行动起来吧,这款现代风格的="://www.lemeizhai.com/Picture.asp?PicClassID=88" target="_self" style="font-size: 24px; text-decoration: underline;">二层小别墅设计,为自己为爸妈建一个时尚温馨的家。
效果图:

基本信息:
别墅层数: 二层
别墅风格: 现代
占地面积:71㎡
开 间:6.1m
进 深:11.8m
建筑占地:6.1m×11.8m
建筑面积:164.71㎡
预估造价:21.0万
建筑结构:砖混结构


室内展示图:

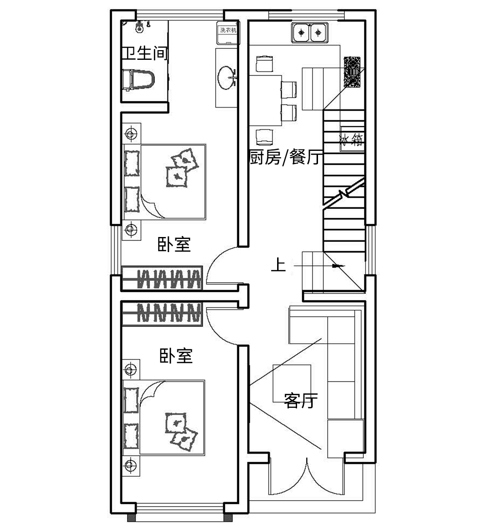
主体设计:客厅、餐厅、厨房、卧室、公卫、阳台、露台。

。
转载请注明出自轩鼎别墅设计:://www.lemeizhai.com/index.asp