农村的变化真大,一年比一年不同,马路变宽了,路灯也亮了,民房也变成了别墅。现在农村的生活条件好了,农民的想法也不一样了,在乡下建个小别墅,既舒适又实用,看着也让人赏心悦目。2022年就要开始了,看到别人的别墅都很漂亮,是不是也想建一套。今天小编就给大家精选了一款大气又实用的="://www.lemeizhai.com/Picture.asp?PicClassID=88" target="_self">二层农村别墅设计希望大家喜欢
效果图:

基本信息:
墅层数: 二层
别墅风格: 欧式
占地面积:105㎡
开 间:11.4m
进 深:10.4m
建筑占地:11.4m×10.4m
建筑面积:211.28㎡
预估造价:38.0万
建筑结构:框架结构
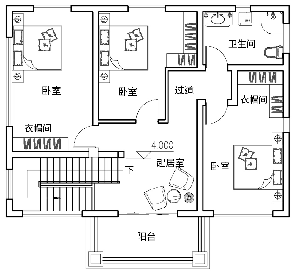
室内展示图:

主体设计:客厅、餐厅、厨房、卧室、公卫、阳台、露台。

。
转载请注明出自轩鼎别墅设计:://www.lemeizhai.com/index.asp