回家农村建房的越来越多,各种风格别墅在农村遍地开花。除了典型的欧式,现代风格不管是色彩搭配还是外观设计上,都给人耳目一新的感觉。今天给大家推荐一款现代风格="://www.lemeizhai.com/Picture.asp?PicClassID=88" target="_self" style="font-size: 24px; text-decoration: underline;">别墅设计,挑一个喜欢的回老家建栋房,享受贴近大自然,被山水环绕包裹着的生活,清新的空气,微风拂面,风中都是花草的香味,这是多么舒适的环境,是多么令人向往的生活。
效果图:

基本信息:
设计功能:
别墅层数: 二层
别墅风格: 现代
占地面积:85㎡
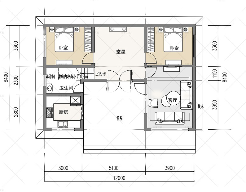
开 间:12m
进 深:8.4m
建筑占地:12m×8.4m
建筑面积:167㎡
预估造价:22.0万
建筑结构:砖混结构

室内展示图:

主体设计:客厅、餐厅、厨房、卧室、公卫、阳台、露台。

。
转载请注明出自轩鼎别墅设计:://www.lemeizhai.com/index.asp