一栋房子,几间屋子,再有几个亲人陪伴,就是一个家。不管你离家多久多远,它在你记忆里总是温暖如春。下面这款周总私人定制的="://www.lemeizhai.com/Picture.asp?PicClassID=88" target="_self" style="font-size: 24px; text-decoration: underline;">二层新中式别墅设计,复古与现代完美融合,还带有车库,简直就是完美户型。
效果图:

基本信息:
设计功能:
别墅层数: 二层
别墅风格: 中式
占地面积:223㎡
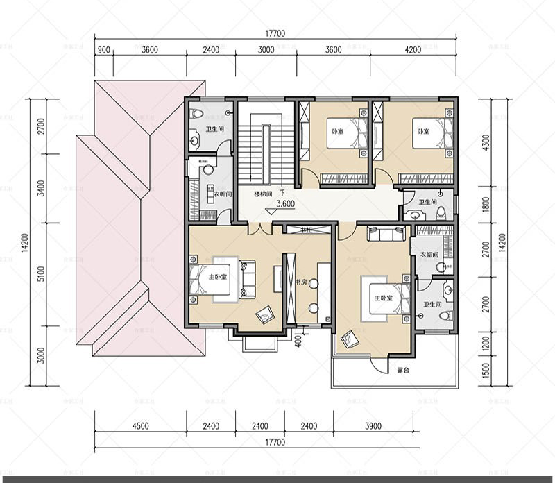
开 间:17.7m
进 深:14.2m
建筑占地:17.7m×14.2m
建筑面积:385.54㎡
预估造价:42.0万
建筑结构:砖混结构
室内展示图:

主体设计:客厅、餐厅、厨房、卧室、公卫、阳台、露台。

。
转载请注明出自轩鼎别墅设计:://www.lemeizhai.com/index.asp