以前家庭都有好几个孩子,那些孩子如今都已经成家立业,有了自己的小家庭了,但是兄弟之间的感觉无法割舍,现在的独生子女都羡慕家里有姊妹的,很多事情都可以找姐妹商量,拿主意。兄弟和睦是一个家族最大的财富,即使有了自己的小家,但是还是想住在一起,家里有三兄弟的,下面这套三拼别墅一定适合你。
效果图:

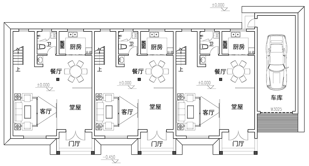
图纸介绍:
13.2m×9.8m农村欧式三拼="://www.lemeizhai.com/Picture.asp" target="_self" style="font-size: 24px; text-decoration: underline;">别墅设计图,欧式风格,外观配色低调,屋顶搭配蓝色琉璃瓦,显得格外的好看,户型布局:9房9厅6卫3厨1露台。
设计功能:
别墅层数: 二层
别墅风格: 欧式
占地面积:276㎡
开 间:26.8m
进 深:13.2m
建筑占地:26.8m×13.2m
建筑面积:517㎡
预估造价:62.0万
建筑结构:砖混结构


室内展示图:

主体设计:客厅、餐厅、厨房、卧室、公卫、阳台、露台。

。
转载请注明出自轩鼎别墅设计:://www.lemeizhai.com/index.asp