近几年,农村自建房越来越流行是有原因的,不仅外观、室内布局可以按照自己的想法来设计,而且比买房划算多了。二层欧式别墅设计,外观富贵,简约,漂亮。符合普通建房家庭的需求。

效果图:

图纸介绍:
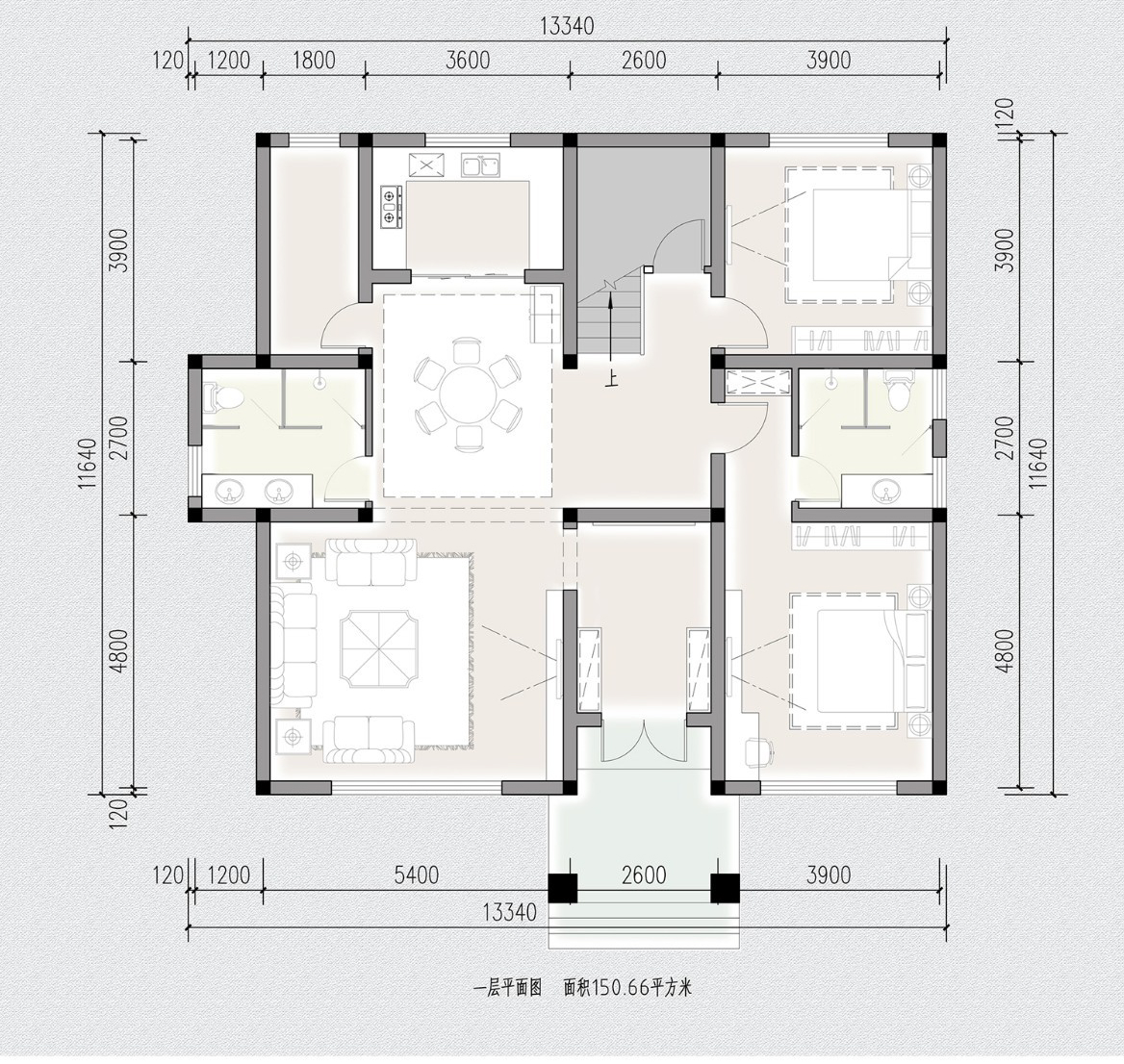
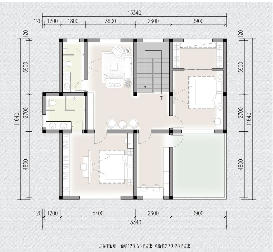
二层欧式="://www.lemeizhai.com/Picture.asp?PicClassID=88" target="_self">别墅设计,外观富贵,简约,漂亮。户型布局:6房3厅4卫1厨1露台
设计功能:
占地面积:156㎡
开 间:13.4m
进 深:11.7m
建筑占地:13.4m×11.7m
建筑面积:279.28㎡
预估造价:43.8万
建筑结构:砖混结构
功 能 间:车库 露台 书房


室内展示图:

主体设计:客厅、餐厅、厨房、卧室、公卫、阳台、露台。

。
转载请注明出自轩鼎别墅设计:://www.lemeizhai.com/index.asp