="://www.lemeizhai.com/Picture.asp?PicClassID=85" target="_self" style="font-family: 楷体, 楷体_GB2312, SimKai; font-size: 24px; text-decoration: underline;">一层别墅设计和="://www.lemeizhai.com/Picture.asp?PicClassID=91" target="_self" style="font-family: 楷体, 楷体_GB2312, SimKai; font-size: 24px; text-decoration: underline;">三层别墅设计各有优劣,一层别墅设计适合给父母当养老房,但人口多的家庭不适合一层的,那怎么办呢?今天我给大家带来的这款一层与三层结合的别墅就解决了刚才的问题,米黄色、蓝色、褐色,三色配色漂亮美观,是建房的好选择。
效果图:

:
图纸介绍:
预估造价:62.0万左右的="://www.lemeizhai.com/search.asp?SearchType=Software&imageField.x=29&imageField.y=31&SearchKey=%D0%C2%D6%D0%CA%BD" target="_self" style="font-size: 24px; text-decoration: underline;">新中式别墅设计图,一层与三层的结合有内置车库,布局实用是一款非常不错的设计方案!
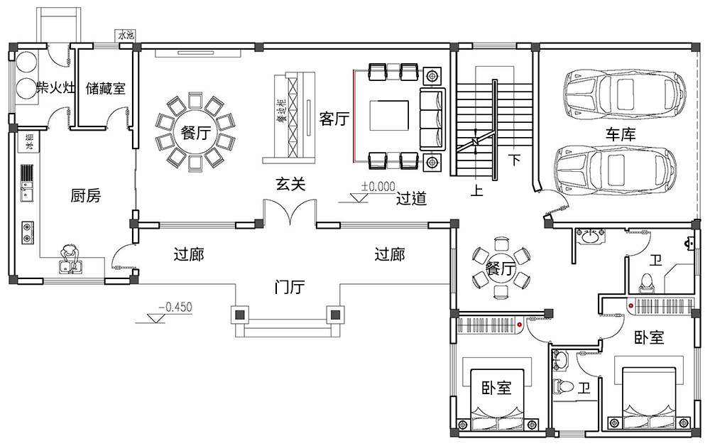
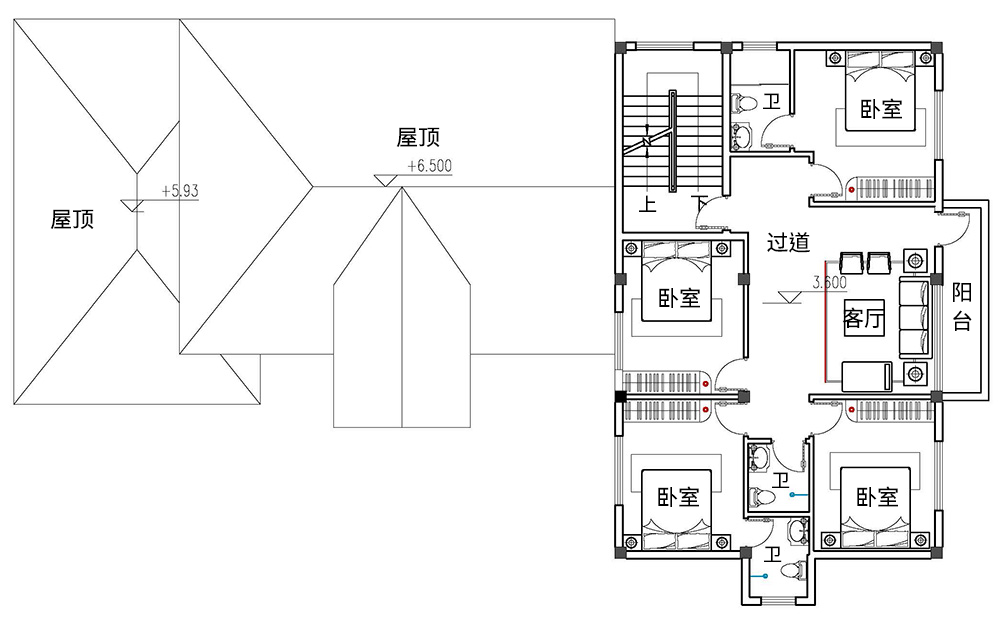
设计功能:
别墅层数: 三层
别墅风格: 新中式
占地面积:229㎡
开 间:23.3m
进 深:13.2m
建筑占地:23.3m×13.2m
建筑面积:459.32㎡
预估造价:62.0万
建筑结构:框架结构


室内展示图:

主体设计:客厅、餐厅、厨房、卧室、公卫、阳台、露台。

。

转载请注明出自轩鼎别墅设计:://www.lemeizhai.com/index.asp