过年回家是一件开心的事,但有车的家庭却有点烦恼,没有停车地方而且还怕熊孩子让自己的爱车受损,但今天这款二层带车库的="://www.lemeizhai.com/Picture.asp?PicClassID=88" target="_self" style="font-family: 楷体, 楷体_GB2312, SimKai; font-size: 24px; text-decoration: underline;">别墅设计让您的爱车有处可停
效果图:

设计功能:
别墅层数: 二层
别墅风格: 新中式
占地面积:176㎡
开 间:13m
进 深:11.7m
建筑占地:13m×11.7m
建筑面积:334.7㎡
预估造价:32.0万
建筑结构:砖混结构
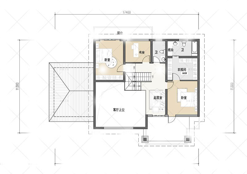
室内展示图:

主体设计:客厅、餐厅、厨房、卧室、公卫、阳台、露台。

。
转载请注明出自轩鼎别墅设计:://www.lemeizhai.com/index.asp