有人说建小别墅就是浪费金钱,不如普通房屋好,这只能说仁者见仁智者见智了。别墅的优点是有很多的,就拿框架结构的别墅做个例子,框架结构的别墅保温性比传统房屋好,不管什么样的二层别墅都比传统房屋抗震强。今天给大家推荐一款低调简约但十分耐看的="://www.lemeizhai.com/Picture.asp?PicClassID=88" target="_self" style="font-size: 24px; text-decoration: underline;">二层别墅设计
图纸介绍:

="://www.lemeizhai.com/search.asp?SearchType=Software&imageField.x=31&imageField.y=37&SearchKey=%D6%D0%CA%BD%B1%F0%CA%FB%C9%E8%BC%C6" target="_self" style="font-family: 楷体, 楷体_GB2312, SimKai; font-size: 24px; text-decoration: underline;">中式别墅设计造型美观,内部布局合理,室内采光通风情况良好,适合一家人居住。
别墅层数: 二层
别墅风格: 新中式
占地面积:113㎡
开 间:12m
进 深:10m
建筑占地:12m×10m
建筑面积:226.9㎡
预估造价:28.0万
建筑结构:砖混结构


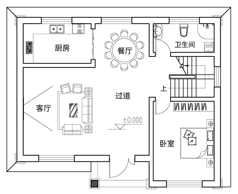
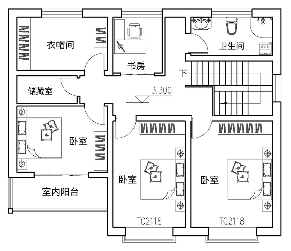
室内展示图:

主体设计:客厅、餐厅、厨房、卧室、公卫、阳台、露台。
。
转载请注明出自轩鼎别墅设计:://www.lemeizhai.com/index.asp