很多开春就要建房的朋友,手里却还没找到合适的布局图,这可愁坏了吧。别急,轩鼎小编整理了几十种适用于农村自建房的="://www.lemeizhai.com/" target="_self" title="别墅平面户型大全">别墅平面户型大全,实用型极强,空间利用率也是极高。包含了一层自建房,两层自建房,双拼等几十种款式,总有一款合适的布局属于你,一起看看吧。
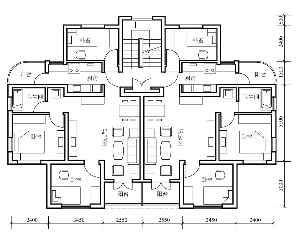
第一款:这是一款双拼设计户型,每户三间卧室,带有一间公卫。这款户型厨房带有拐角阳台,厨房内的油烟都快速的通过阳台的窗户流通,使室内空气清新。起居厅和阳台相连,不仅采光效果好,屋内的通风效果也是杠杠的。
第二款:五层户型图,非常适合人口多的家庭,每个人都有独立的卧室。一大家子其乐融融,让整栋别墅更加温馨。
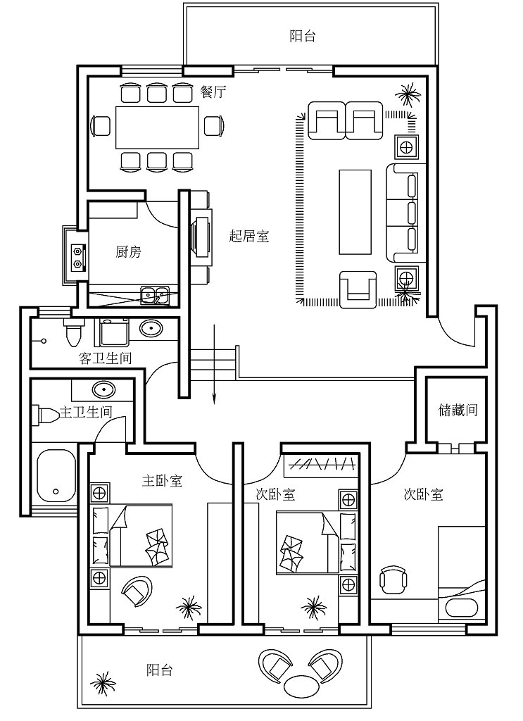
第三款

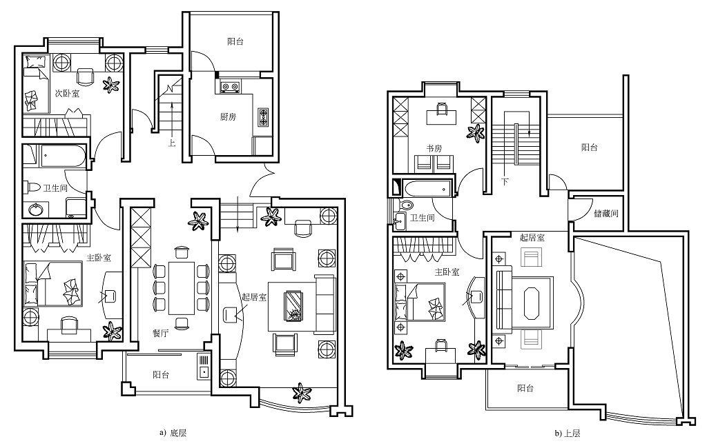
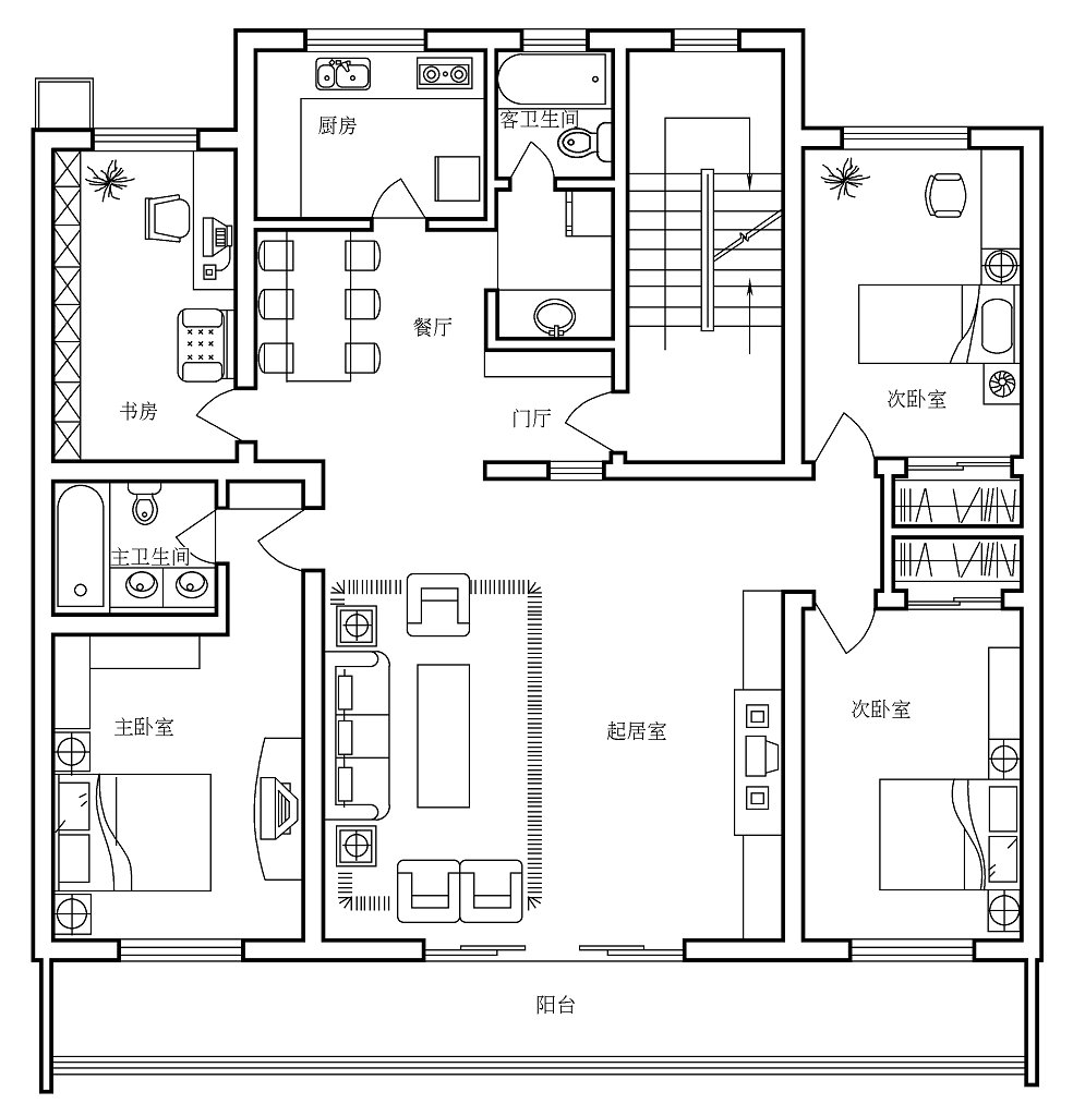
第四款:二层别墅设计图,一楼带有老人房,卫生间紧靠老人房,方便老人的日常起居。客厅带有阳台,种植花草或者晾晒衣物。二楼一共三间卧室,除了家人使用居住外,还可留一间客房。面积不是很大,适合宅基地较小的业主家庭建造。

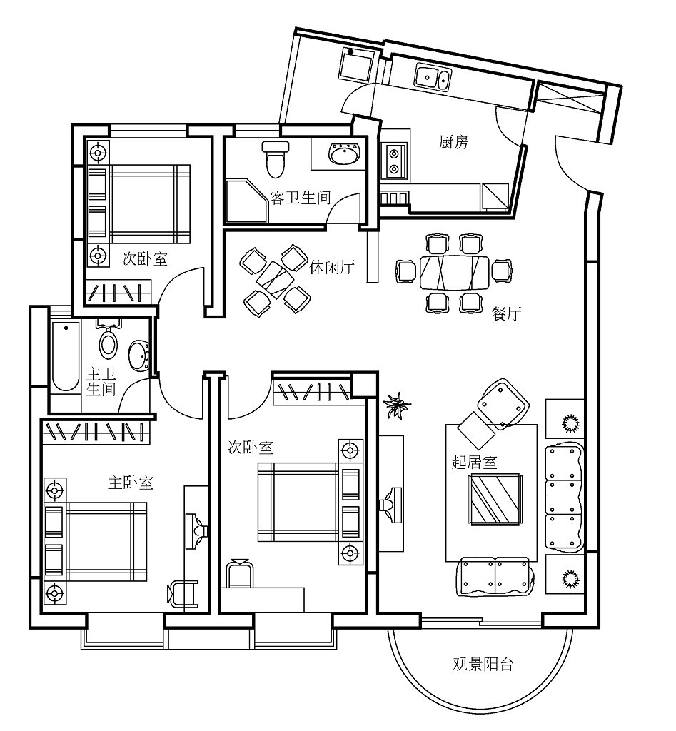
第五款:喜欢复式别墅的业主,可以参考一下这个户型哦,小编认为有很多地方是可以借鉴的,比如厨房带阳台,餐厅带阳台,吃饭和做饭都可以欣赏美景呢。

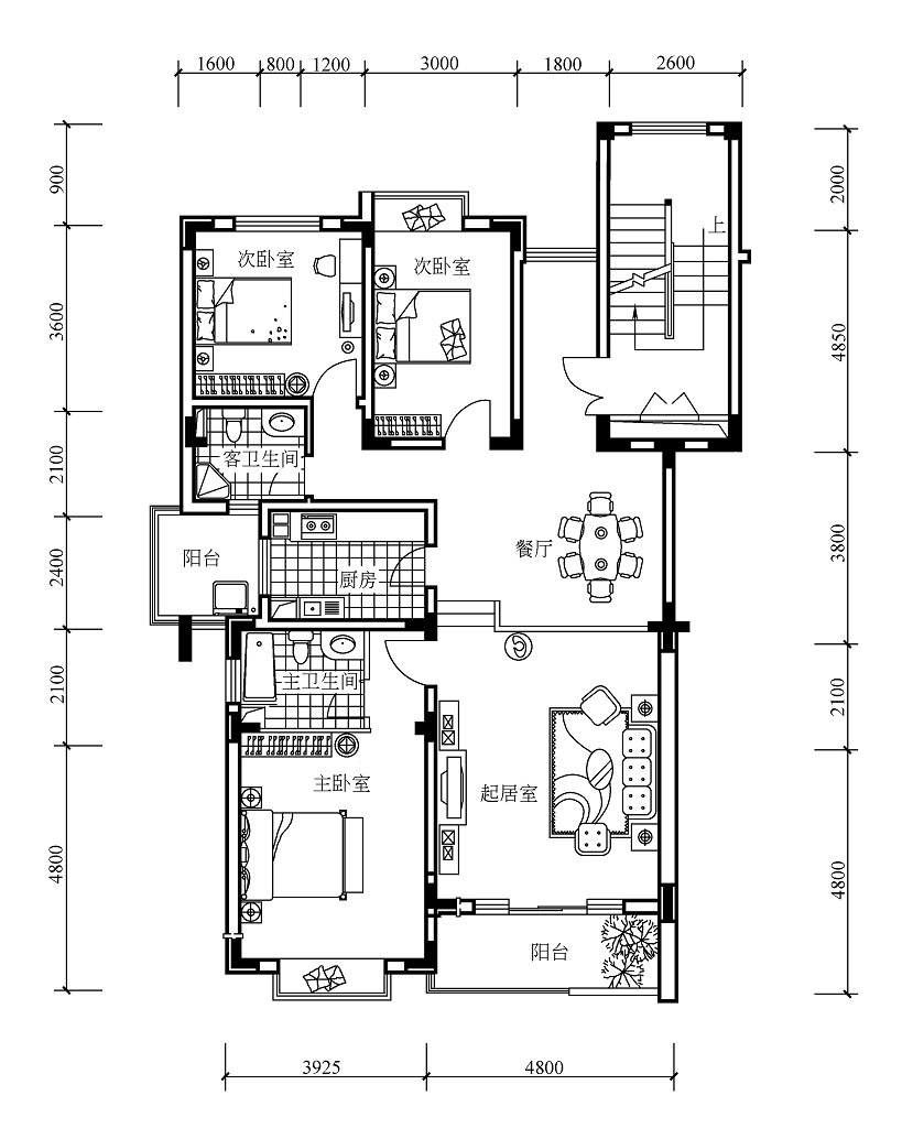
第六款:共四个卧室,顶层为多功能卧室,衣帽间,卫生间以及卧室一体,可做主人房。屋顶的这个大露台,简直是太适合家庭聚餐了。

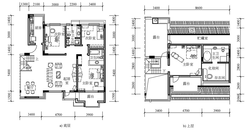
第七款:这款适合占地在130平内的户主朋友,一楼三间卧室,二楼一间主卧室。面积虽然不是太大,但是一款复式的设计哦。

第八款:本层两个卧室,主卧+次卧。客厅带有南阳台,采光以及通风效果图都是较好的。

第九款:这款的亮点就是每个房间的八角窗设计了。除了两个卧室以外还带有一间书房。人口较多的话也可以将此间房间改为卧室哦。

第十款

第十一款

第十二款

第十三款:小编太喜欢这款阳台的设计了,屋里的采光绝对的好。基本设施齐全,喜欢客厅和卧室带阳台的,那这款非常适合哦。

第十四款:双拼户型,两个布局,可做参考。

第十五款:本套户型三间卧室,其中一间带套卫的可留给老人使用。厨房位置属于特殊的户型是设计了。如您家的宅基地也是不规则样式,这款做为参考在合适不过了。

第十六款

第十七款

第十八款:一款一层的平面图,一共两间卧室,一间书房,书房也改做一间客房哦。厨房,餐厅卫生间,客厅等基本的设施齐全。厨房不仅连着餐厅还有阳台哦。卧室也都带有飘窗的设计。适合那些在外地工作,准备给父母建房的朋友。

第十九款:同样是一款一层的设计图。主卧,次卧+书房的设计。

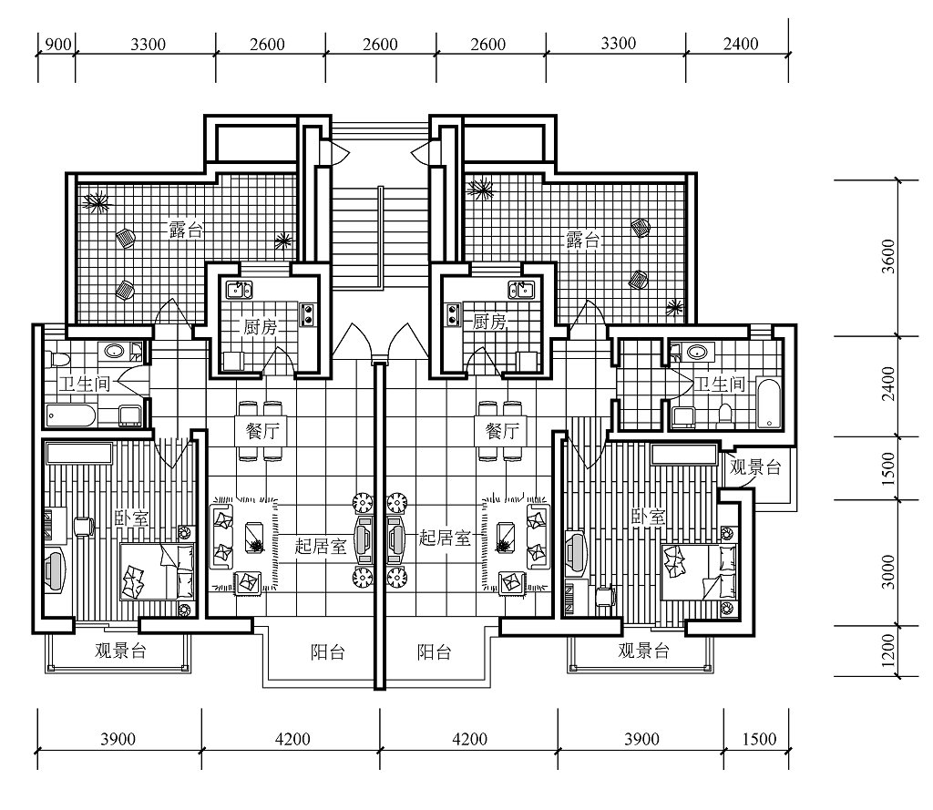
第二十款:双拼户型图,这款最大的亮点小编认为是每间卧室的阳台了,这要是住在里面,这采光绝对杠杠的

第二十一款

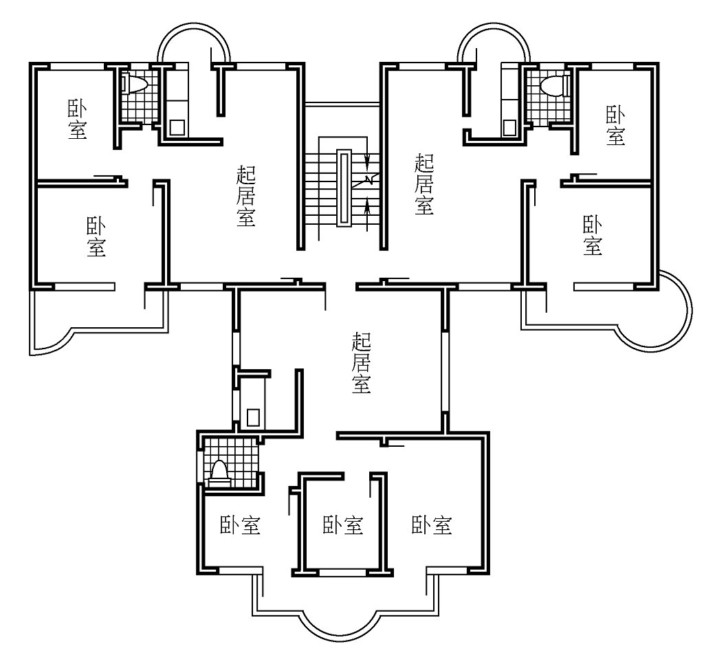
第二十二款:户型虽然不是方方正正的双拼,但是这款很适合家里人口较多的户主。兄弟两家共用一个楼梯,也可单独自家使用。

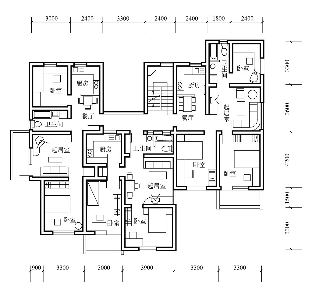
第二十三款

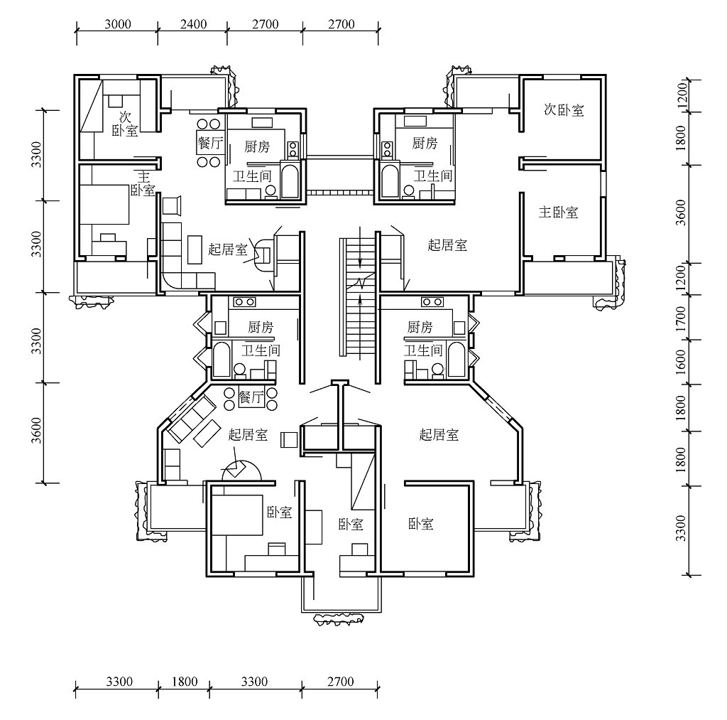
第二十四款:双拼设计,本层每家一共三间卧室。宅基地虽然不规则,但屋内的设施应有尽有。
