今天轩鼎建筑小编继续给大家分享几十款="://www.lemeizhai.com/" target="_self" title="农村自建房">农村自建房设计布局图,总有一款适合您的宅基地面积。
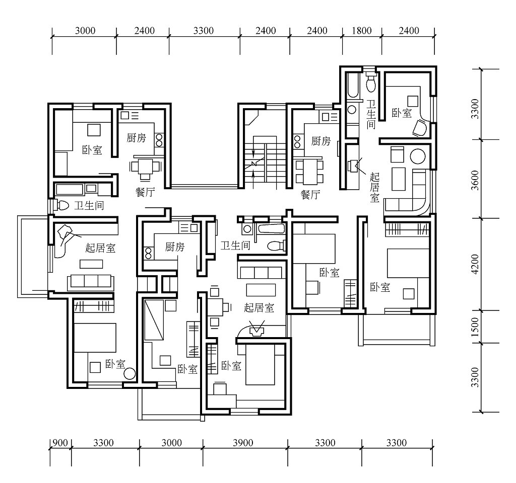
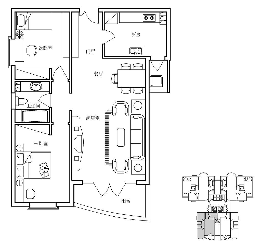
第一款:一款不规则户型设计,室内布局可做参考哦。

第二款:
面宽17.7米,进深15.9米设计图,内部卧室较多,这款设计因内部卧室,卫生间以及厨房较多,可
做出租房或者民宿布局。

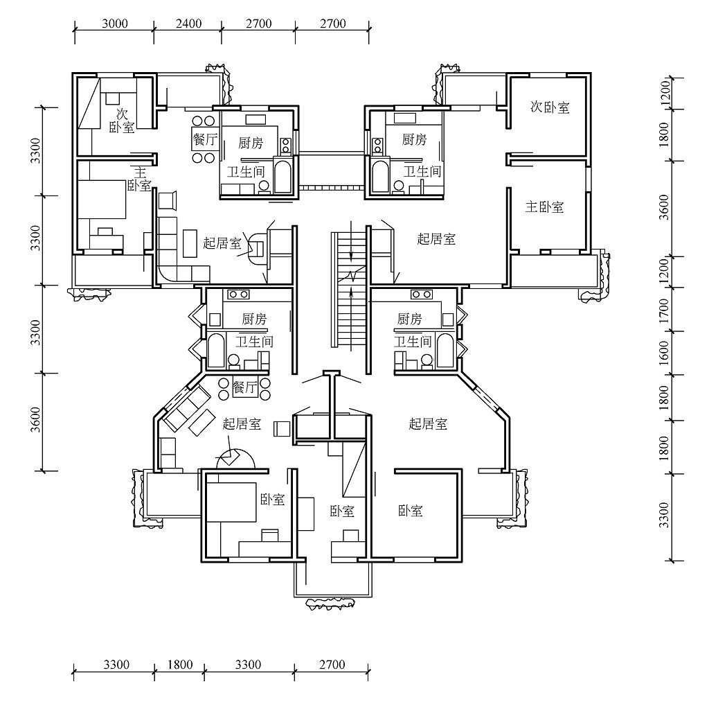
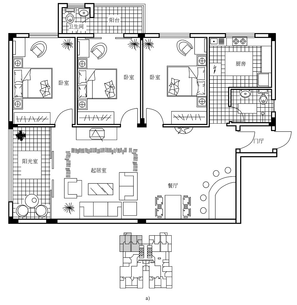
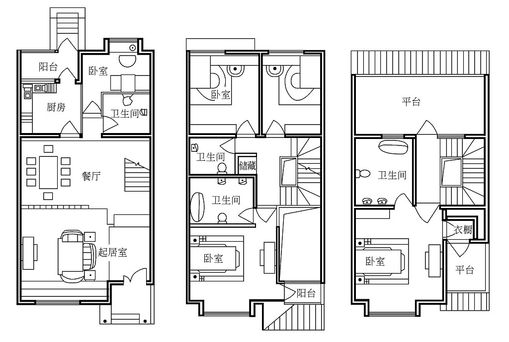
第三款

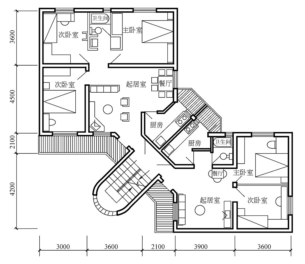
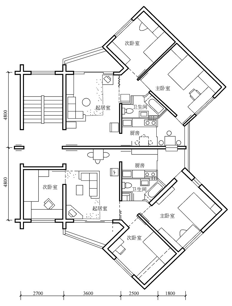
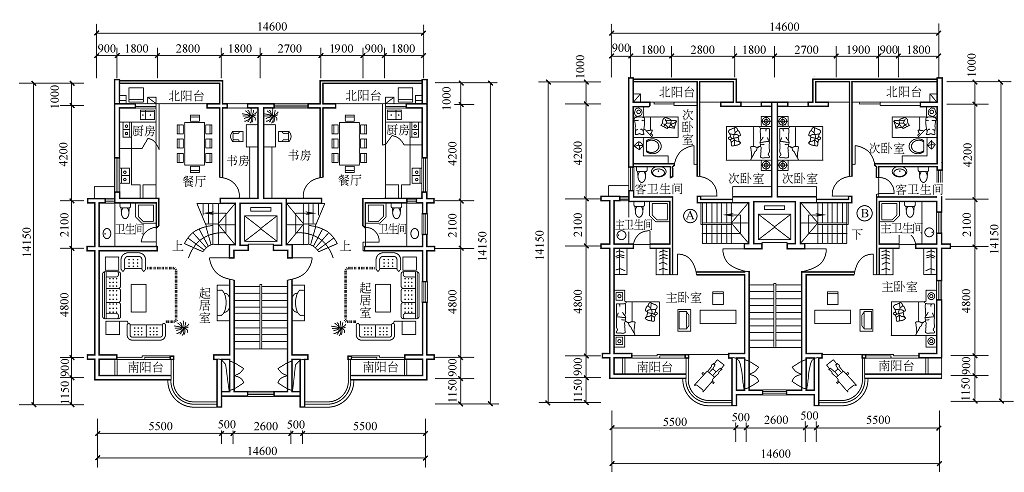
第四款:公用一个楼梯 的双拼设计。多向开窗,室内采光和通风效果图极佳。

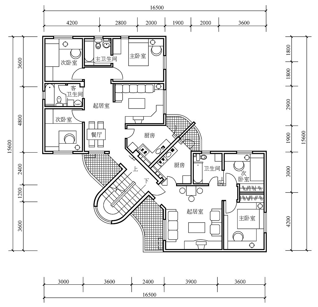
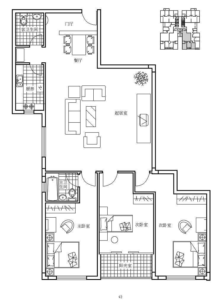
第五款:
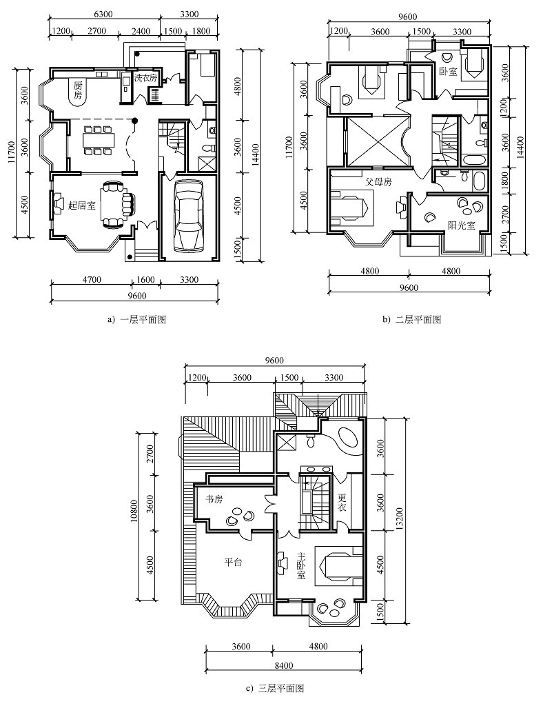
面宽16.5米,进深15.6,是一款大面积的双拼户型布局。每家三家卧室,其中一间为主卧,带有独
立的卫生间,其余两间可做客卧。厨房餐厅相邻。

第六款:
这款布局是一款典型的三家公用一格楼梯。每家独门独户的设计,保护了个人的隐私。每家客厅,卧
室,卫生间,厨房基本设施齐全。

第七款:每户三间卧室,餐厅与厨房相邻,方便就餐。

第八款:
入户门进入,首先映入眼帘的就是超大的起居厅,平是孩子们可在这休闲娱乐,大人们可在阳台喝
茶聊天。一共三间卧室,其中一间主人房,带有独立的卫生间以及阳台。阳台可通向另一间卧室。独立的
卫生间做到了干湿分离,提供生活质量。是一款非常不错的设计方案。

第九款:双拼设计户型。

第十款:一款小户型的别墅布局。虽然面积小,但是该有的设施还是齐全的。

第十一款

第十二款

第十三款;五层设计图外观,想做五层造型的业主可参考。

第十四款:适合宅基地大,人口较多的业主建造,带有室内电梯,以及多个卧室,建在村里,很有面子。

第十五款

第十六款

第十七款:
宽敞的大客厅,接待朋友有面子。厨房餐厅相连,方便就餐,阳台可通向保姆房。其中一间卧室为
主人房,带有书房,储藏间,卫生间。储藏间可改为一间小型的衣帽间,方便日常的衣物收纳。

第十八款:这个户型的开放式阳台太爱了吧,日常养花,晒被,休闲娱乐,场地足够了。

第十九款

第二十款:两间卧室,带公共卫生间。客厅带阳台,通风效果好。
第二十一款:

第二十二款:复式挑空设计,使一楼大客厅更宽敞大气。

第二十三款

第二十四款

第二十五款

第二十六款

第二十七款:带电梯洋房设计,双拼户型,独门独户。户型 为南北通透。

第二十八款:小面积三层户型图,一楼基本设计齐全,带有老人房,方便老人的日常起居。二楼三间卧室。三楼一间卧室,并带有大露台。

第二十九款:带室内车库的三层别墅布局图。

第三十款

第三十一款:三层布局图。
