莆田贺先生想要一款极富现代气息新中式别墅,满足日常所需的同时还要满足他的个人需求,他是一位作家通过网络找到了我们,贺先生的要求是有能够安静思考的地方,还要厕所足够的近,阳台足够的多,方便他放松心情。本公司精选这款="://www.lemeizhai.com/search.asp?SearchType=Software&imageField.x=29&imageField.y=43&SearchKey=%D0%C2%D6%D0%CA%BD" target="_self" style="font-size: 24px; text-decoration: underline;">新中式别墅设计符合贺先生的要求,别墅三层,布局完善,满足贺先生所有要求
效果图☟

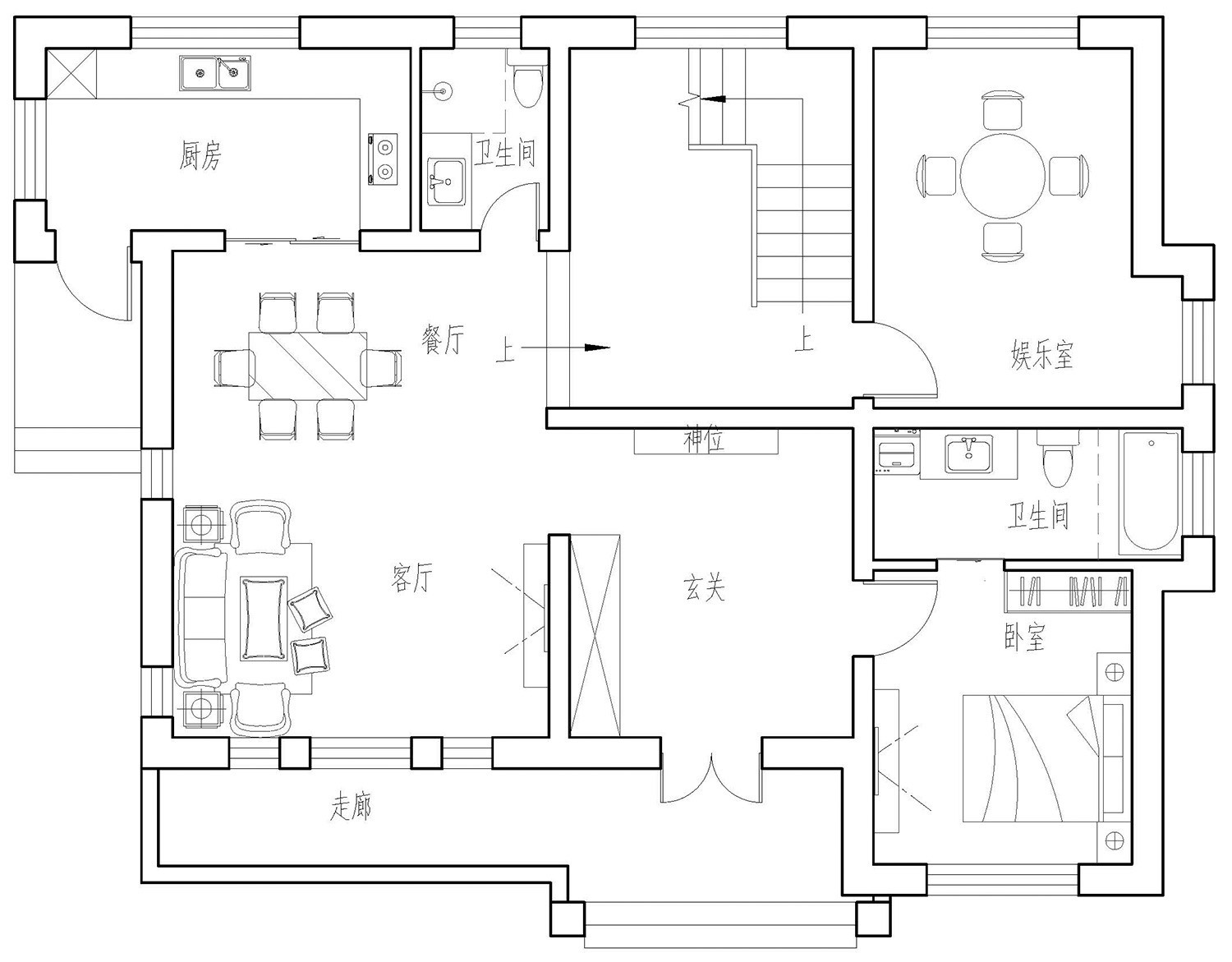
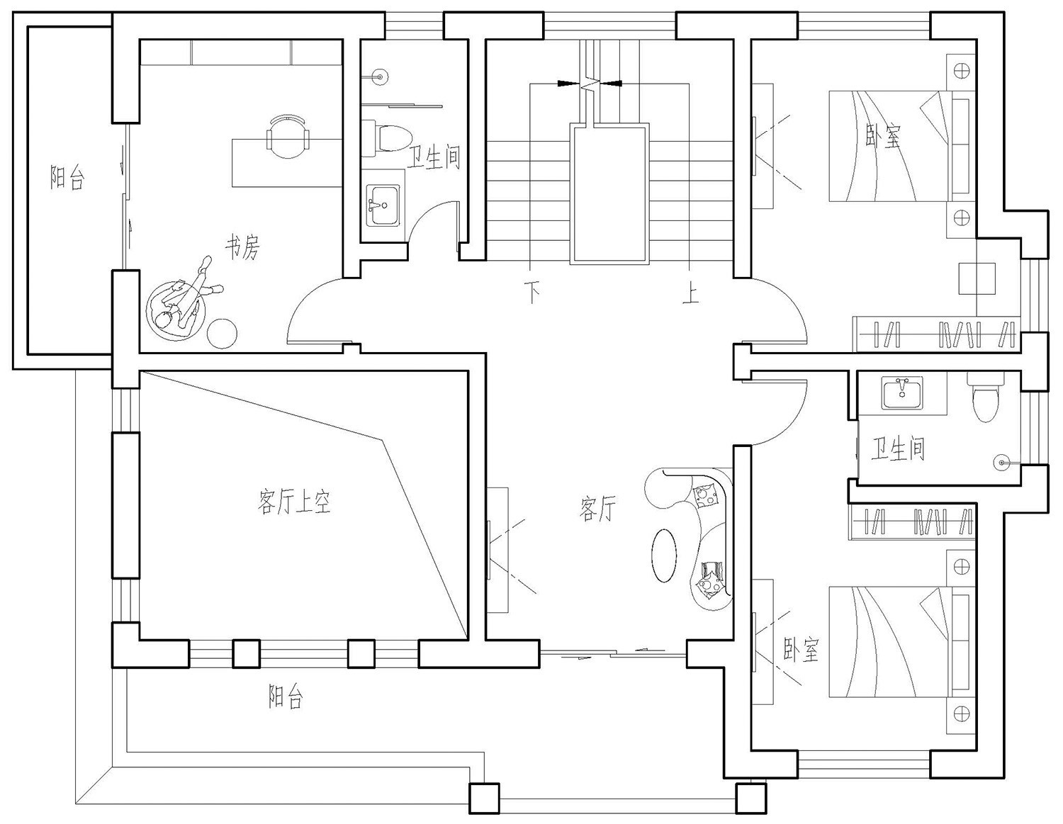
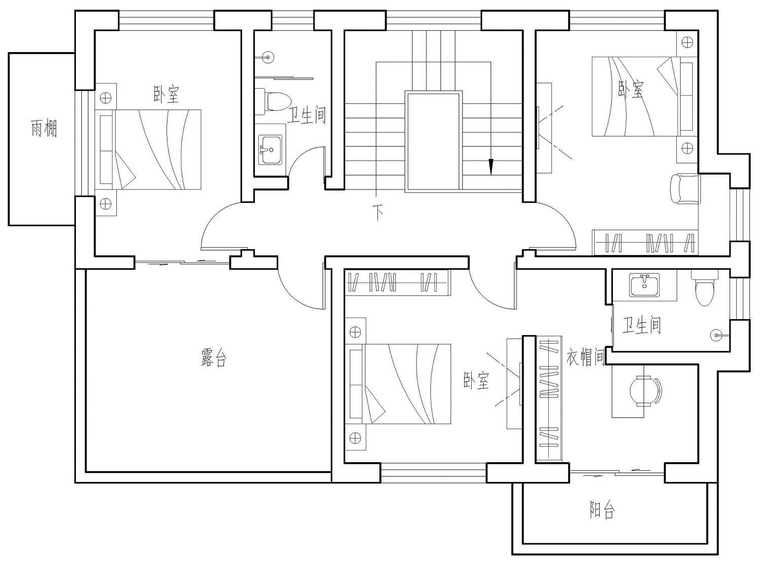
室内展示图:

主体设计:客厅、餐厅、厨房、卧室、公卫、阳台、露台。


别墅数据:
别墅层数: 三层
别墅风格: 新中式
占地面积:135㎡
开 间:13.7m
进 深:9.9m
建筑占地:13.7m×9.9m
建筑面积:333㎡
预估造价:65.7万
建筑结构:砖混结构
户型布局:9房3厅6卫1厨1露台
。
转载请注明出自轩鼎别墅设计:="://www.lemeizhai.com/index.asp" target="_self" style="font-size: 16px; text-decoration: underline;">://www.lemeizhai.com/index.asp