就要过年了,回到农村好好热闹一番,要说最有年味的地方还是农村。新年有什么愿望呢,那就是建一栋属于自己小别墅,不高也就二层吧,相信你们也有相同的愿望。。快要过年了就给大家推荐一款新中式="://www.lemeizhai.com/Picture.asp?PicClassID=88" target="_self" style="font-size: 24px; text-decoration: underline;">别墅设计吧,希望你们喜欢。
图纸介绍:

精品新中式="://www.lemeizhai.com/Picture.asp?PicClassID=88" target="_self" style="font-size: 24px; text-decoration: underline;">二层别墅设计,极富现代气息,高端大气,布局完善,房间也比较多,有车库。
设计功能:
别墅层数: 二层
别墅风格: 新中式
占地面积:205㎡
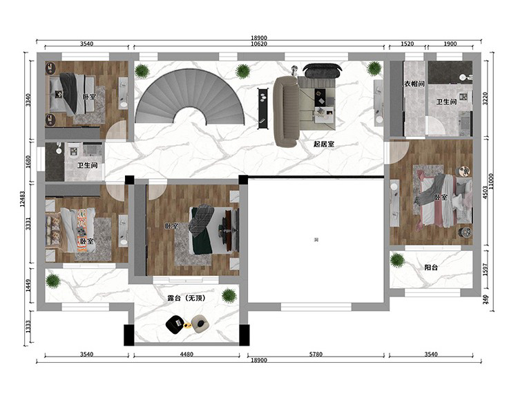
开 间:18.9m
进 深:11.8m
建筑占地:18.9m×11.8m
建筑面积:447.1㎡
预估造价:50.0万
建筑结构:框架结构


室内展示图:

主体设计:客厅、餐厅、厨房、卧室、公卫、阳台、露台。
。
转载请注明出自轩鼎别墅设计:="://www.lemeizhai.com/index.asp" target="_self">://www.lemeizhai.com/index.asp