关于兄弟和和睦的词语有很多,比如打虎亲兄弟、兄弟齐心其利断金、家和万事兴、以和为贵等,这些耳熟能详的词语蕴含着多少古人的智慧。今天轩鼎就推荐一款特别适合兄弟合建的="://www.lemeizhai.com/Picture.asp?PicClassID=88" target="_self" style="font-size: 24px; text-decoration: underline;">别墅设计,这款欧式风格的别墅设计特别大气,充满欧式建筑的特点,内部布局特别合理,兄弟特别亲的可以合建一栋。
图纸介绍:

精品欧式双拼="://www.lemeizhai.com/Picture.asp?PicClassID=88" target="_self" style="font-size: 24px; text-decoration: underline;">二层别墅设计,极富现代气息,高端大气,布局完善,房间也比较多,兄弟合建的首选。
设计功能:
别墅层数: 二层
别墅风格: 欧式
占地面积:230㎡
开 间:21.8m
进 深:10.3m
建筑占地:21.8m×10.3m
建筑面积:457.61㎡
预估造价:58.0万
建筑结构:砖混结构


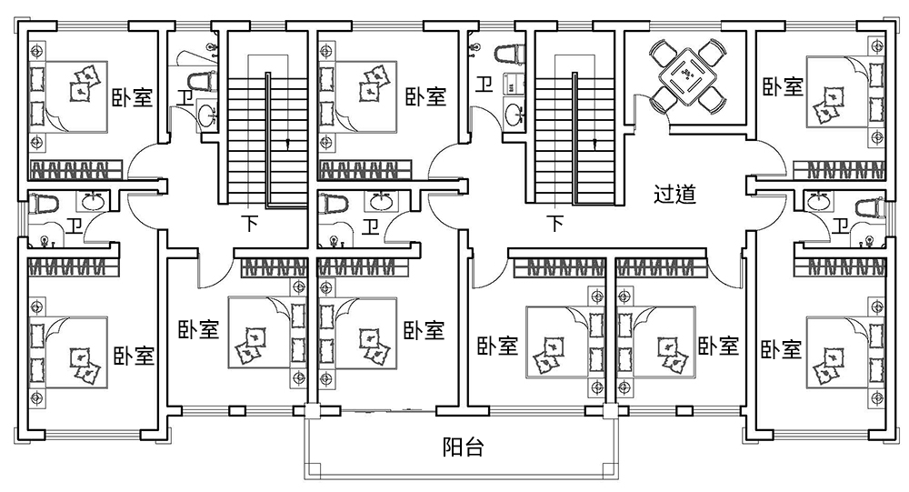
室内展示图:

主体设计:客厅、餐厅、厨房、卧室、公卫、阳台、露台。

。
转载请注明出自轩鼎别墅设计:="://www.lemeizhai.com/index.asp" target="_self" style="font-size: 24px; text-decoration: underline;">://www.lemeizhai.com/index.asp