时代轮转,山川巨变,不变的是人类的奋斗历史,取个老婆,考取功名,建一栋好房子,但这些都要奋斗而来。今天推荐一款取其精华去其糟粕的="://www.lemeizhai.com/Picture.asp?PicClassID=91" target="_self" style="font-size: 24px; text-decoration: underline;">三层别墅设计,既有中式建筑的韵味,又有现代别墅理念。

图纸介绍:
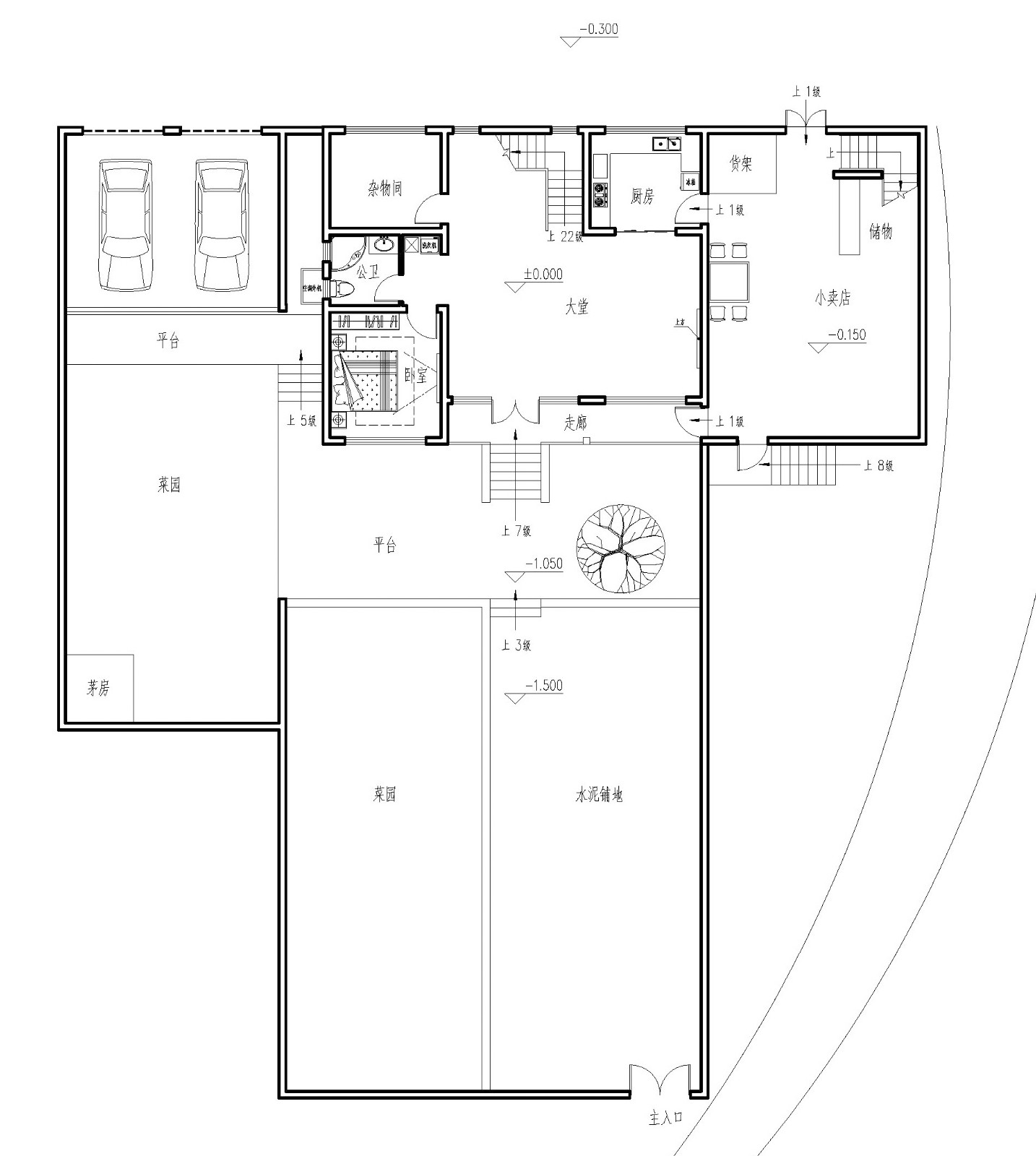
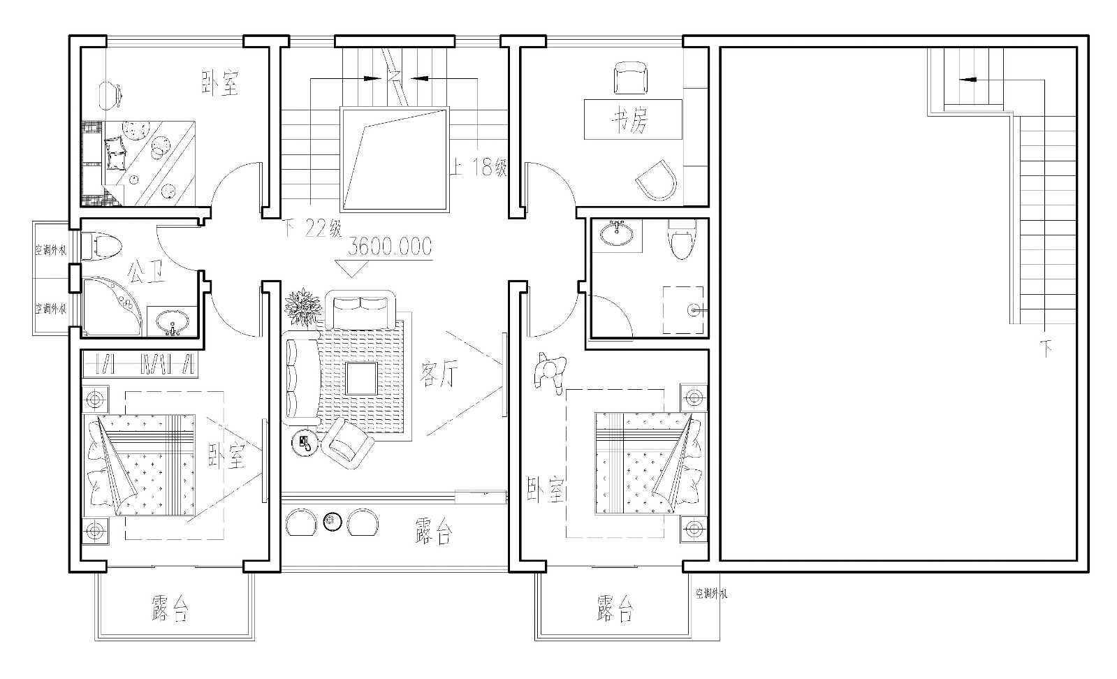
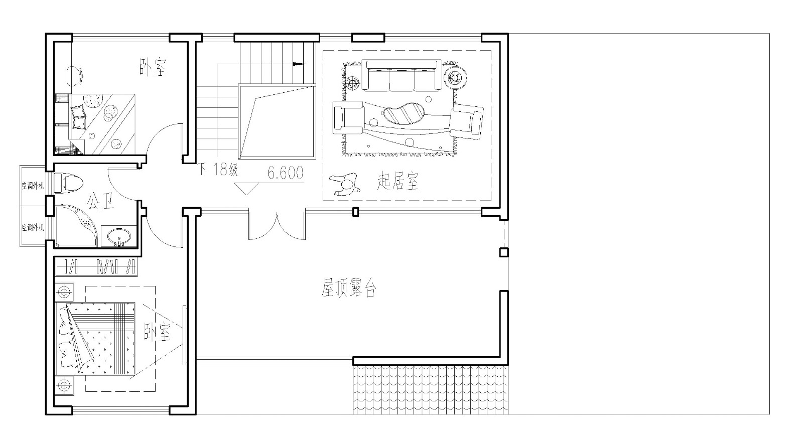
="://www.lemeizhai.com/Picture.asp?PicClassID=91" target="_self" style="font-family: 楷体, 楷体_GB2312, SimKai; font-size: 24px; text-decoration: underline;">三层别墅设计图,造型高端大气,内部布局合理,室内采光通风情况良好,建房的不二选择。
设计功能:
别墅风格:中式
占地面积:107㎡
开 间:11.4m
进 深:9.4m
建筑占地:11.4m×9.4m
建筑面积:279㎡
预估造价:40.6万
建筑结构:砖混结构
功 能 间:杂物间 车库 露台 书房



主体设计:

客厅、餐厅、厨房、卧室、公卫、阳台、露台。


。
="://www.lemeizhai.com/index.asp" target="_self">转载请注明出自轩鼎别墅设计:://www.lemeizhai.com/index.asp