衣食住行,“住”最为重要,有住的地方就有安全感,一家人的感情也在房子里逐渐升温。今天30号快过年了,今天推荐的别墅设计是="://www.lemeizhai.com/search.asp?SearchType=Software&imageField.x=43&imageField.y=29&SearchKey=%D6%D0%CA%BD%B1%F0%CA%FB%C9%E8%BC%C6" target="_self" style="font-size: 36px; text-decoration: underline;">中式别墅设计

图纸介绍:
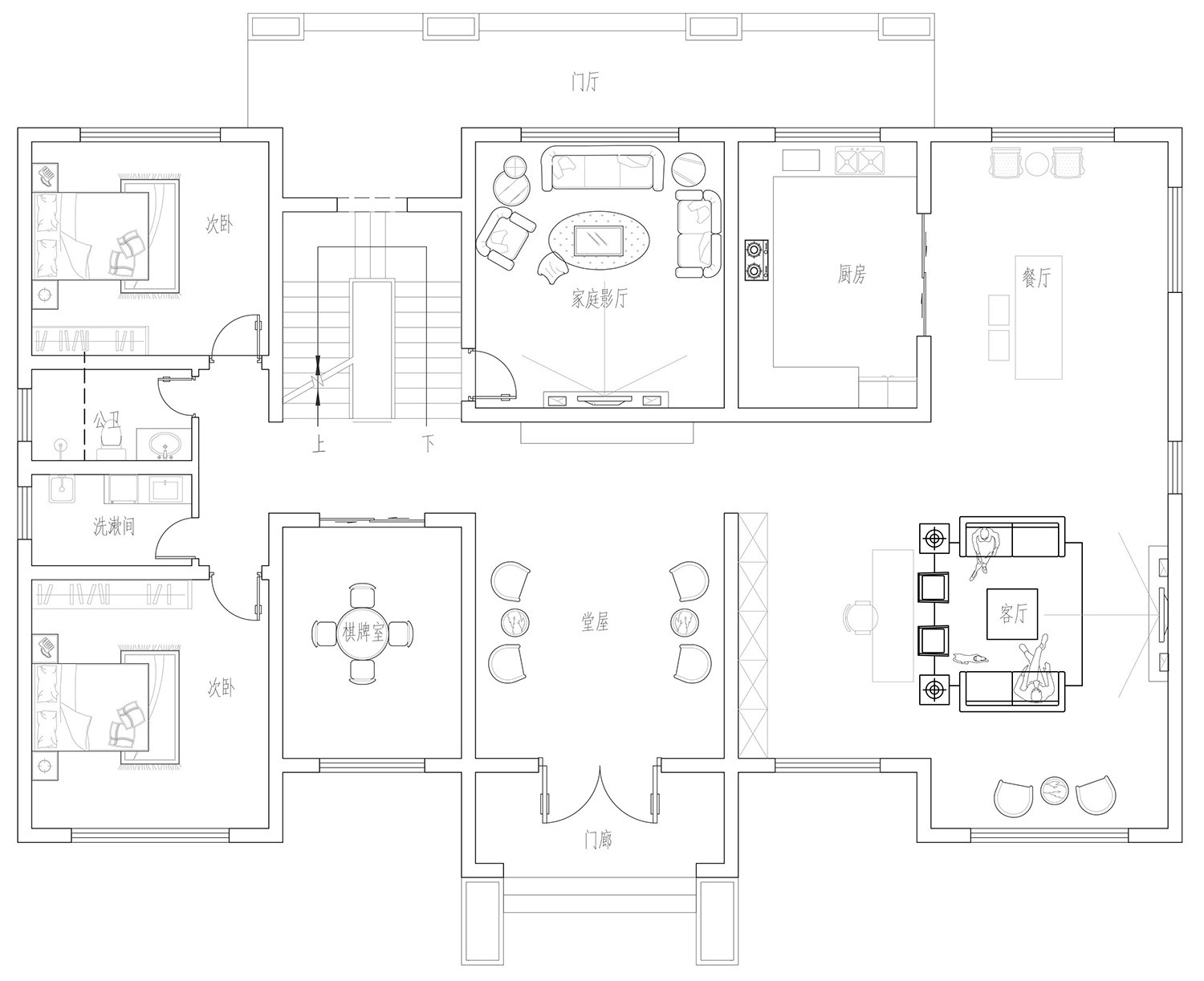
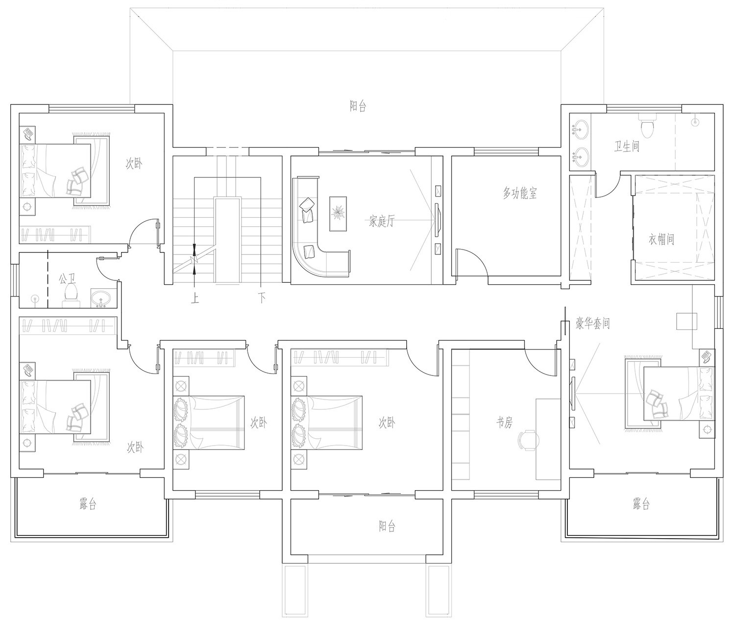
二层新中式别墅设计图,造型美观优雅,内部布局合理,通风情况良好。
设计功能:
别墅层数: 二层
别墅风格: 中式
占地面积:242㎡
开 间:19.9m
进 深:12.2m
建筑占地:19.9m×12.2m
建筑面积:434㎡
预估造价:69.4万
建筑结构:砖混结构
主体设计:

客厅、餐厅、厨房、卧室、公卫、阳台、露台。

。
转载请注明出自轩鼎别墅设计:="://www.lemeizhai.com/index.asp" target="_self">://www.lemeizhai.com/index.asp