看了很多别墅网站的图纸却很少有实景图,但今天就不一样了,今天小编就给大家推荐一款="://www.lemeizhai.com/Picture.asp?PicClassID=88" target="_self" style="font-size: 24px; text-decoration: underline;">二层欧式别墅设计就带实景图,来看看吧。

设计功能:
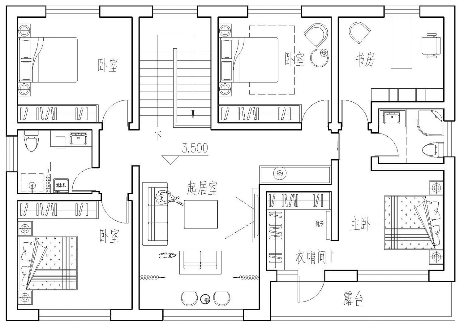
别墅层数: 二层
别墅风格: 欧式
占地面积:157㎡
开 间:15m
进 深:10.5m
建筑占地:15m×10.5m
建筑面积:303㎡
预估造价:43.3万
建筑结构:砖混结构



主体设计:

客厅、餐厅、厨房、卧室、公卫、阳台、露台。

。
转载请注明出自轩鼎别墅设计:="://www.lemeizhai.com/index.asp" target="_self" style="font-size: 24px; text-decoration: underline;">://www.lemeizhai.com/index.asp