已经立春了,很多业主也开始建房了。轩鼎建筑小编给大家整理了一些="://www.lemeizhai.com/index.asp" target="_self" title="农村自建房" style="text-decoration: underline; font-family: 微软雅黑, "Microsoft YaHei"; font-size: 18px;">农村自建房户型图,看看这里面有你需要的吗。2022农村户型设计图。
4-61:本户型适合面积较小的宅基地建造,室外不仅有小院,室内一楼还有有室内车库,还有钢琴房。简直麻雀虽小,五脏俱全啊。二楼一共三间卧室,从起居室可看到整个一楼的客厅,使空间更加宽阔立体。

4-62:带室内车库,楼梯下方带有储藏室,方便收纳物品,巧妙的运用空间。开放式厨房,使空间更加的宽敞,并紧邻阳台,通风效果极佳,还可欣赏美景。二楼时间卧室,满足一家人的生活需求。其中一间带有阳台和独立的卫生间,可做主卧。卫生间都是做到了干湿分离,提高业主家的生活品质。

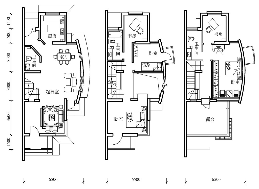
4-63:三层小面积,面宽只有6.5米。但布局设施齐全,是一款不错的小户型设计案例。

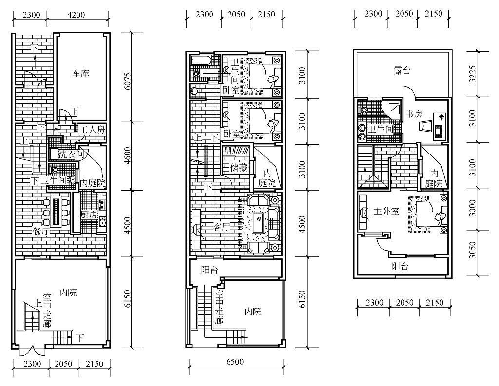
4-64:同样是一款小户型三层设计,还带有院子设计,面宽6.5米,进深21.3米,典型的长方形宅基地,很多业主发愁小面积如何布局,看看这款参考一下吧。

061-9:多功能布局。属于四合院双拼设计布局图。这样一栋别墅建在老家,那绝对的有面子,各个都得夸赞。

alt1:南北通透户型,两室一厅一卫一厨两台。适合家里的老人居住。

alt2:南北通透户型,间卧室,一间储藏间,用来堆积不用的物品,室内空间更加干净整洁。客厅紧邻阳台,室内得到了很好的日晒,平时晾晒衣物等都很方便。

Alt3:

Alt4:

Alt5:

alt6:三间卧室,一家人居住刚刚好。厨房卫生间相连阳台,可很好地通风。厨房可到阳台,阳台放洗衣机,再做几个橱子,收纳洗衣等都很实用。

ale7:双向阳台设计,两间卧室,带有小的储藏室。干湿分离的卫生间设计。

alt8:超大客厅,接待朋友有面子。可留出一部分空间做茶室。主卧带飘窗,让居住生活更加舒适。

alt9:三间卧室

alt10:进门是玄关设计,三间卧室,其中一间为主卧,带有阳台设计以及独立的卫生间,保护业主生活隐私。其余两间卧室也离公卫非常近,方便日常梳洗。

Alt11:

Alt12:

alt13:本户型多阳台设计,客厅,卧室,厨房等都带有独立的阳台。八角窗阳台的设计不仅满足了室内的采光效果,外观建筑也独特。

Alt14:

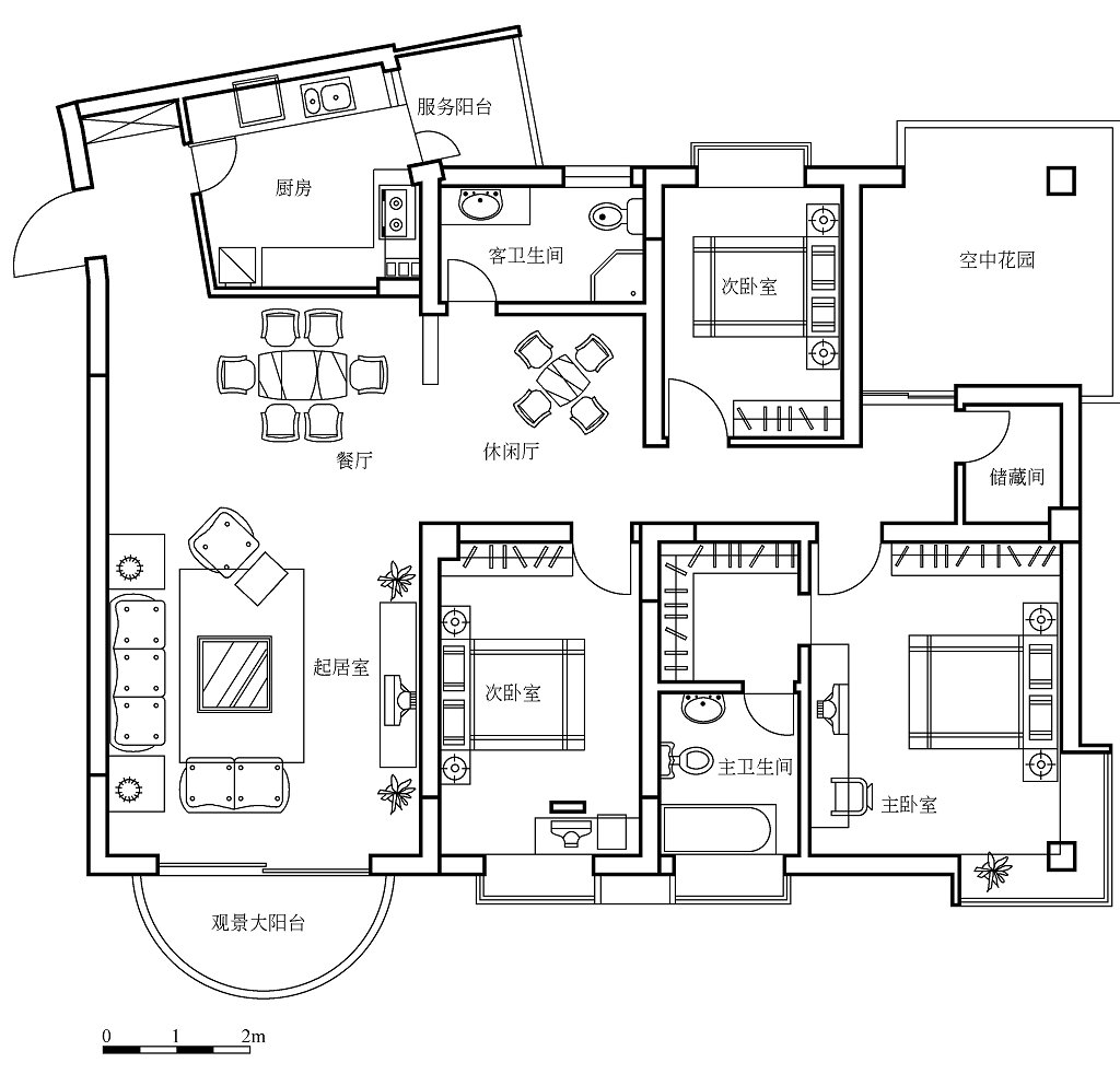
alt15:面积较大的一款布局图。内部设计齐全,带有空中花园,观景大阳台,多个卧室等,是一款居住体验极佳的布局。

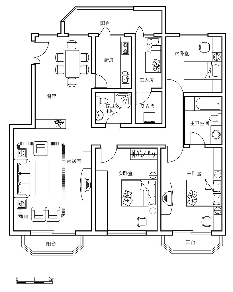
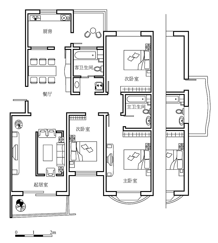
alt16:本户型四室两卫两厅,一家四口住非常合适,不拥挤。

Alt17:

Alt18:

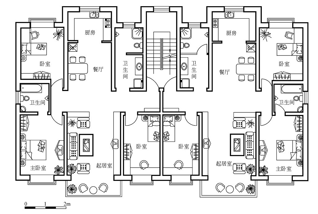
alt19:双拼户型,每户带有开放式厨房和餐厅,增加空间面积,两间卧室。虽共用楼梯,但每家独门进入。

alt20:本套户型面积较大,是一款四室设计。除了主卧还带有两间次卧。主卧飘窗设计,提高生活品质,还可欣赏美景。客厅餐厅相连,并带有大阳台,延伸空间,养花种草,休闲娱乐空间。

alt21:起居厅与卧室厨房分离,带有踏步,高低错落有致,百看不厌。每间卧室带有飘窗设计,是很不错的观景台哦。
