夏天的乡村从满着儿时的快乐回忆,虽然长大但儿时无忧无虑的时光早已远去,离开纷纷扰扰的都市吧,回到曾经的广阔天地,建一栋房子和儿孙共享天伦。今天这款安徽芦总私人订制的="://www.lemeizhai.com/Picture.asp?PicClassID=88" target="_self" style="font-size: 24px; text-decoration: underline;">二层别墅设计图推荐给大家,希望您会喜欢

设计功能:
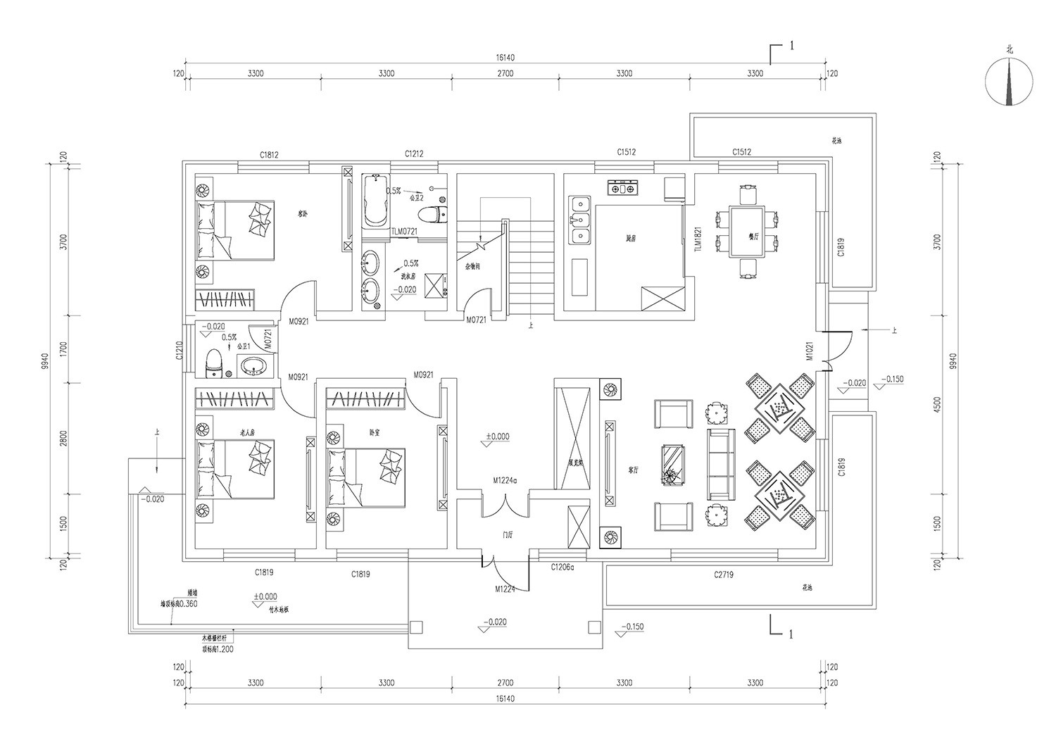
别墅层数: 二层
占地面积:159㎡
开 间:16.1m
进 深:9.9m
建筑占地:16.1m×9.9m
建筑面积:320㎡
预估造价:38.4万
建筑结构:砖混结构

主体设计:
客厅、餐厅、厨房、卧室、公卫、阳台、露台。

。

="://www.lemeizhai.com/index.asp" target="_self" style="font-family: 楷体, 楷体_GB2312, SimKai; font-size: 24px; text-decoration: underline;">转载请注明出自轩鼎别墅设计:://www.lemeizhai.com/index.asp