轩鼎小编又又又来了, 看过前几篇的户型图大总结后,对你们有没有方案上的启发呢。别急,今天我又整理了一些="://www.lemeizhai.com/index.asp" target="_self" title="农村户型">农村户型平面图,又多了二十几种的选择呢。
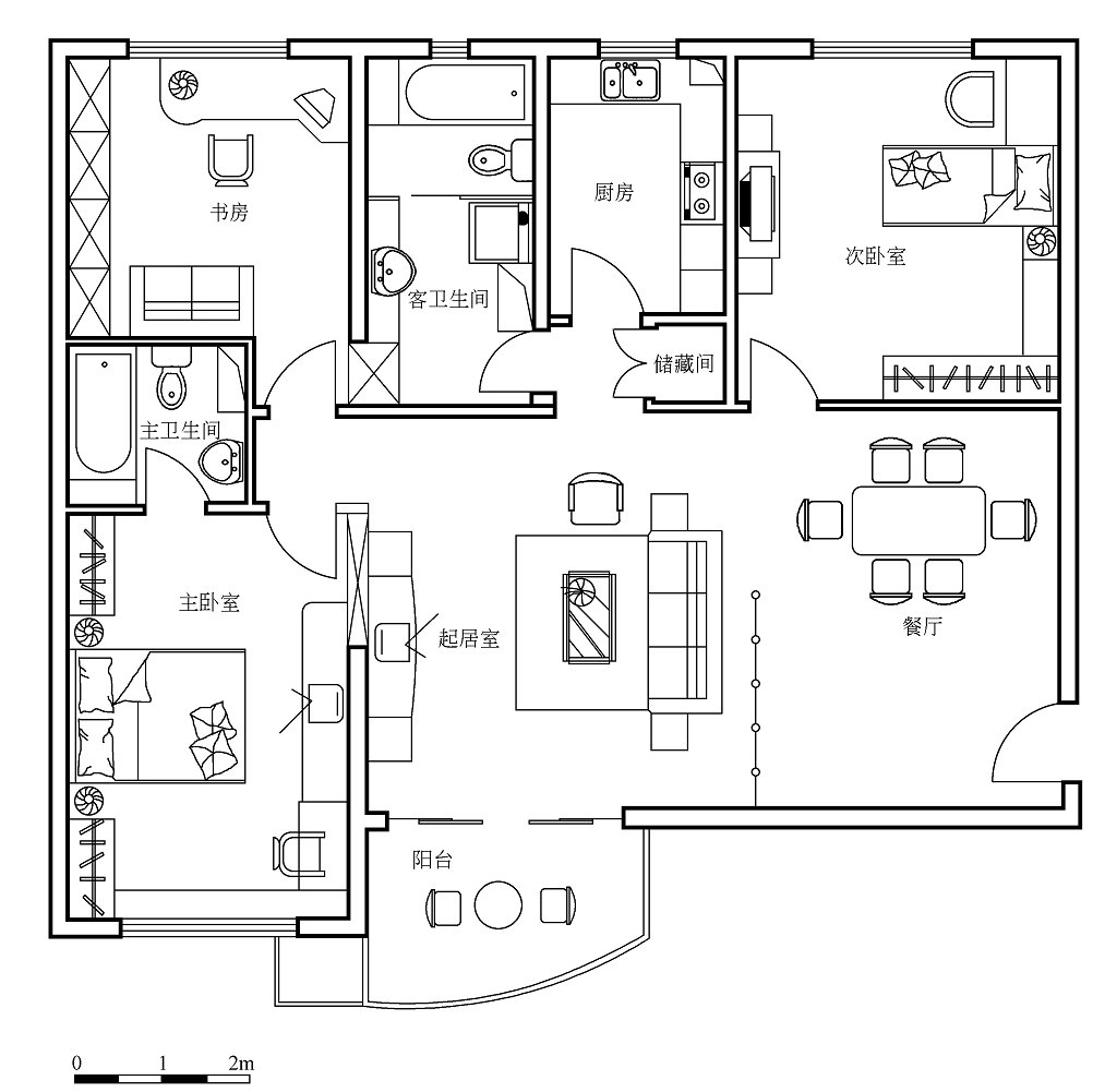
48:本户型两个卧室,配有书房,居住空间不够的情况下可改为卧室使用。厨房一边带有储藏室,充分利用了面积。卧室+卫生间的设计,满足日常的洗漱需求。公卫干湿分离,使用既干净也方便。

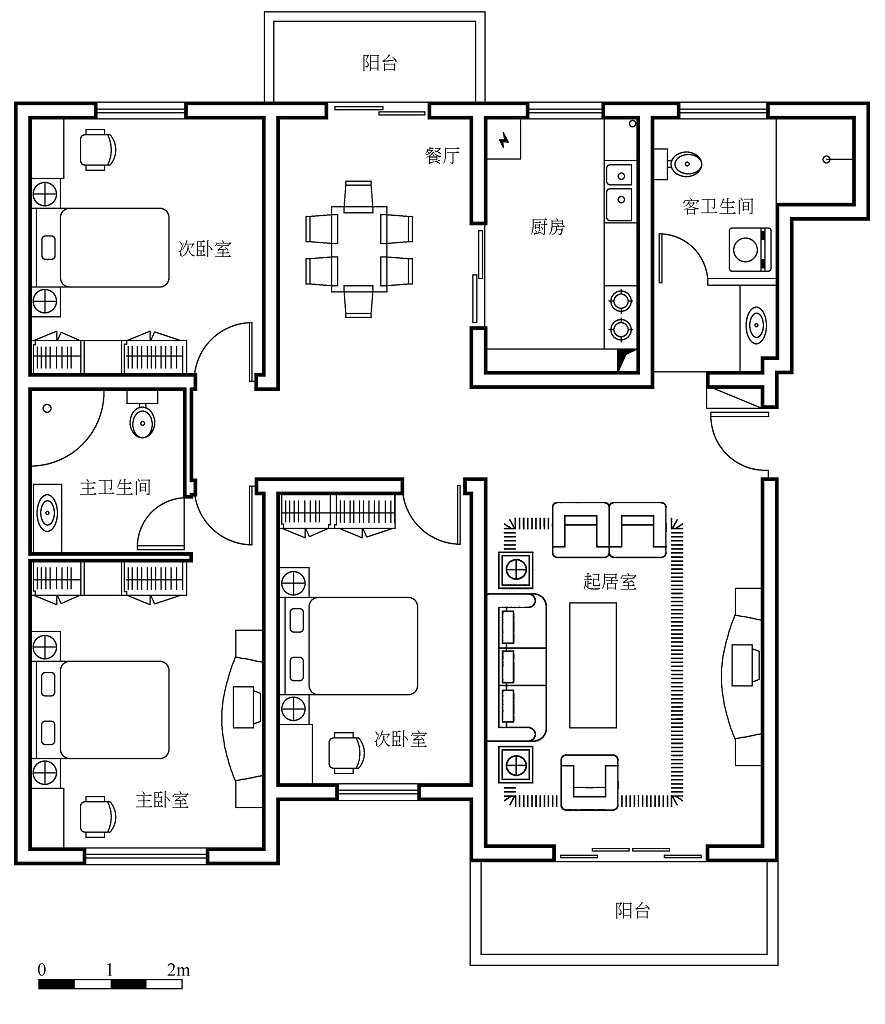
49:超大起居厅,配有阳台设计,空气流通极佳。餐厅处也带有生活阳台,三间卧室设计,每间都是宽敞的生活空间,让一家人舒适的居住。

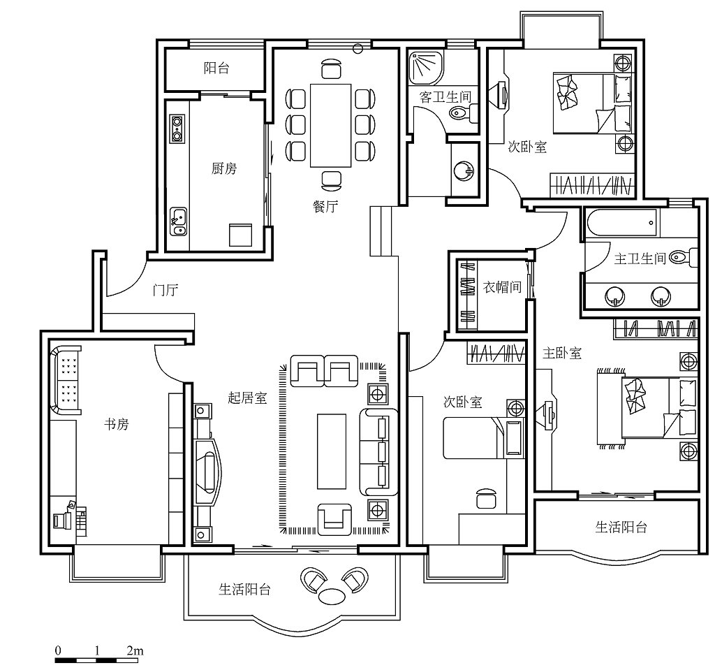
50:此款户型面积较大,功能齐全。带有踏步设计,高低错落有致,百看不厌,提升业主家的生活品质。客厅以及卧室带有飘窗的设计,不仅很好的享受室外阳光,也可当做观景台。

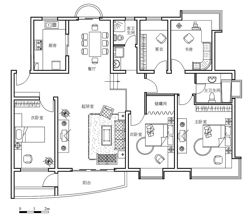
51:阳台相连起居厅和书房,其中一间卧室可做老人房,为老人提供生活便捷的生活空间。其余两间次卧不仅满足更多人的住宿,还能为家人的生活带来便捷舒适体验。是一款非常不错的设计方案。\

52:不规则户型,四个卧室,其中一间为主卧,书房,衣帽间,卫生间一体化设计,宽敞 的生活空间,也给业主带来安静的工作氛围,八角窗的设计,不仅使室内更加明亮,外观建筑也十分的好看。

53:本户型在140平左右。设计齐全,还带有单独的衣帽间,再也不用担心衣服多杂乱,可更好的储存,让房间干净整洁。

54:小编喜欢这款设计方案布局,不仅有半圆的生活阳台空间,还带有单独的更衣室和书房。主卧更是可留出衣帽间的空间。想到的和想不到的,设计师都设计完善了。

55:入户进入则是休闲区域,平时和朋友在这喝茶聊天,完全不影响里面。起居厅是八角窗设计,这个介绍很多次了,最实用的就是采光好看,延伸空间,建筑立体感强。三间卧室,其中一间主卧,这主卧简直是每个人都想拥有的布局吧(干湿分离的卫生间+书房+休闲区域)。休闲区域可放点健身器材,锻炼的同时也可享受外面的美景。

56:这二楼的布局。还带有电梯设计,省去爬楼梯的烦恼。左边生活局域,右边居住区域。中西厨房和餐厅相连,用餐空间温馨,热闹。每间卧室带有独立的卫生间和学习办公区域。

57:

58:超大客厅设计,接待朋友十分有面子。三间卧室依次排列,布局非常好。餐厅厨房紧相连,远离居住区域,有利于油烟排放。

59:书房单独在一个空间,营造安静的工作学习氛围。南北通透户型,采光效果不错。厨房可通往生活阳台,平时一些杂乱的物品或者生活垃圾都可以放在这。环境干净整洁卫生。

60:超大入户客厅,每间卧室飘窗设计。大家喜欢飘窗的户型吗?

61:这款布局客厅阳台可通向卧室,平时晾晒衣物之类的,可把客厅的门关闭,这样客人就看不到杂乱的衣物摆放了。使空间整洁干净。

62:这款户型可做二层平面图参考。

63:三室两卫两厅设计。

64:二层紧凑设计方案,属于复式设计,小面积还带有电梯设计,在农村自建房中还是非常少见的呢。

65:

66:第一眼就被这个客厅大圆台客厅吸引了,不管是阴天还是晴天,都可以全方位的欣赏美景。

67:

68:

69:户型虽然不是方正的,但还是蛮实用。

70:多向阳台,三间卧室,每个方位都有不同的体验。喜欢多向阳台的业主可参考这款哦。\

71:双拼设计,户型设计左右对称。适合兄弟两家一起盖,公用一个楼梯,有独立的入户门。

72:同样是一款双拼的户型,每家两个卧室,一间卫生间以及厨房餐厅。有独立的入户门,保证每家的隐私,也带来生活舒适感。

73:和上款户型做对比。

74:带有两间卧室设计,不仅满足更多人的住宿要求,更为家人的生活舒适感。宽敞的客厅,会客提供方便。

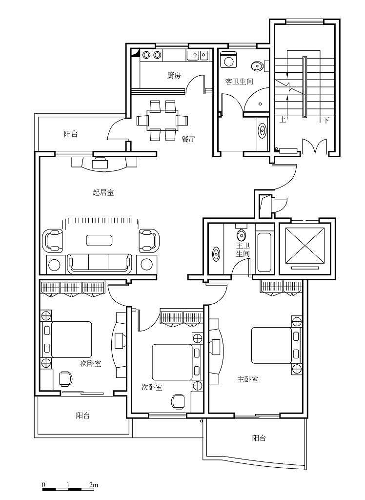
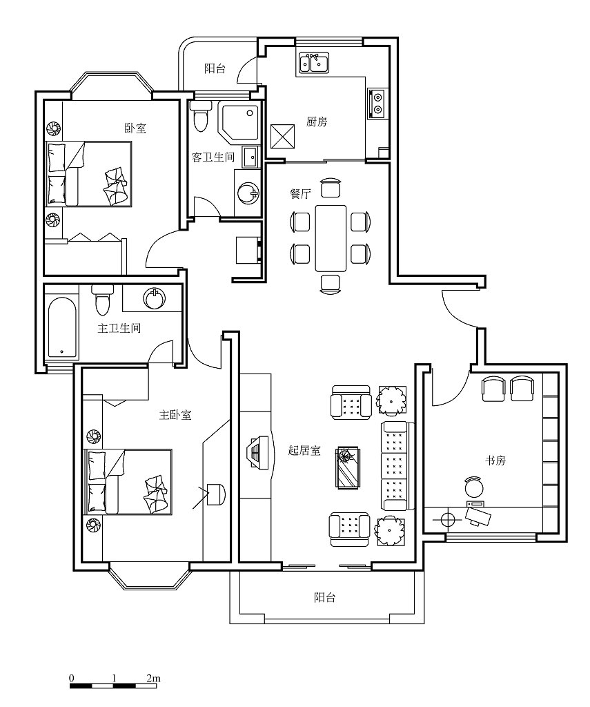
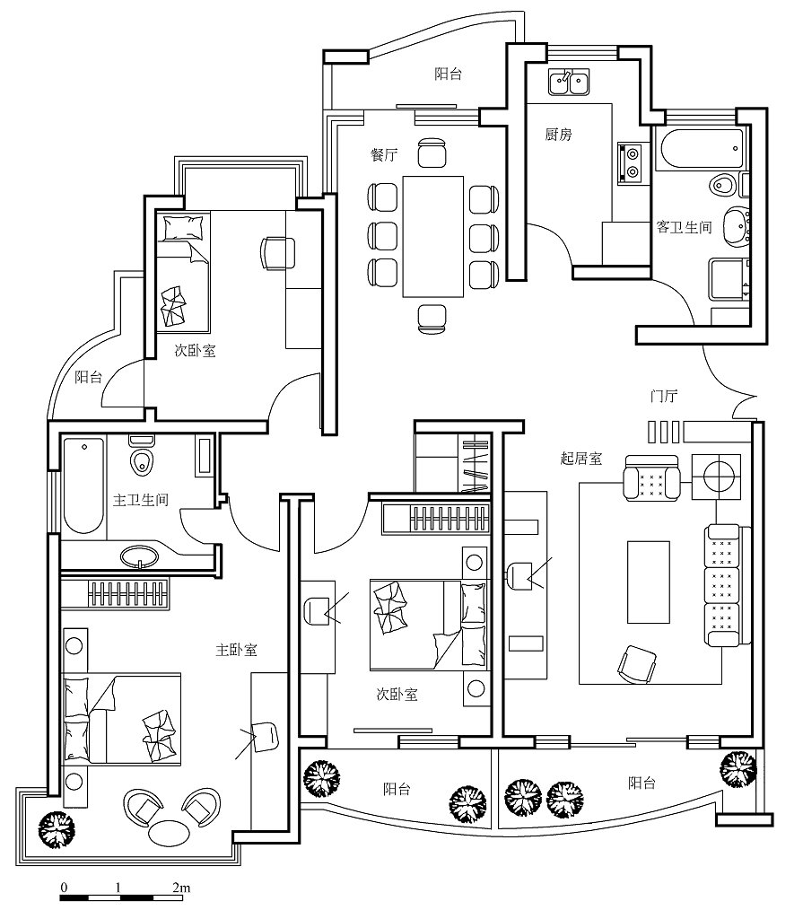
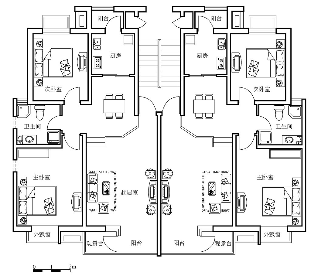
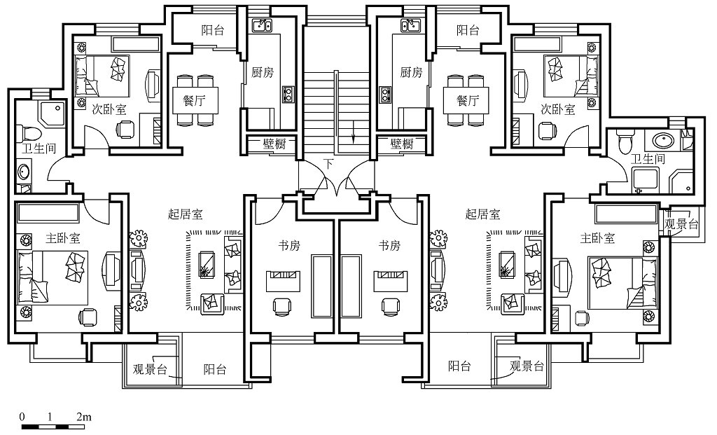
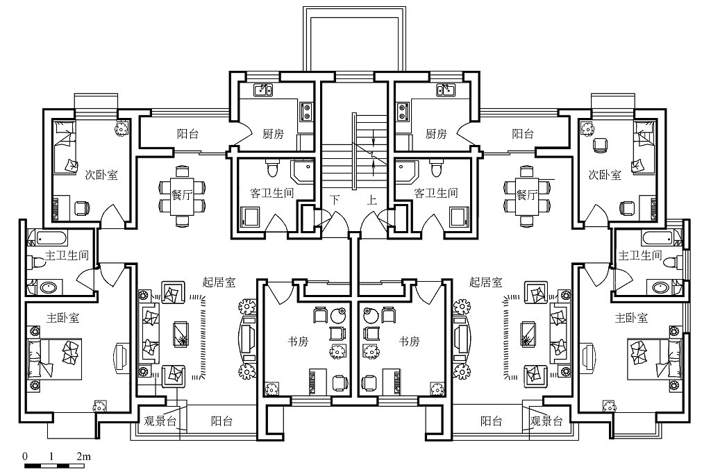
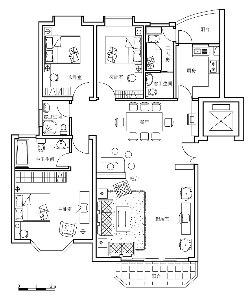
75:三间卧室,带有保姆房间,用不到可当储物间。客厅比较大,待客有面子,阳台设计,延伸空间,给家人很好的活动空间。
