低调行事的人差不了,为人低调祸端少。今天给大家介绍的案例是湖南长沙刘总的欧式="://www.lemeizhai.com/Picture.asp?PicClassID=91" target="_self" style="font-size: 24px; text-decoration: underline;">别墅设计,这款别墅美丽漂亮不张扬,整体外形符合刘总预期,外墙装修都是按照刘总喜好选定的,是比较成功的个性化定制案例。

别墅层数: 三层
别墅风格: 欧式
占地面积:158㎡
开 间:17m
进 深:12.9m
建筑占地:17m×12.9m
建筑面积:377.33㎡
预估造价:50.0万
建筑结构:框架结构

主体设计:

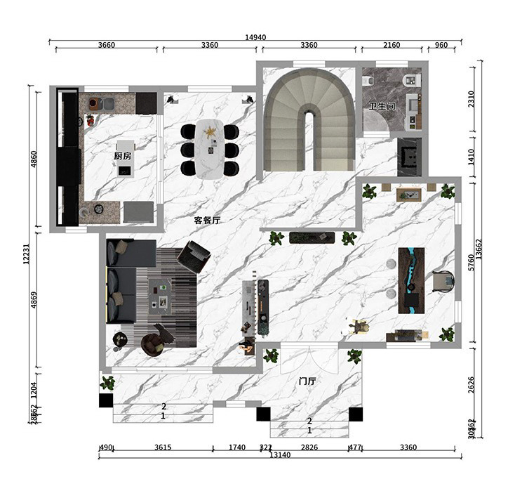
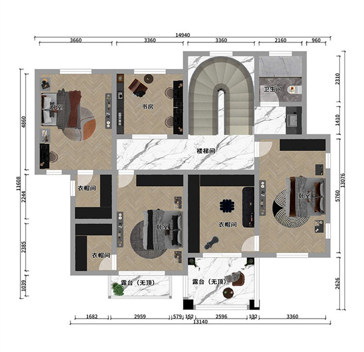
客厅、餐厅、厨房、卧室、公卫、阳台、露台。

。

="://www.lemeizhai.com/index.asp" target="_self" style="font-family: 楷体, 楷体_GB2312, SimKai; font-size: 24px; text-decoration: underline;">转载请注明出自轩鼎别墅设计:://www.lemeizhai.com/index.asp