建房子必须要有庭院,没有院子可不行,不仅仅是安全隐私事儿。今天给大家推荐一款韵味十足的="://www.lemeizhai.com/search.asp?SearchType=Software&imageField.x=43&imageField.y=37&SearchKey=%D0%C2%D6%D0%CA%BD" target="_self" style="font-size: 24px; text-decoration: underline;">新中式别墅设计,这次是山东王总的别墅设计方案,虽然是二层但一点也不显得拥挤,在娱乐生活方面也有设计,书房和露台设计的恰到好。喜欢的可以收藏哦

别墅层数: 二层
别墅风格: 中式
占地面积:252㎡
开 间:14m
进 深:18m
建筑占地:14m×18m
建筑面积:316㎡
预估造价:50.5万
建筑结构:砖混结构


主体设计:

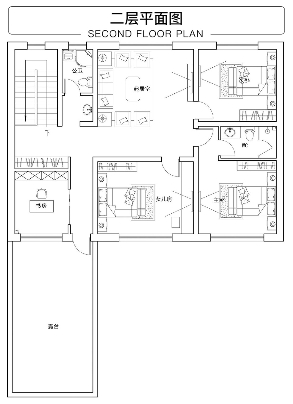
客厅、餐厅、厨房、卧室、公卫、阳台、露台。

。
="://www.lemeizhai.com/index.asp" target="_self" style="font-family: 楷体, 楷体_GB2312, SimKai; font-size: 36px; text-decoration: underline;">转载请注明出自轩鼎别墅设计:://www.lemeizhai.com/index.asp