77:三室两厅两卫="://www.lemeizhai.com/" target="_self" title="农村自建房" style="text-decoration: underline; font-family: 微软雅黑, "Microsoft YaHei"; font-size: 18px;">农村自建房户型,满足一家人的生活需求,客厅和厨房都带有生活阳台,有利于通风和采光的效果,也延伸了家庭活动空间。

78:超大主卧设计,内带观景台,在卧室足不出户就可欣赏美景。书房也可直通阳台,工作闲暇之时,可放松。其余两间次卧离卫生间都不远,为生活提供便捷。

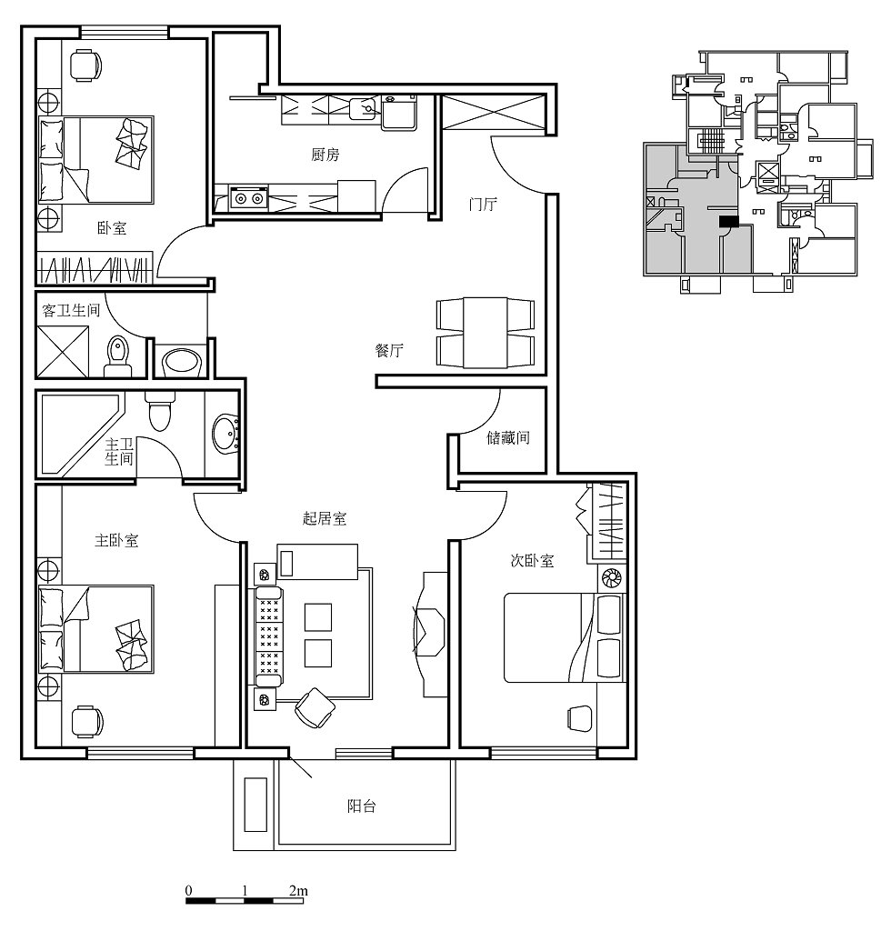
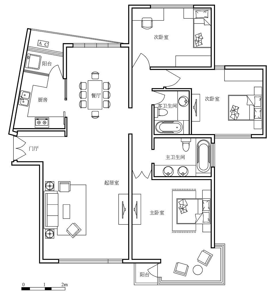
79:本户型一共三间卧室,其中主卧带有独卫,可给老人使用,方便老人日常的生活起居生活。客厅带有阳台,很好的延伸了活动的空间,晾晒衣物也方便了许多。

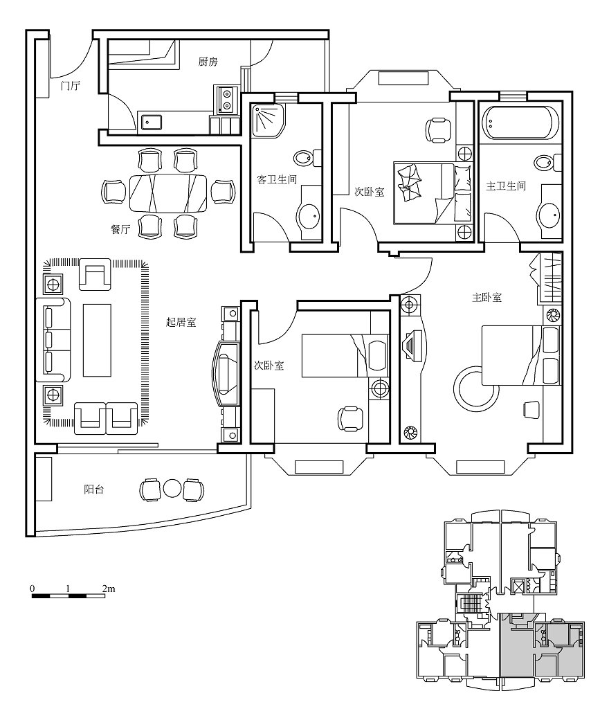
80:进入眼帘的的是大客厅,接纳客人很有面子,后期在装修一下,档次瞬间提升。主卧带有独立卫生间和阳台,阳台面积比较宽敞,除了放洗衣机外,还可做一个小茶厅,喝茶聊天赏美景。

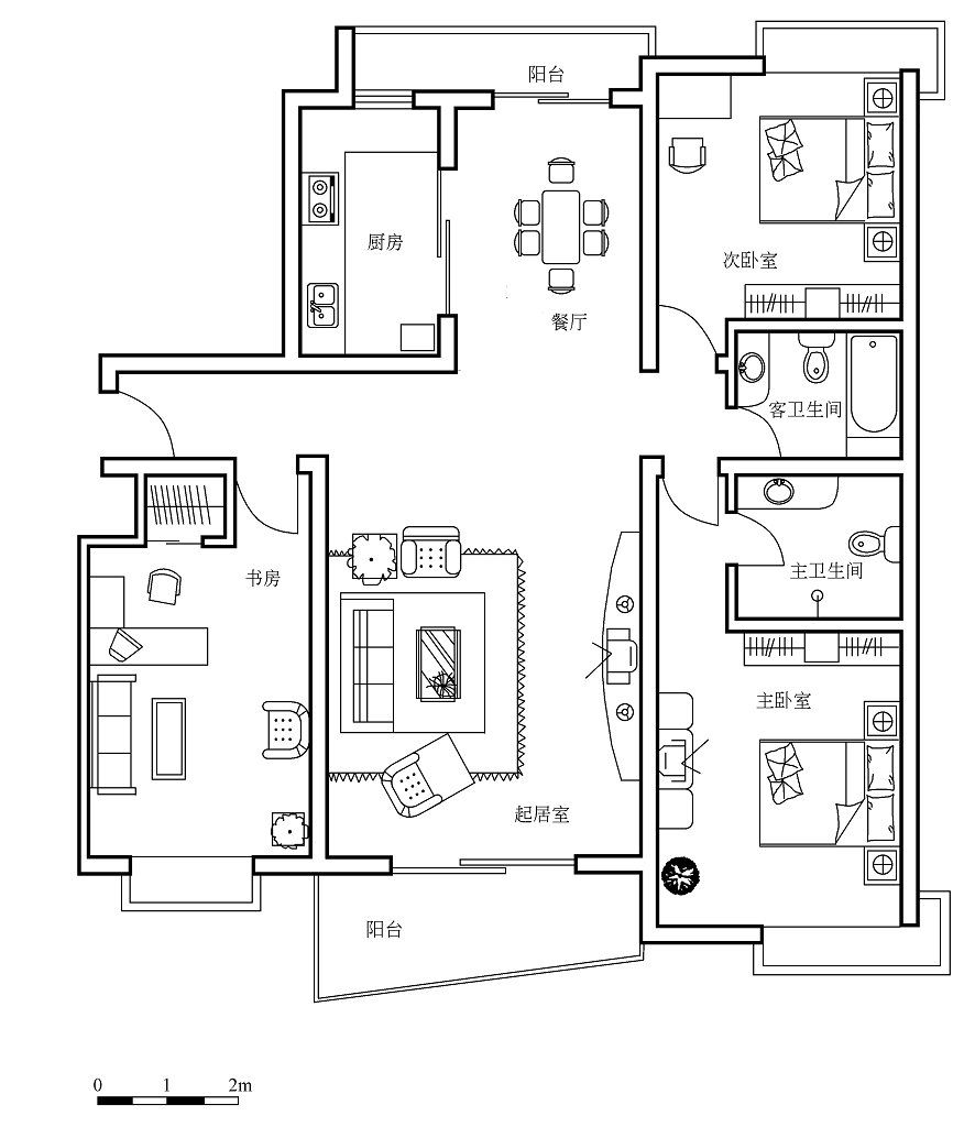
81:小面积户型图。两间卧室+一间书房设计。

82:主卧带飘窗设计,有没有热爱飘窗设计的业主集合一下啦。

83:

84:不规则阳台,却很有特色。两间卧室,面积虽小,但设施俱全。家不用多大,温馨就好。

85:这个入户门厅很有特点,宅地基也不是规则性。但里面的设计大家可做参考。

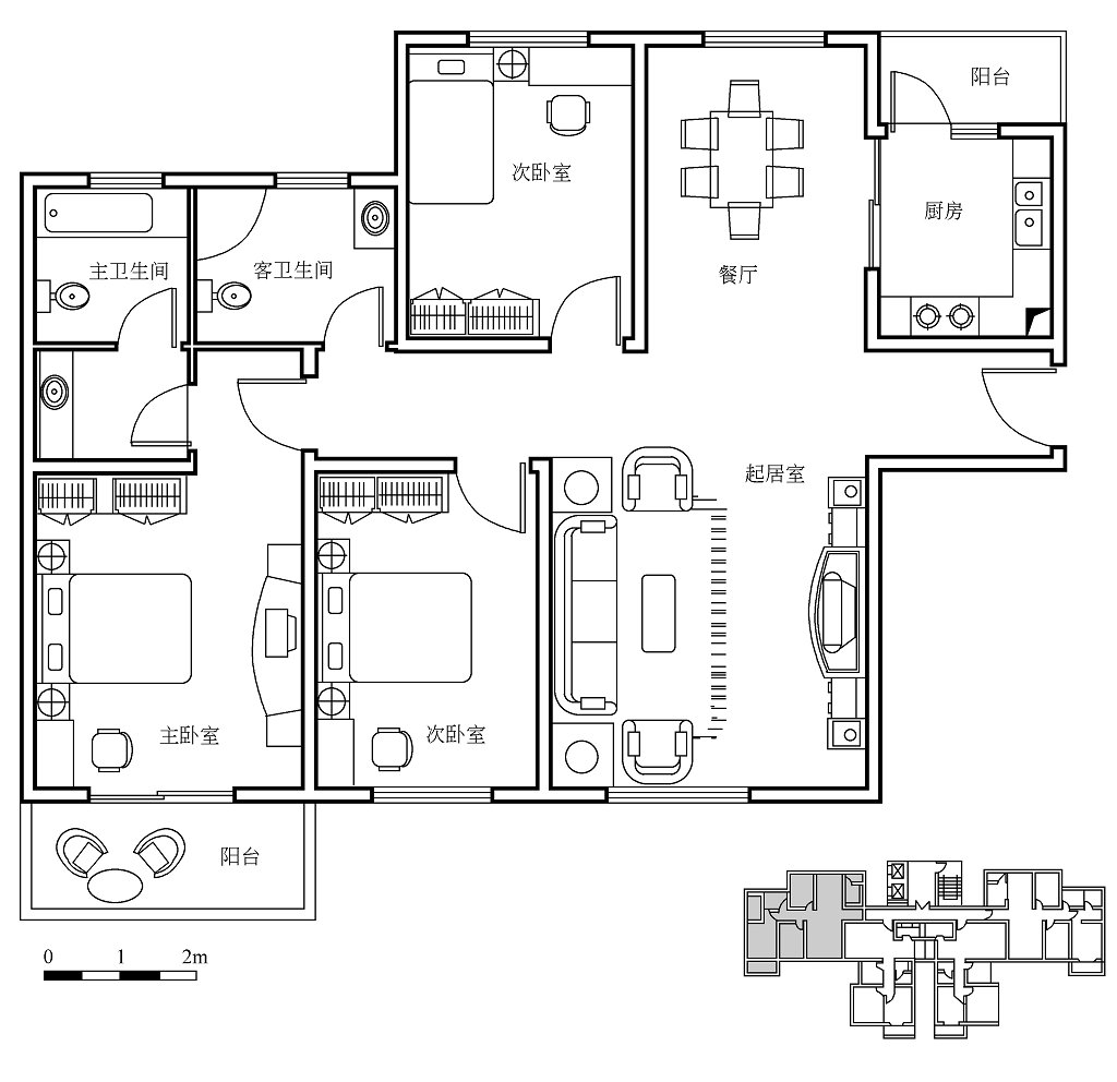
86:这款方正的阳台我喜欢,主卧+次卧都可看到阳台。日晒足够充裕。

87:不规则户型设计。

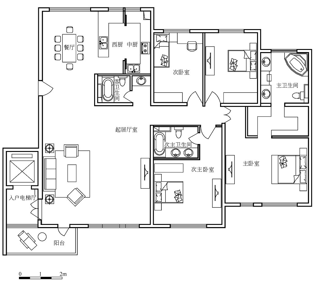
88:带有入户电梯厅。是一款面积比较大的设计。满足一家人的生活需求,但这款小编认为阳台比较少。

89

90:厨房这部分的宅基地比较独特。其他的布局都还是不错的。三间卧室,每间卧室都是比较大,不拥挤的。给家人舒适的生活环境。

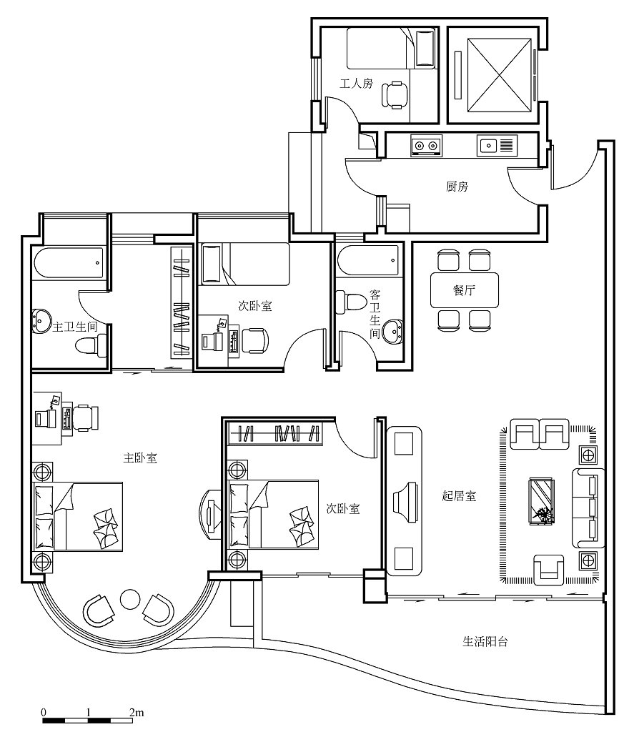
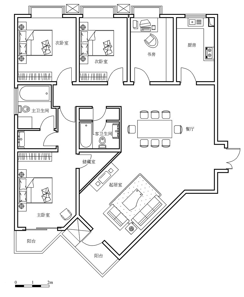
92:开放式厨房+餐厅,中西厨结合,一看就是爱美食的家庭。一共四间卧室,其中两间带有卫生间,给老人孩子使用都可,打造更舒适的布局。

93:本套户型四间卧室,宽敞的大客厅,显尊贵大气,也彰显主人的身份品质。也方便日常的会客。阳台的设计不仅流通采光好,也给家人提供娱乐的地方。

94

95

96:复式设计的二层小楼,一楼厨房吗,餐厅,客厅,书房,阳台,卫生间。二楼:起居厅,卧室(卫)*2。

97:户型中带套间的卧室会使人的居住更加舒适,便捷。客厅和主卧都带有飘窗,既有大面积采光,也保留宽敞的窗台。

98:不仅有生活阳台还有入户花园,简直太哇塞了。

99:户型不仅要为家人打造舒适的居住体验,也要打造舒适的办公学习场所。

100

101

102:起居室不仅可通往生活阳台还可通向主卧次卧。衣帽间属于敞开式设计,平时一些衣物都可以放在此处,归纳整理也方便了很多。

103:

104:多窗设计,这个户型的采光绝对好。

105:三卧室形成宽敞的生活空间,让家人的生活居住便捷,也要休闲娱乐。这款两个阳台不仅晾晒衣物,给孩子和家长也有了休闲的地方。很不错的。
