院子里种花栽树养鸡,这都是在城里体验不到的,还不担心扰民。小编给大家推荐一款适合种花栽树别墅设计,中式="://www.lemeizhai.com/Picture.asp?PicClassID=91" target="_self" style="font-size: 24px; text-decoration: underline;">三别墅设计白墙灰瓦,水池绿植都可以在院子里,有车库方便停车放置杂物

别墅层数: 三层
别墅风格: 中式
占地面积:142㎡
开 间:13.1m
进 深:10.9m
建筑占地:13.1m×10.9m
建筑面积:358㎡
主体造价:52.2~57.2万
建筑结构:框架结构



主体设计:

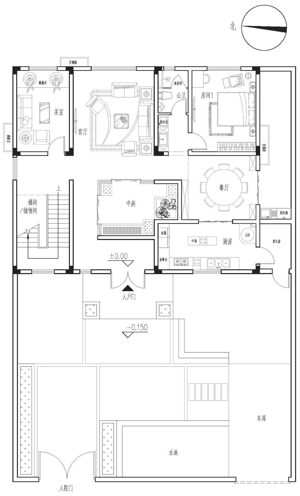
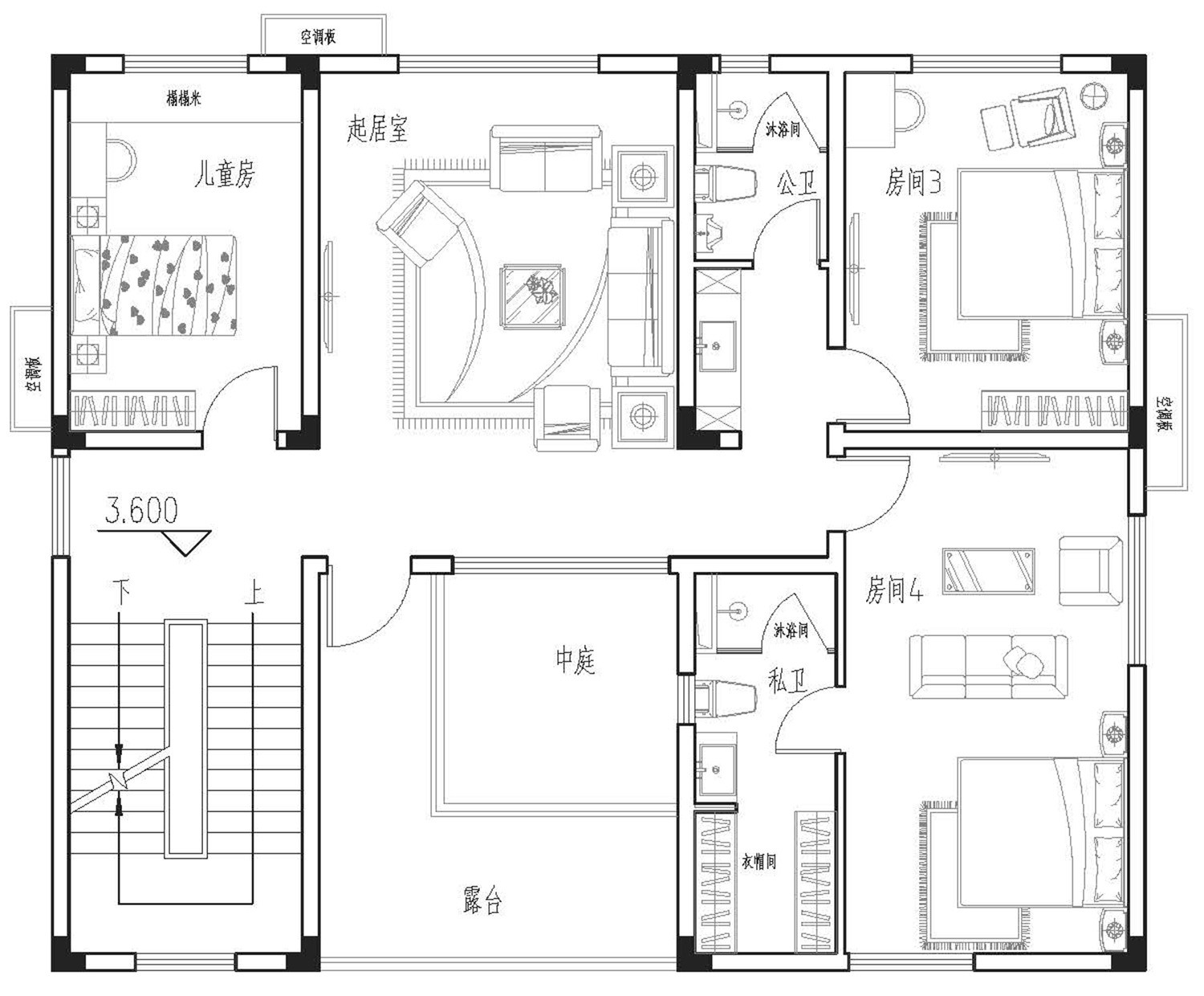
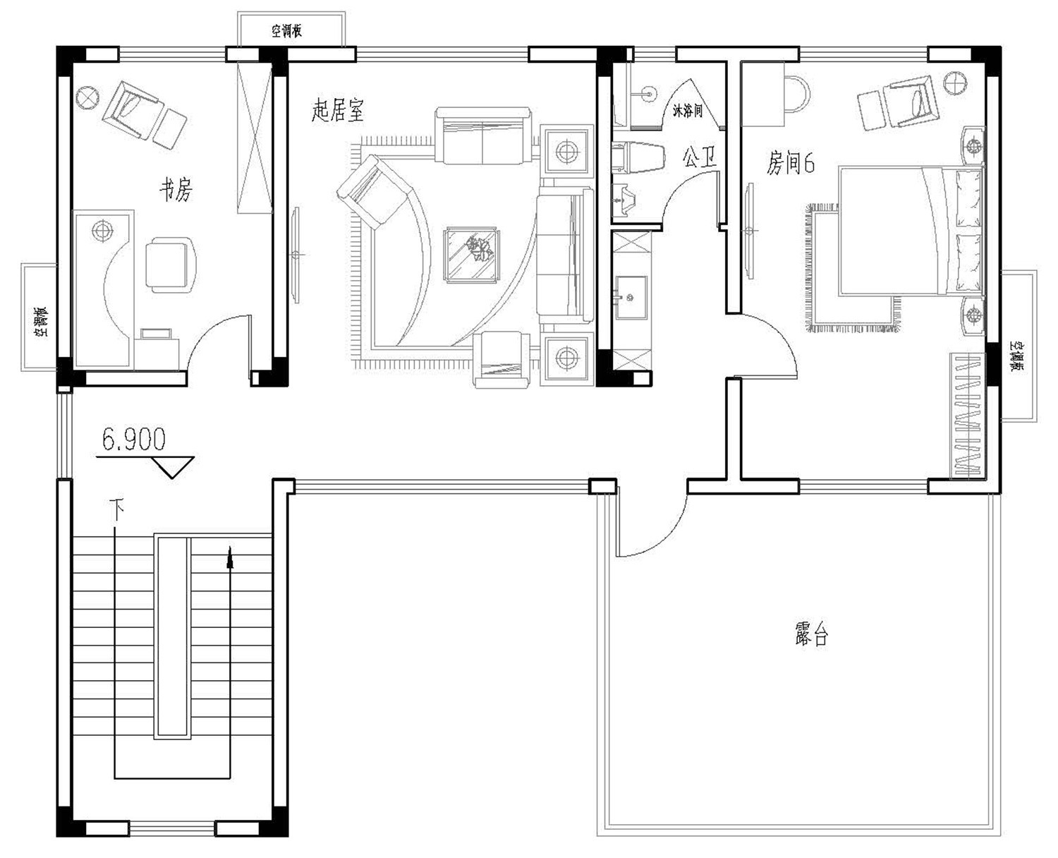
客厅、餐厅、厨房、卧室、公卫、阳台、露台。

。

="://www.lemeizhai.com/index.asp" target="_self">转载请注明出自轩鼎别墅设计:://www.lemeizhai.com/index.asp