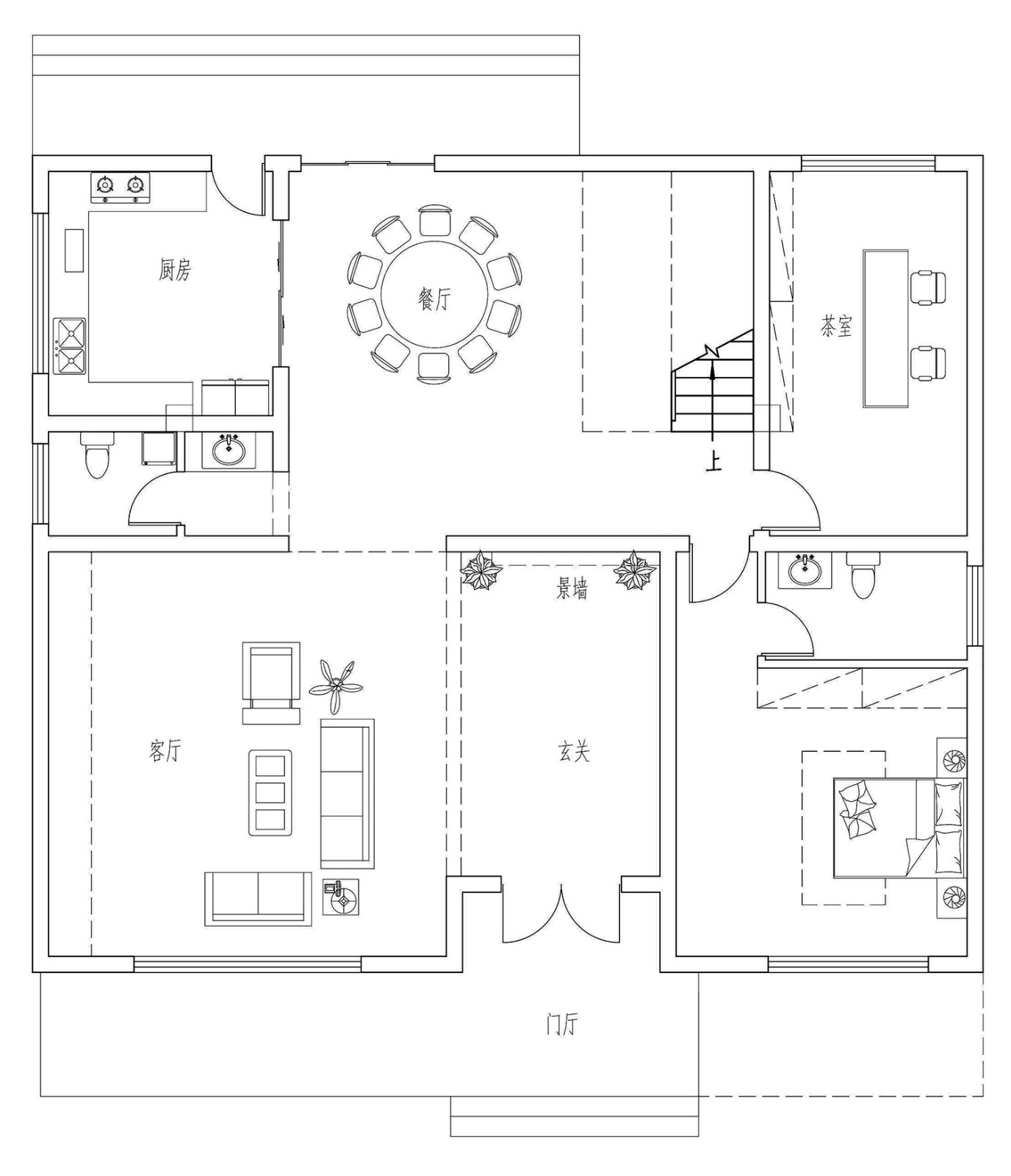
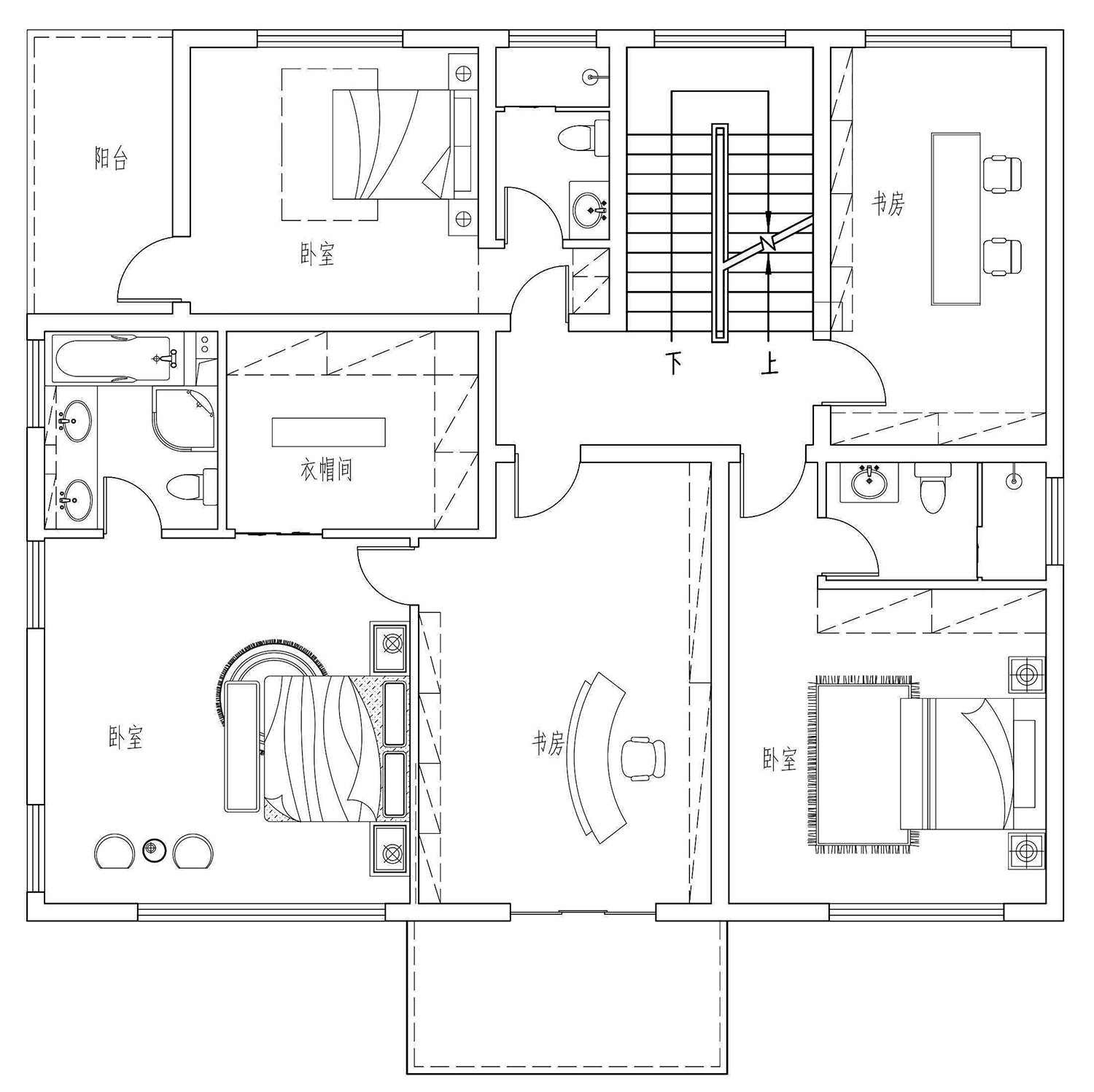
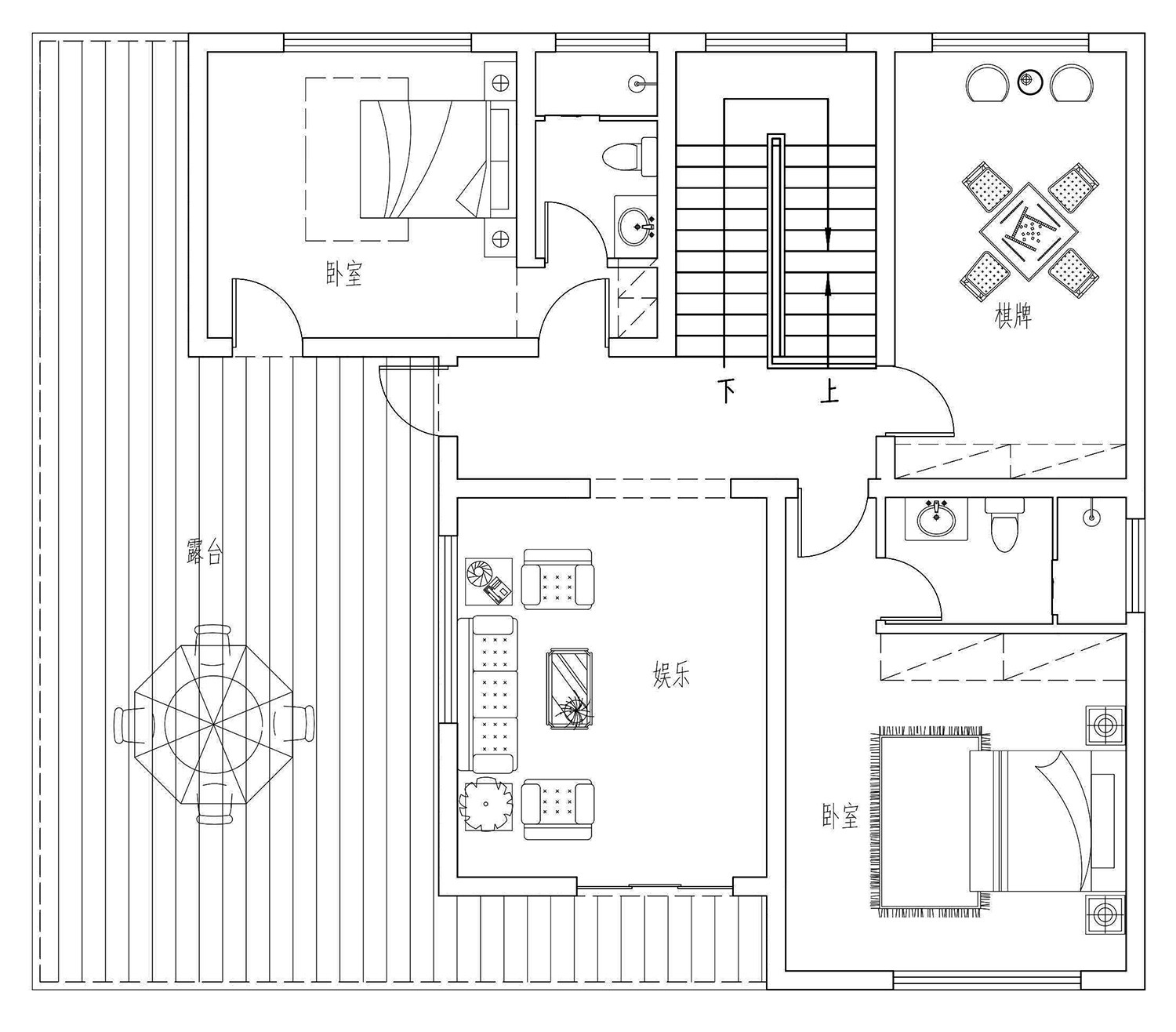
把生活质量放在第一位的房子才是好房子,这样的房子不仅住着舒心而且对身体也很,心情好了不就身体好吗。今天给大家介绍的案例是莆田萧炎先生的,萧先生是一个热爱生活的人,专门找我们定制的="://www.lemeizhai.com/Picture.asp?PicClassID=91" target="_self" style="font-size: 24px; text-decoration: underline;">三层别墅设计,这是一款看起来就舒服的欧式建筑,有茶室、书房、露台。

别墅层数: 三层
别墅风格: 欧式
占地面积:168㎡
开 间:14m
进 深:12m
建筑占地:14m×12m
建筑面积:507㎡
主体造价:74.6~79.6万
建筑结构:砖混结构


主体设计:

客厅、餐厅、厨房、卧室、公卫、阳台、露台。

。

="://www.lemeizhai.com/index.asp" target="_self" style="font-family: 楷体, 楷体_GB2312, SimKai; font-size: 24px; text-decoration: underline;">转载请注明出自轩鼎别墅设计:://www.lemeizhai.com/index.asp