不得不佩服有钱人会享受的精神,未来可能有钱的人会在农村居住,而城里的人都会想要在农村养老的,当然这只是猜想。今天给大家推荐一款二层="://www.lemeizhai.com/search.asp?SearchType=Software&imageField.x=41&imageField.y=28&SearchKey=%D6%D0%CA%BD%B1%F0%CA%FB%C9%E8%BC%C6" target="_self" style="font-size: 24px; text-decoration: underline;">中式别墅设计希望你们喜欢,白墙灰瓦的传统设计绝对让你的房子传遍十里八乡。

别墅层数: 二层
别墅风格: 中式
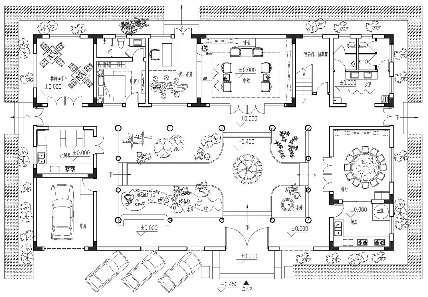
占地面积:375㎡
开 间:25m
进 深:15m
建筑占地:25m×15m
建筑面积:584㎡
主体造价:82.0~87.0万
建筑结构:框架结构


主体设计:

客厅、餐厅、厨房、卧室、公卫、阳台、露台。

。
="://www.lemeizhai.com/index.asp" target="_self" style="font-family: 楷体, 楷体_GB2312, SimKai; font-size: 24px; text-decoration: underline;">转载请注明出自轩鼎别墅设计:://www.lemeizhai.com/index.asp