简欧风="://www.lemeizhai.com/Picture.asp?PicClassID=88" target="_self" style="font-size: 24px; text-decoration: underline;">别墅设计这样建才能简而不简,下面这款刘总的二层方案就是例子,外墙立面是真石漆这样的房子漂亮好看,斜屋顶是欧式别墅的精髓兼顾美观实用,庭院的设计给生活增加色彩。

别墅层数: 二层
别墅风格: 欧式
占地面积:128㎡
开 间:15.3m
进 深:8.4m
建筑占地:15.3m×8.4m
建筑面积:258㎡
主体造价:36.2~41.2万
建筑结构:砖混结构


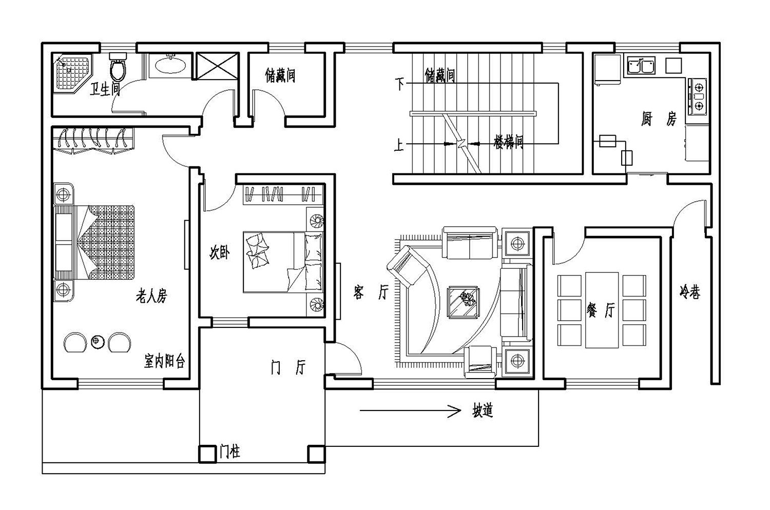
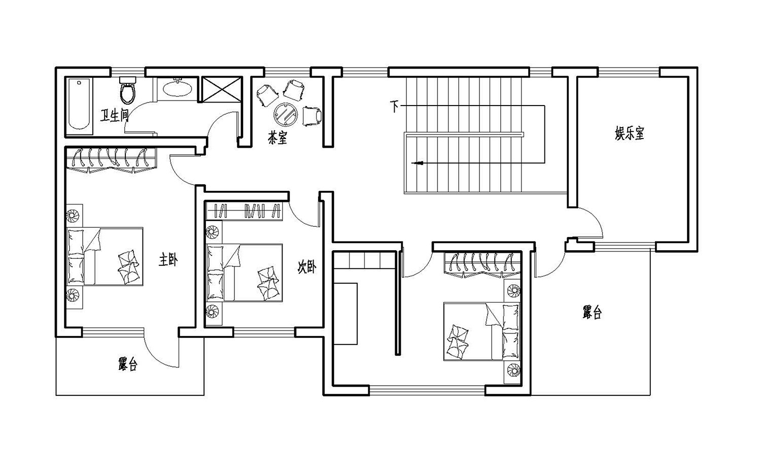
主体设计:

客厅、餐厅、厨房、卧室、公卫、阳台、露台。

。
="://www.lemeizhai.com/index.asp" target="_self">转载请注明出自轩鼎别墅设计:://www.lemeizhai.com/index.asp