三层别墅四层别墅看起来很是大气豪华,二层别墅也能大气漂亮。这款湖北施总私人订制款="://www.lemeizhai.com/Picture.asp?PicClassID=88" target="_self" style="font-size: 24px; text-decoration: underline;">二层别墅设计中式风格,砖混结构采光良好,停车方便院落设计堪称一绝!主体预估价60多万


别墅层数: 二层
别墅风格: 中式
占地面积:196㎡
开 间:14m
进 深:14m
建筑占地:14m×14m
建筑面积:306㎡
主体造价:63.0~68.0万
建筑结构:砖混结构

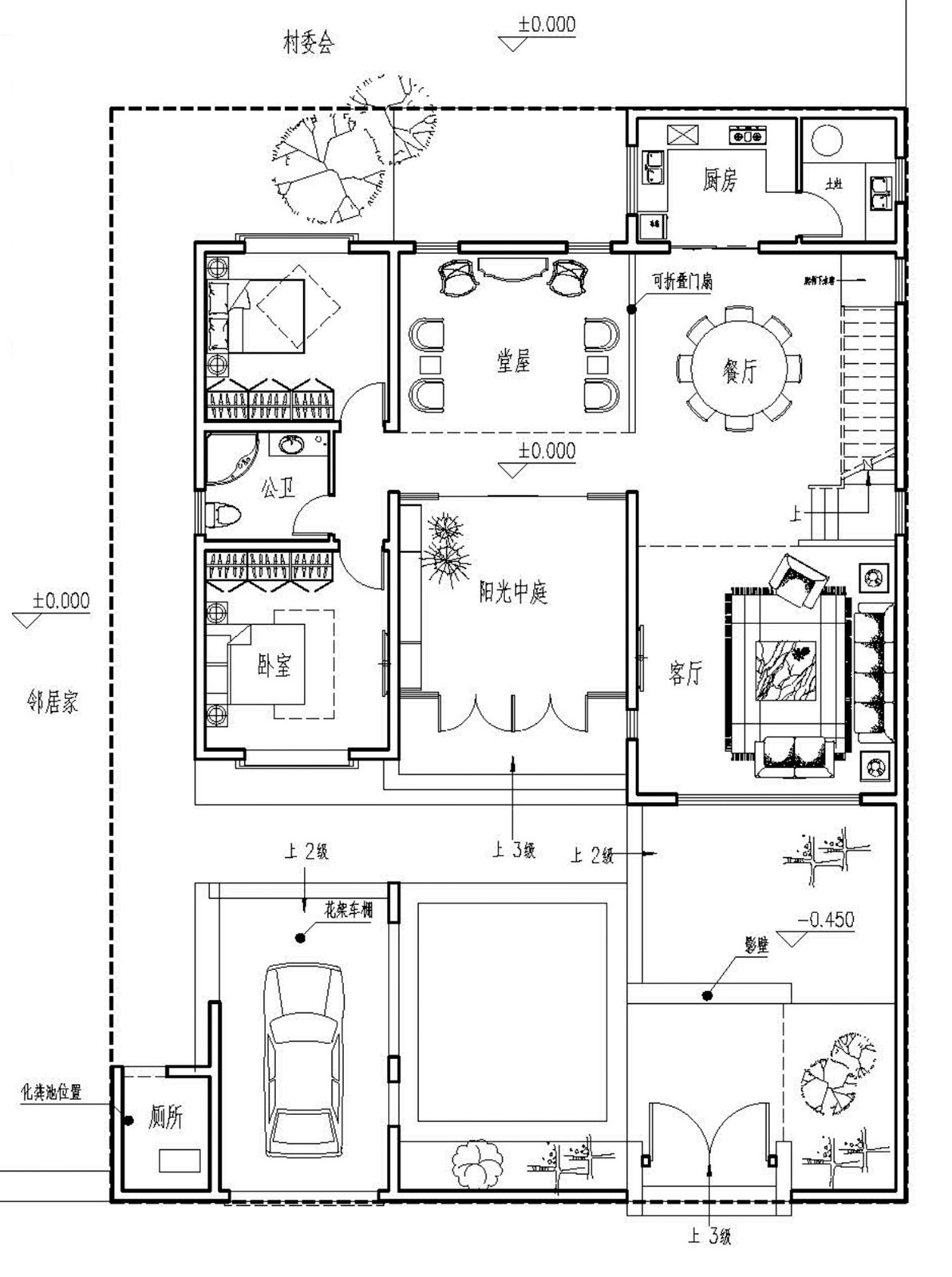
主体设计:

客厅、餐厅、厨房、卧室、公卫、阳台、露台。

。
="://www.lemeizhai.com/index.asp" target="_self">转载请注明出自轩鼎别墅设计:://www.lemeizhai.com/index.asp