这是一款把舒适做到极致的="://www.lemeizhai.com/Picture.asp?PicClassID=91" target="_self" style="text-decoration: underline; font-size: 24px;">三层别墅设计,空间大的,功能多,视野开阔。别墅是框架结构,能获得更大空间!别墅外墙采用真石漆,别墅更加保温舒适。

别墅层数: 三层
别墅风格: 现代
占地面积:259㎡
开 间:18.5m
进 深:14m
建筑占地:18.5m×14m
建筑面积:421㎡
主体造价:65.0~70.0万
建筑结构:框架结构

主体设计:

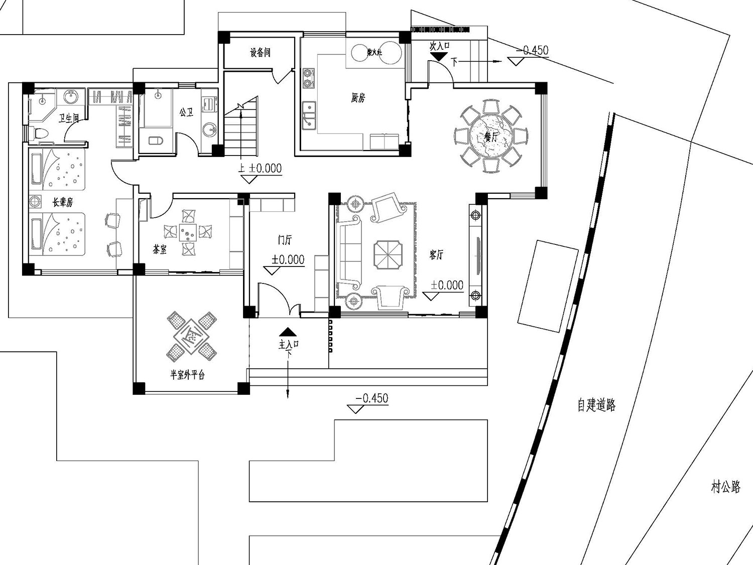
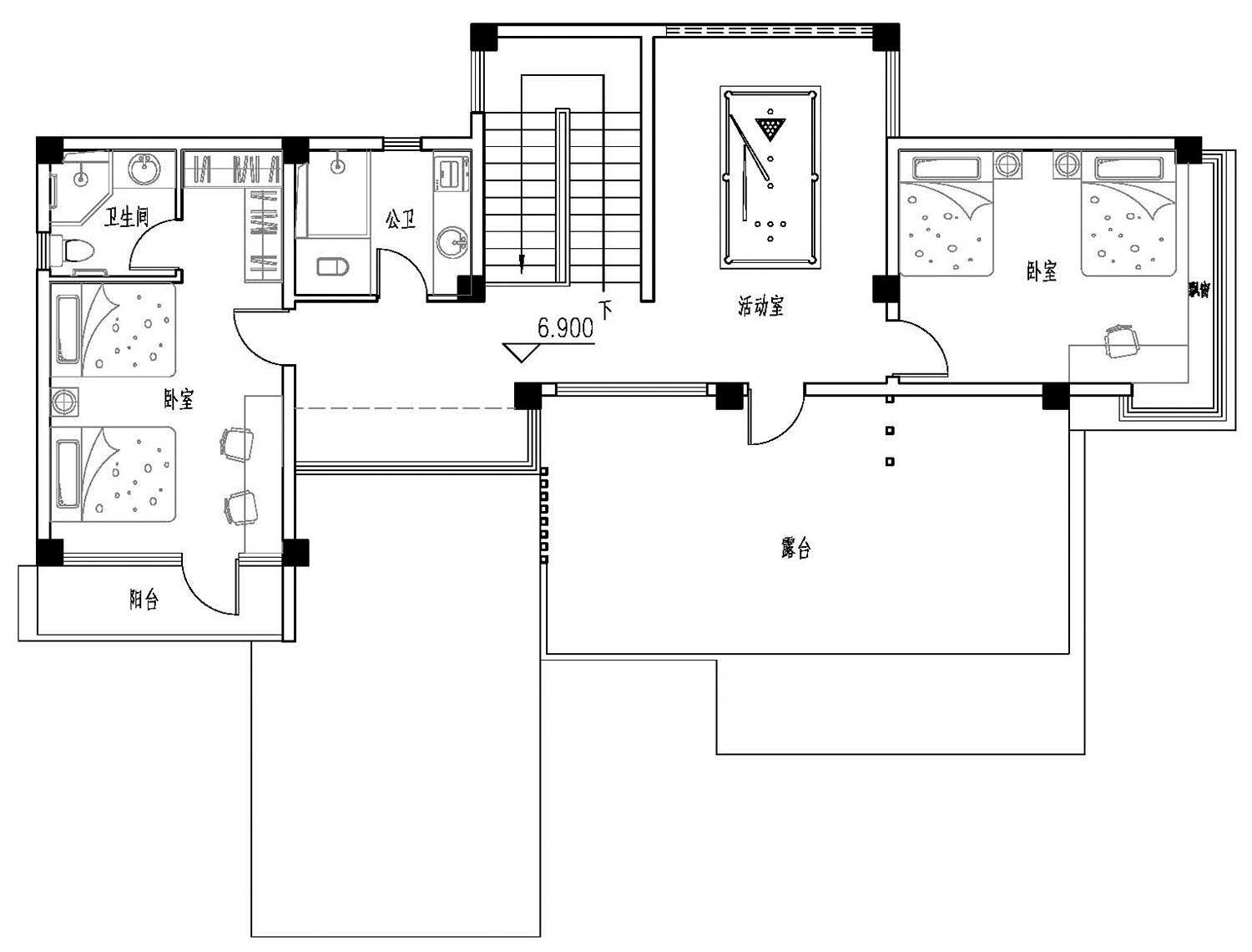
客厅、餐厅、厨房、卧室、公卫、阳台、露台。

。

="://www.lemeizhai.com/index.asp" target="_self" style="font-size: 24px; text-decoration: underline;">转载请注明出自轩鼎别墅设计:://www.lemeizhai.com/index.asp