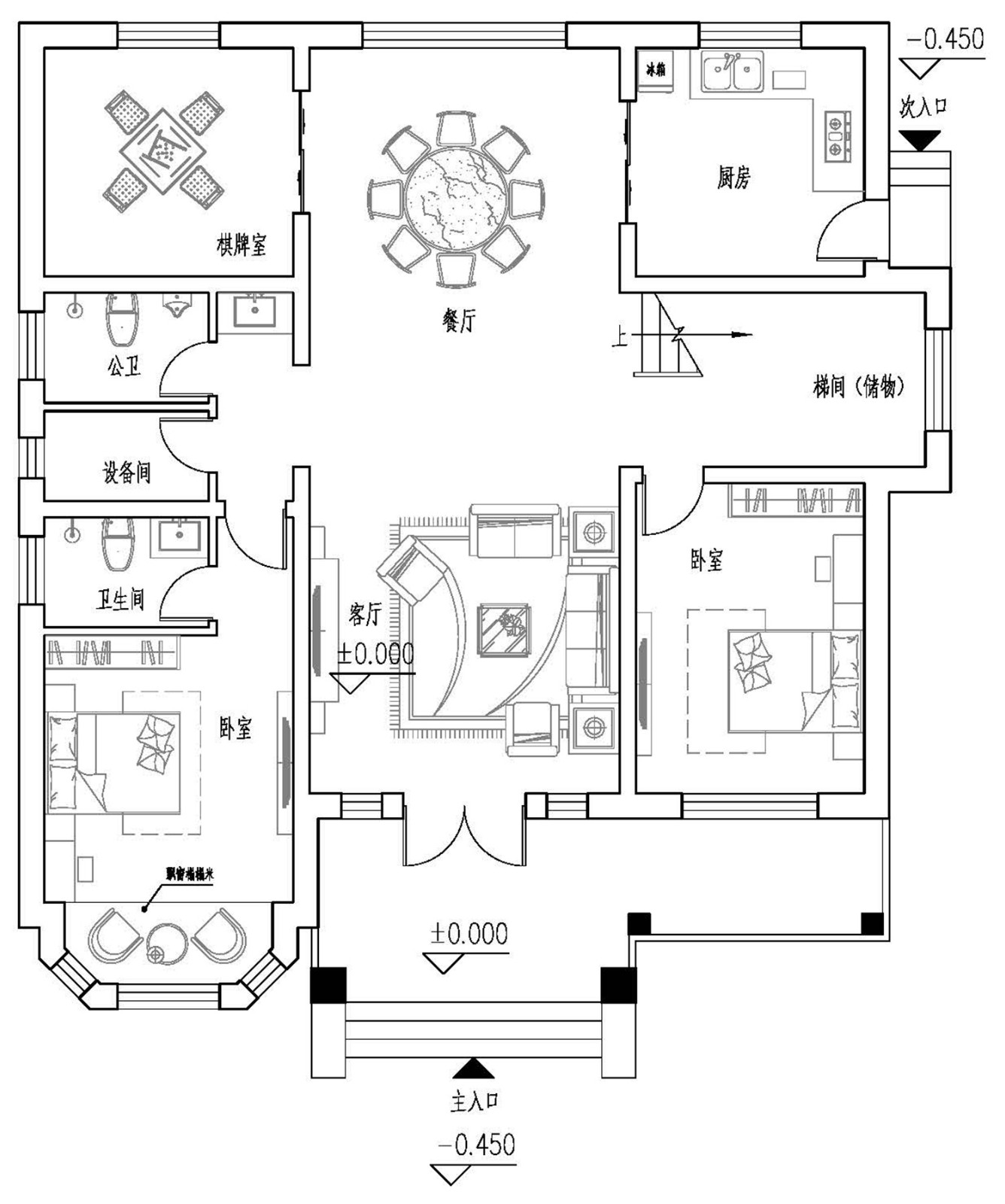
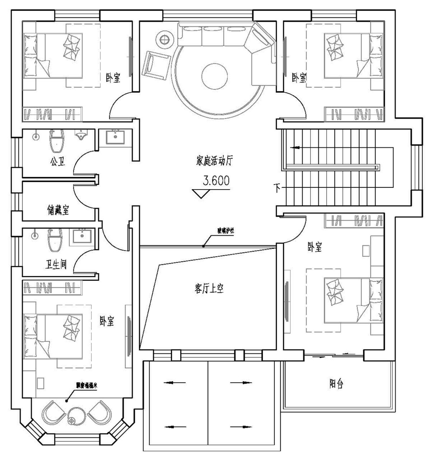
今天给大家介绍的别墅款式是较为经典的欧式别墅设计,这款别墅分两层设有挑空客厅,空间感不错内部明亮房间足够。这款别墅设计一进门就是客厅,卧室设计安全隐私。可以点击="://www.lemeizhai.com/Picture.asp?PicClassID=91" target="_self" style="font-size: 24px; text-decoration: underline;">设计别墅图纸进官网查看

别墅层数: 二层
别墅风格: 欧式
占地面积:198㎡
开 间:13.7m
进 深:14.5m
建筑占地:13.7m×14.5m
建筑面积:330㎡
主体造价:47.8~52.8万
建筑结构:砖混结构

主体设计:

客厅、餐厅、厨房、卧室、公卫、阳台、露台。

。
转载请注明出自轩鼎别墅设计:://www.lemeizhai.com/index.asp