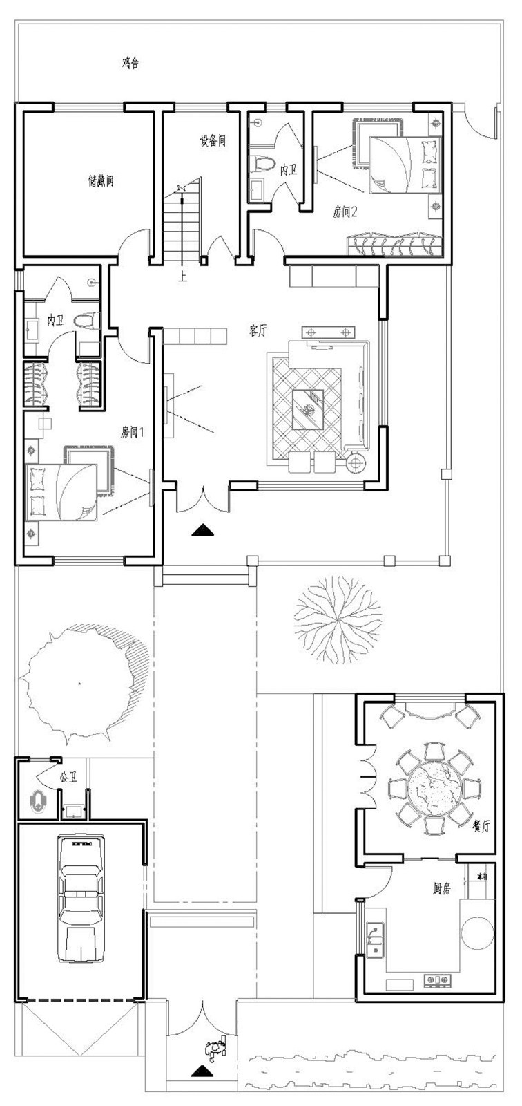
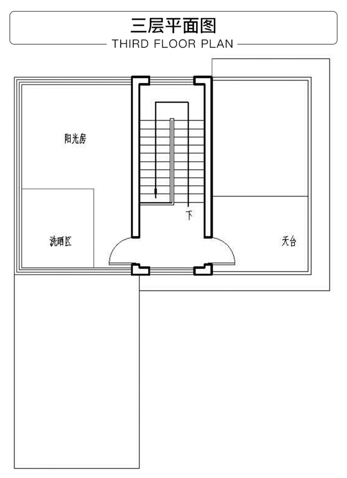
家住临沂的贺老板是五口之家,想要一栋住的舒适的="://www.lemeizhai.com/Picture.asp?PicClassID=91" target="_self" style="font-size: 24px; text-decoration: underline;">别墅设计就找到我们,设计师设计了一栋三层的新中式别墅。这款别墅一、二层是居住区有前后院,厨房设在偏房有车库,三层是一个阳光房。

别墅层数: 三层
别墅风格: 中式
占地面积:157㎡
开 间:12.2m
进 深:12.9m
建筑占地:12.2m×12.9m
建筑面积:330㎡
主体造价:43.0~48.0万
建筑结构:砖混结构

主体设计:

客厅、餐厅、厨房、卧室、公卫、阳台、露台。

。

转载请注明出自轩鼎别墅设计:://www.lemeizhai.com/index.asp