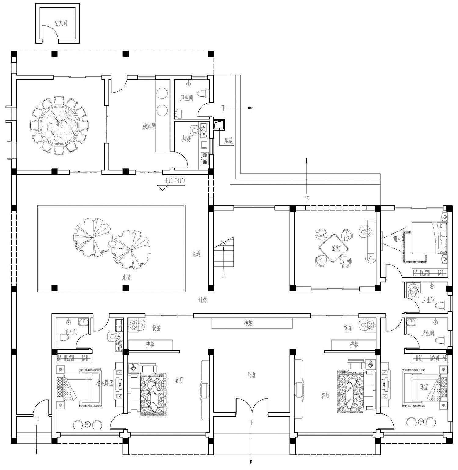
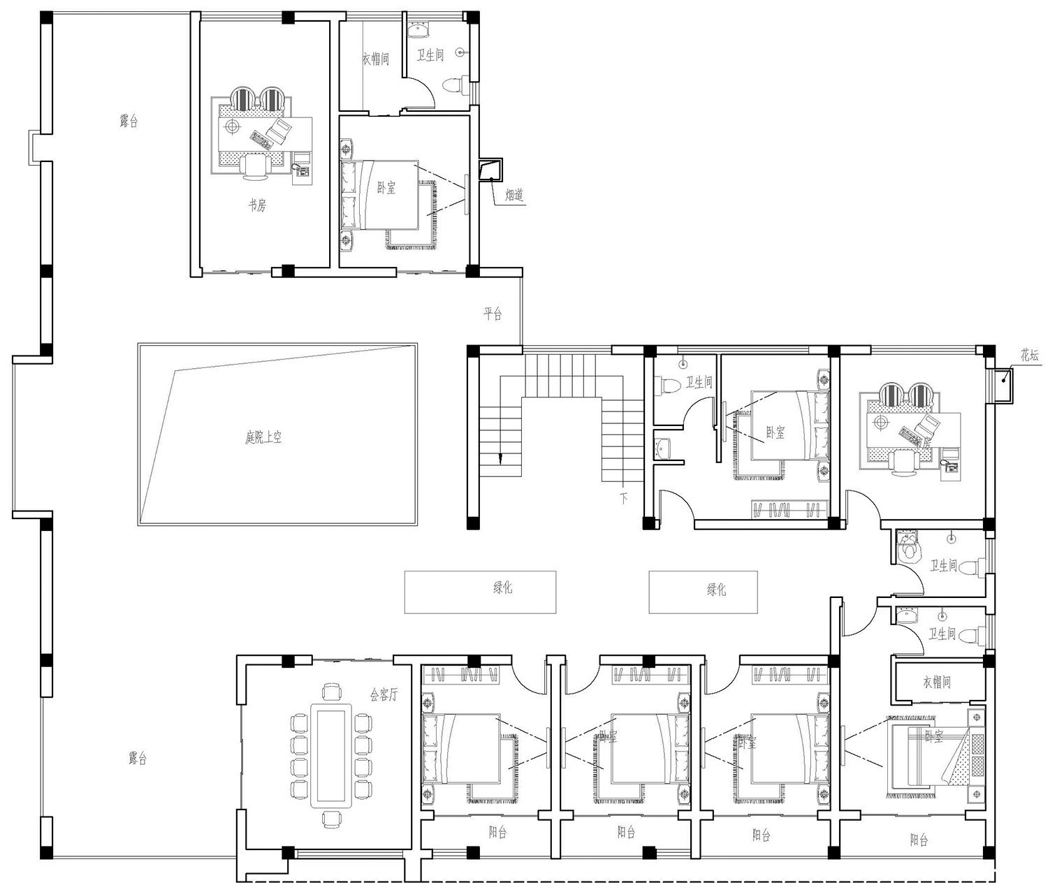
喜欢现代别墅设计的朋友这款二层现代别墅一定不要错过。这款别墅设计空间大,房间多,有水景,造价预估主体90多万,别墅非常适合南方的朋友建造。喜欢的可以收藏哦

别墅层数: 二层
别墅风格: 现代
占地面积:493㎡
开 间:24.3m
进 深:20.3m
建筑占地:24.3m×20.3m
建筑面积:580㎡
主体造价:88.0~93.0万
建筑结构:框架结构


主体设计:

客厅、餐厅、厨房、卧室、公卫、阳台、露台。

。
="://www.lemeizhai.com/index.asp" target="_self">转载请注明出自轩鼎别墅设计:://www.lemeizhai.com/index.asp