我最羡慕的是农村有房,城里有房,父母健康,老婆贤惠,压力不是太大的人。不好意思扯太远了,进入今天的主体吧,这是一款欧式="://www.lemeizhai.com/Picture.asp?PicClassID=88" target="_self" style="font-size: 24px; text-decoration: underline;">二层别墅设计。

别墅层数: 二层
别墅风格: 欧式
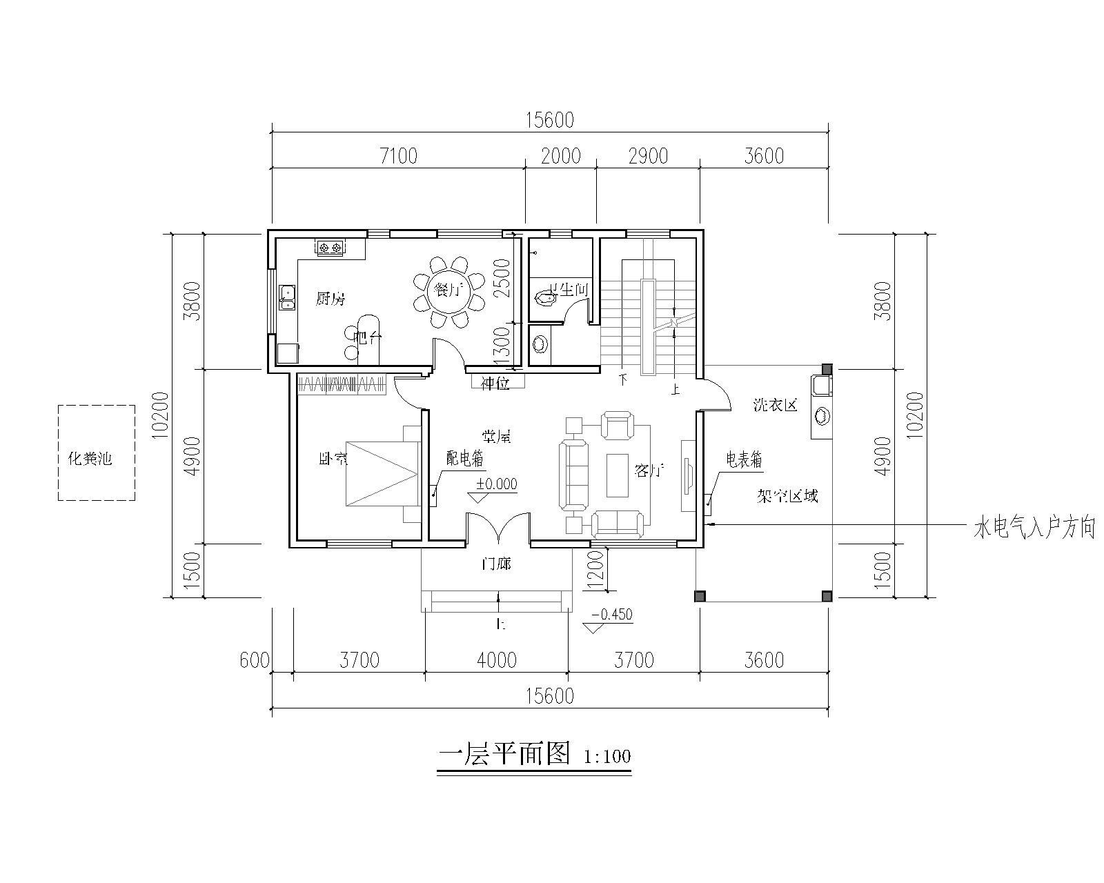
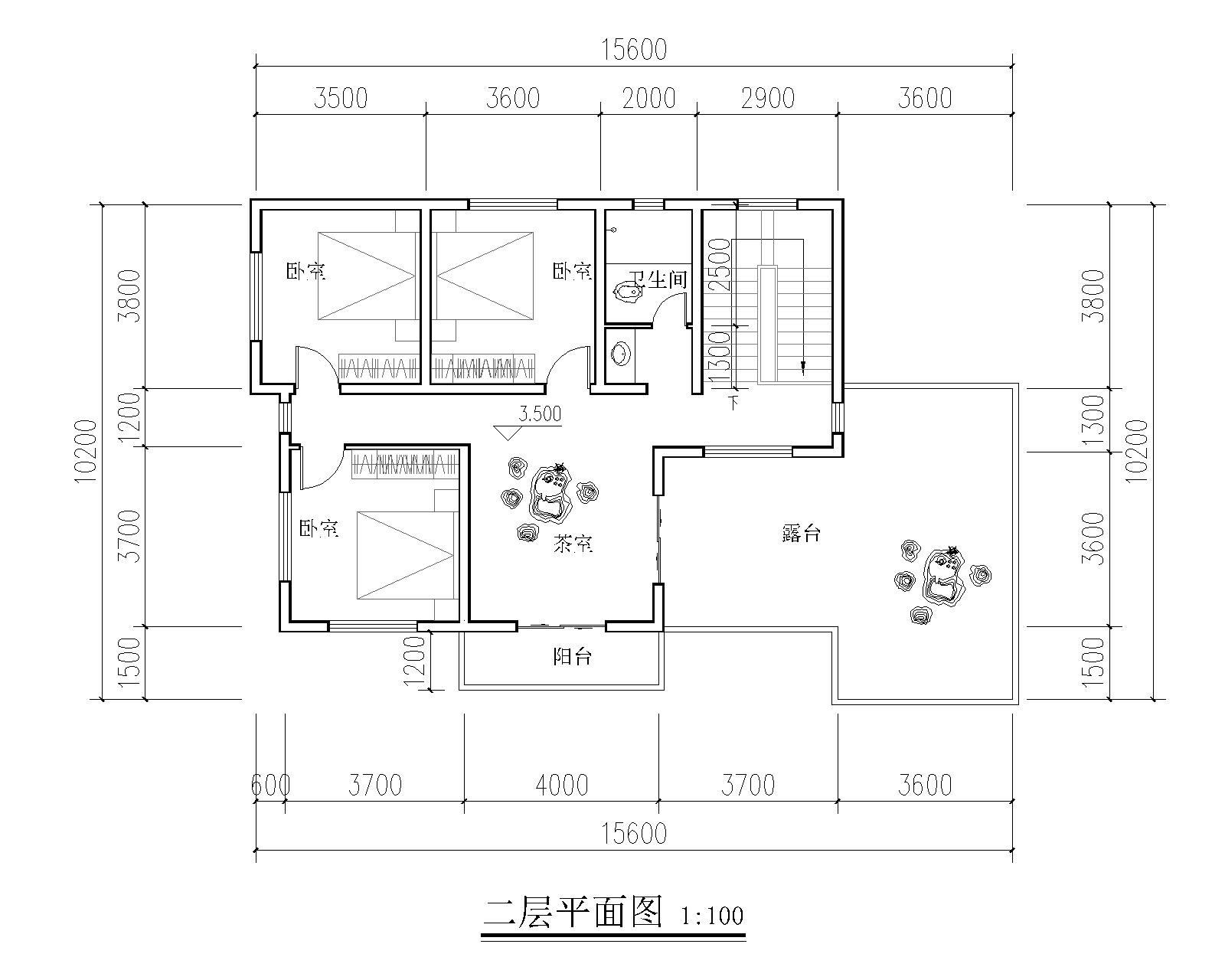
占地面积:137㎡
建筑占地:15.6×10.2
建筑面积:214.98㎡
建筑结构:砖混结构


主体设计:

客厅、餐厅、厨房、卧室、公卫、阳台、露台。

。
转载请注明出自轩鼎别墅设计:://www.lemeizhai.com/index.asp