建别墅我最想建的是有庭院的二层欧式别墅,不仅安全实用而且还好看!今天小编给大家推荐一款带庭院的="://www.lemeizhai.com/Picture.asp?PicClassID=88" target="_self" style="font-size: 24px; text-decoration: underline;">二层别墅设计,是一款不错的小宅。

别墅层数: 二层
别墅风格: 欧式
占地面积:321㎡
开间:15.3m
进深:21m
建筑占地:15.3m×21m
建筑面积:388㎡
主体造价:53.0~58.0万
建筑结构:框架结构


r
主体设计:

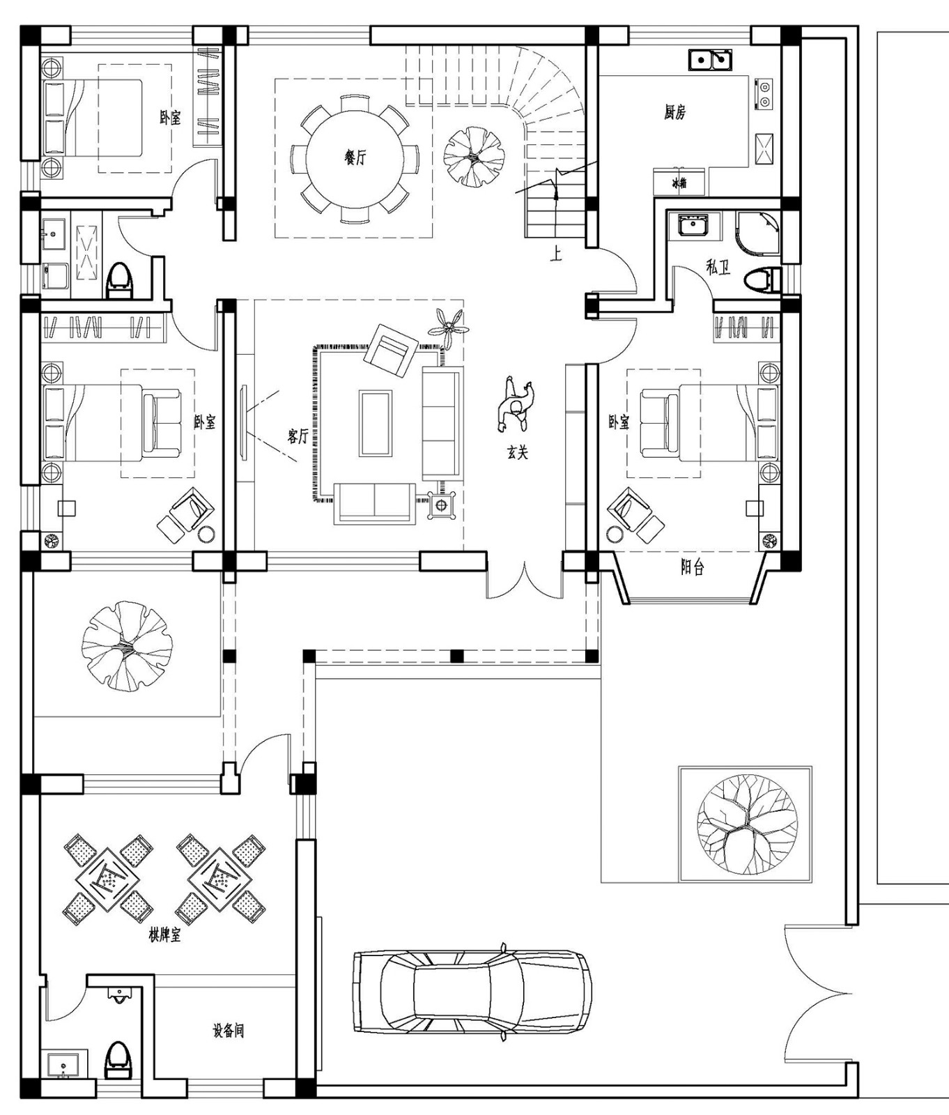
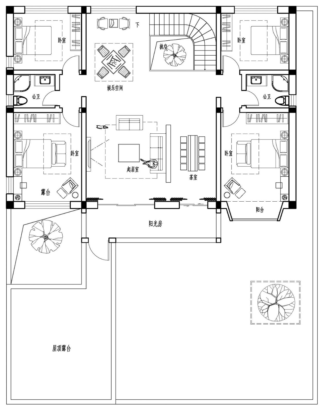
客厅、餐厅、厨房、卧室、公卫、阳台、露台。

。
转载请注明出自轩鼎别墅设计:://www.lemeizhai.com/index.asp