在外靠朋友,在家靠家人,最主要的是家人!家庭和睦外人才不会看不起我们,兄弟和睦才不会被欺负。今天这款于总定制的兄弟双拼别墅推荐给大家,建一栋在村里没人敢欺负。喜欢别墅设计的点击="://www.lemeizhai.com/index.asp" target="_self" style="font-size: 24px; text-decoration: underline;">设计别墅图纸进官网查看

别墅层数: 三层
别墅风格: 欧式
占地面积:178㎡
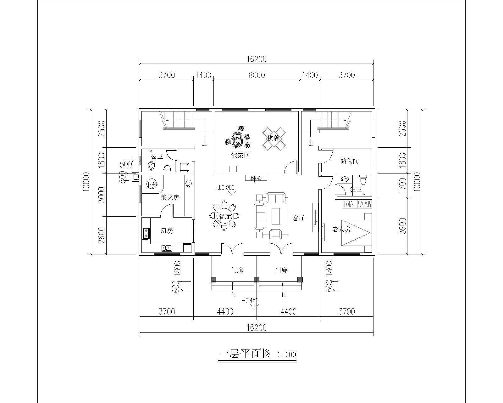
开 间:16.2m
进 深:10m
建筑占地:16.2m×10m
建筑面积:485.08㎡
主体造价:53.2~58.2万
建筑结构:砖混结构


主体设计:

客厅、餐厅、厨房、卧室、公卫、阳台、露台。

。

转载请注明出自轩鼎别墅设计:://www.lemeizhai.com/index.asp