人活一世最重要的是健康,平时要多运动。要说新中式别墅最适合什么地方,那肯定是南方了,像什么苏州园林就在南方。今天这款="://www.lemeizhai.com/search.asp?SearchType=Software&imageField.x=24&imageField.y=26&SearchKey=%D6%D0%CA%BD%B1%F0%CA%FB%C9%E8%BC%C6" target="_self" style="font-size: 24px; text-decoration: underline;">中式别墅设计推荐给大家,这房子四个卧室和传统的合院差不多,白墙黑瓦非常漂亮。

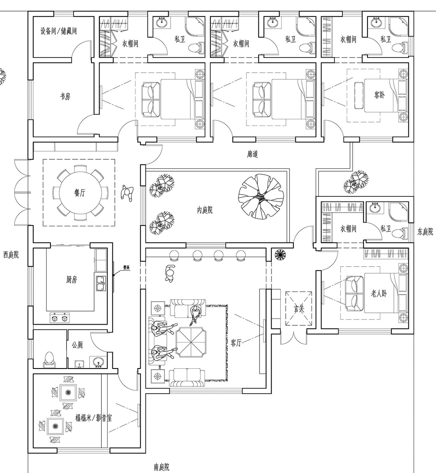
别墅层数: 一层
别墅风格: 现代
占地面积:350㎡
开 间:17.5m
进 深:20m
建筑占地:17.5m×20m
建筑面积:262㎡
主体造价:37.0~42.0万
建筑结构:砖混结构


主体设计:
客厅、餐厅、厨房、卧室、公卫、阳台、露台。

。
转载请注明出自轩鼎别墅设计:://www.lemeizhai.com/index.asp