欧式别墅相信大家都很喜欢,今天给大家推荐最高主体价只需36万欧式别墅,真石漆和文化石搭配大理石,别墅整体非常漂亮。喜欢别墅设计的点击="://www.lemeizhai.com/index.asp" target="_self" style="font-size: 24px; text-decoration: underline;">设计别墅图纸进官网查看

别墅层数: 三层
别墅风格: 欧式
占地面积:110㎡
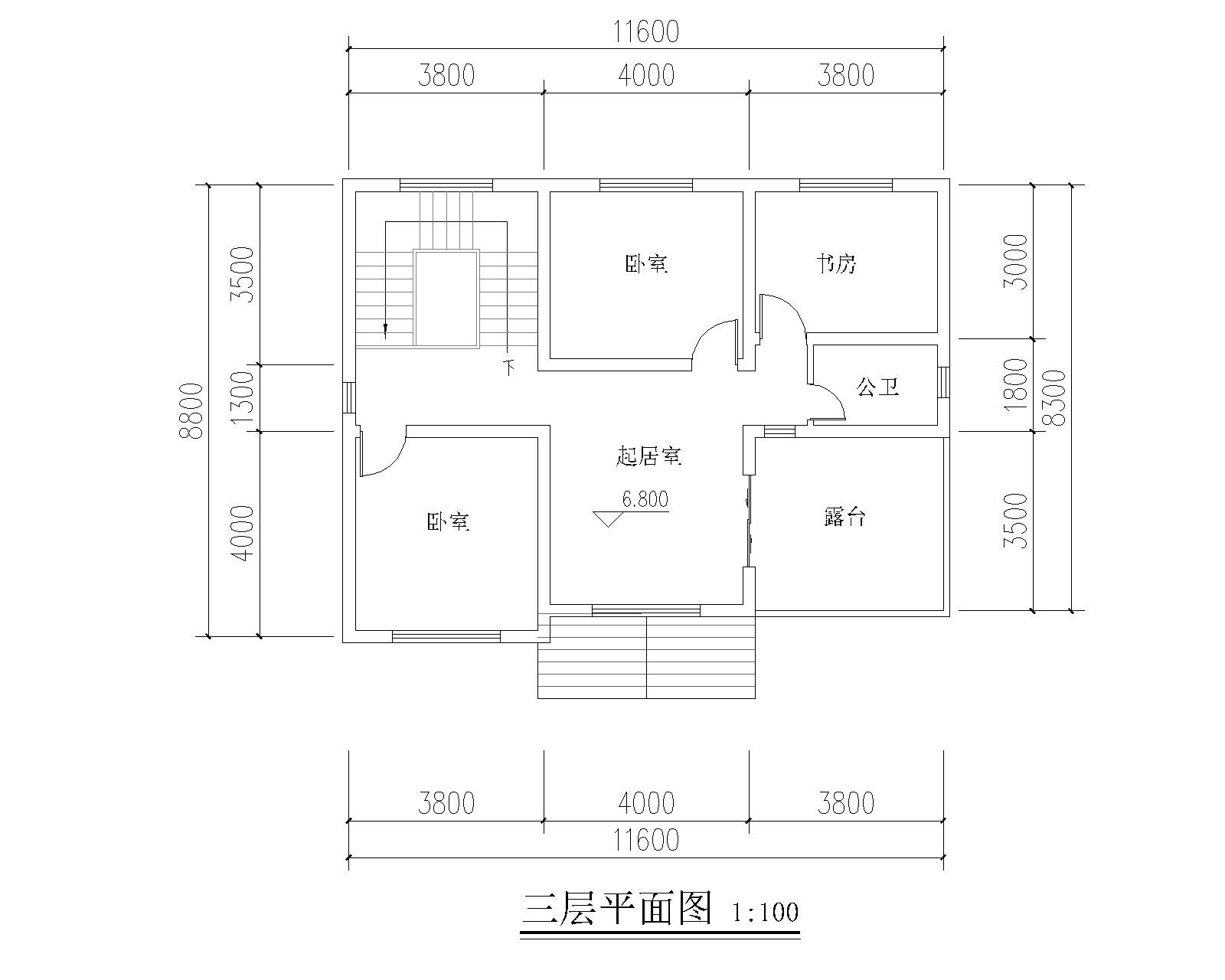
开 间:11.6m
进 深:8.8m
建筑占地:11.6m×8.8m
建筑面积:303.43㎡
主体造价:31.3~36.3万
建筑结构:砖混结构
主体设计:

客厅、餐厅、厨房、卧室、公卫、阳台、露台。

。

转载请注明出自轩鼎别墅设计:://www.lemeizhai.com/index.asp