农村自建房中欧式、现代、新中式占比很大,也有巴洛克、美式、法式,但主流的一般是欧式或中式。今天小编给大家介绍一款现代="://www.lemeizhai.com/Picture.asp?PicClassID=88" target="_self">自建房设计图,这款别墅清新漂亮,文化石装修漂亮养眼,喜欢的就马上行动。

别墅层数: 二层
别墅风格: 现代
占地面积:133㎡
开 间:10.8m
进 深:12.4m
建筑占地:10.8m×12.4m
建筑面积:235㎡
主体造价:36.0~41.0万
建筑结构:砖混结构


w
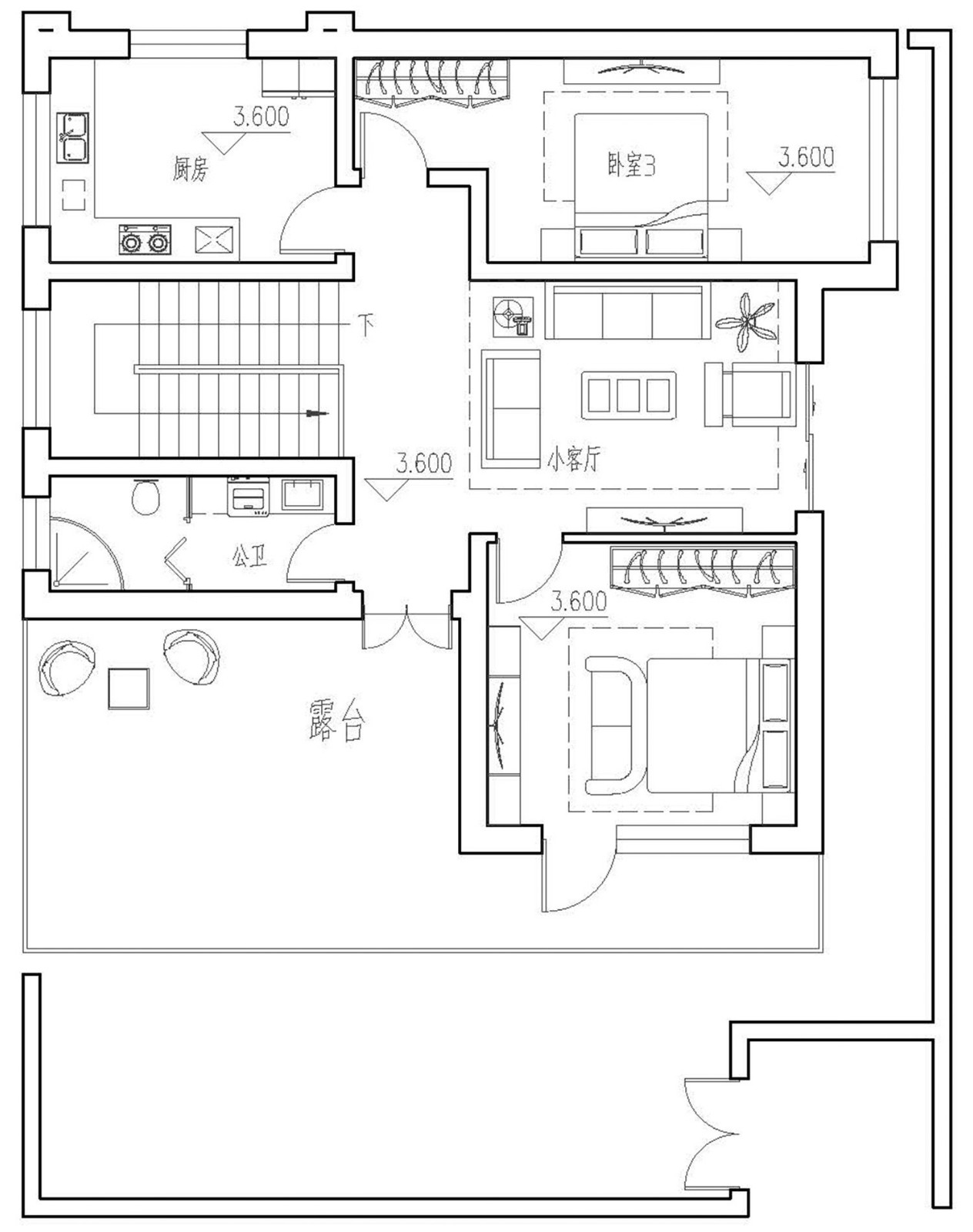
主体设计:

客厅、餐厅、厨房、卧室、公卫、阳台、露台。

。
转载请注明出自轩鼎别墅设计:://www.lemeizhai.com/index.asp