今天给大家推荐一款欧式="://www.lemeizhai.com/Picture.asp?PicClassID=91" target="_self" style="font-size: 24px; text-decoration: underline;">三层别墅设计,喜欢的就收藏吧。屋顶采用红色西班牙瓦,浅色真石漆装饰墙面,褐色文化石装饰勒脚,二楼阳台的罗马柱和石膏栏杆色调和谐优雅。
别墅层数: 三层
别墅风格: 欧式
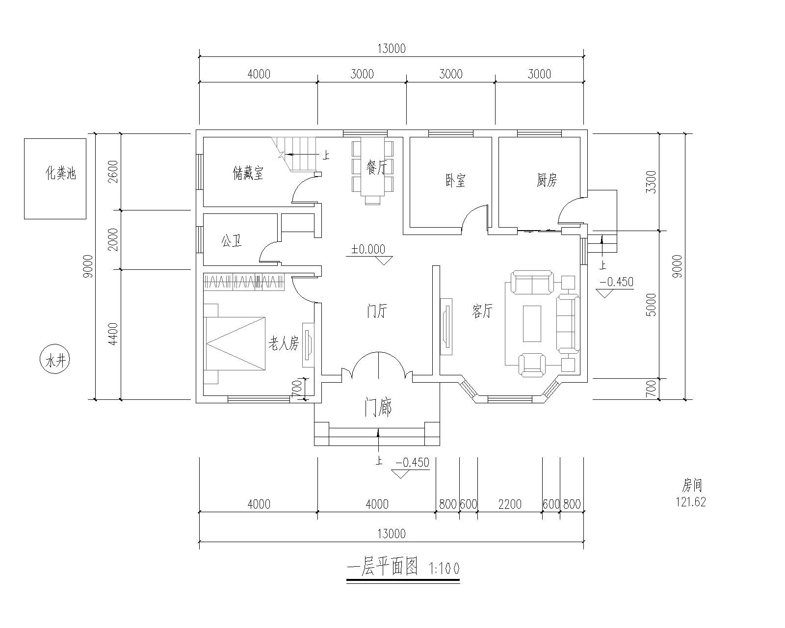
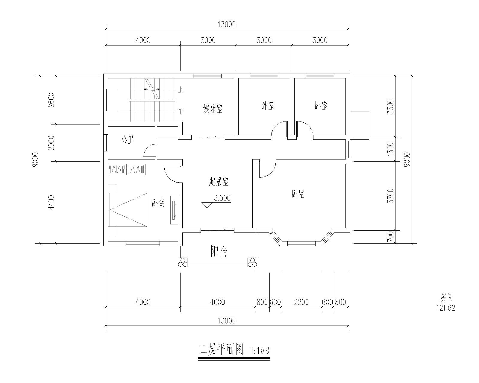
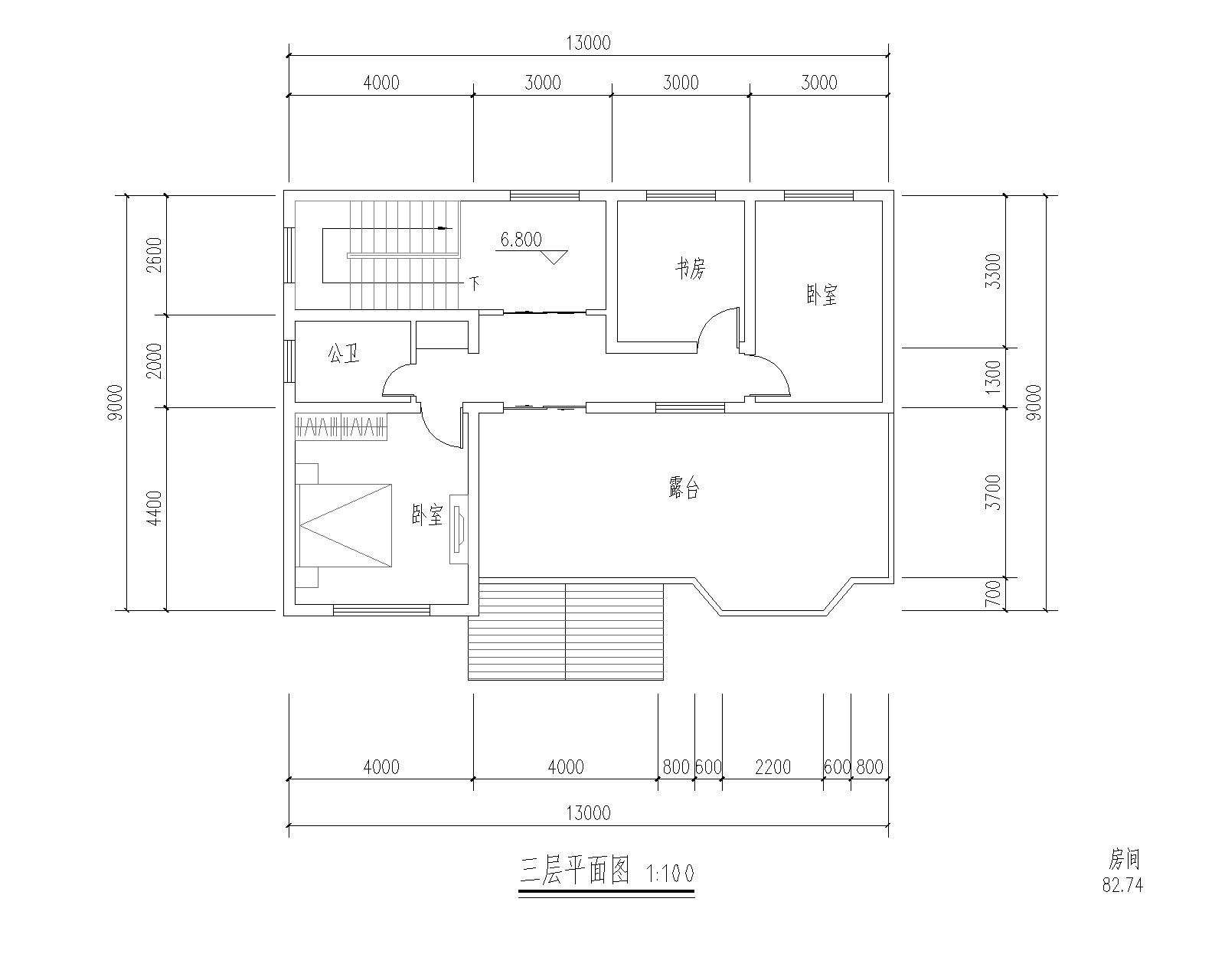
占地面积:121㎡
开 间:13m
进 深:9m
建筑占地:13m×9m
建筑面积:325.98㎡
主体造价:33.0~38.0万
建筑结构:砖混结构

主体设计:

客厅、餐厅、厨房、卧室、公卫、阳台、露台。


。
转载请注明出自轩鼎别墅设计:://www.lemeizhai.com/index.asp