“孟夏草木长,绕屋树扶疏,群鸟欣有托,吾亦爱吾庐。”农村自建房已经很多人能建得起了,尤其是南方三层小楼很普遍,建别墅比城里买房好太多了,我们这找婆家就看这家人在农村有没有小洋楼。今天这款欧式田园="://www.lemeizhai.com/Picture.asp?PicClassID=91" target="_self" style="font-size: 20px; text-decoration: underline;">三层别墅设计推荐给大家希望你们喜欢。

别墅层数: 三层
别墅风格: 欧式
占地面积:163㎡
开 间:13.3m
进 深:12.3m
建筑占地:13.3m×12.3m
建筑面积:297㎡
主体造价:47.0~52.0万
建筑结构:砖混结构

主体设计:

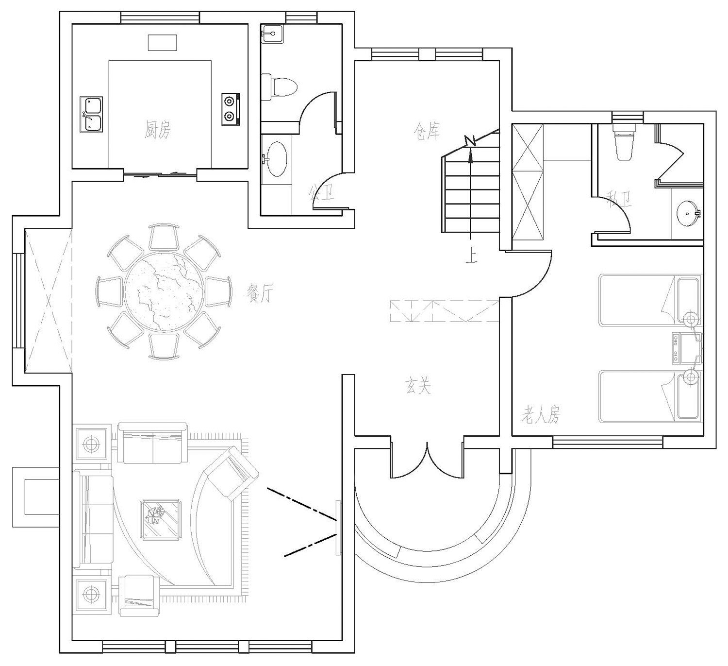
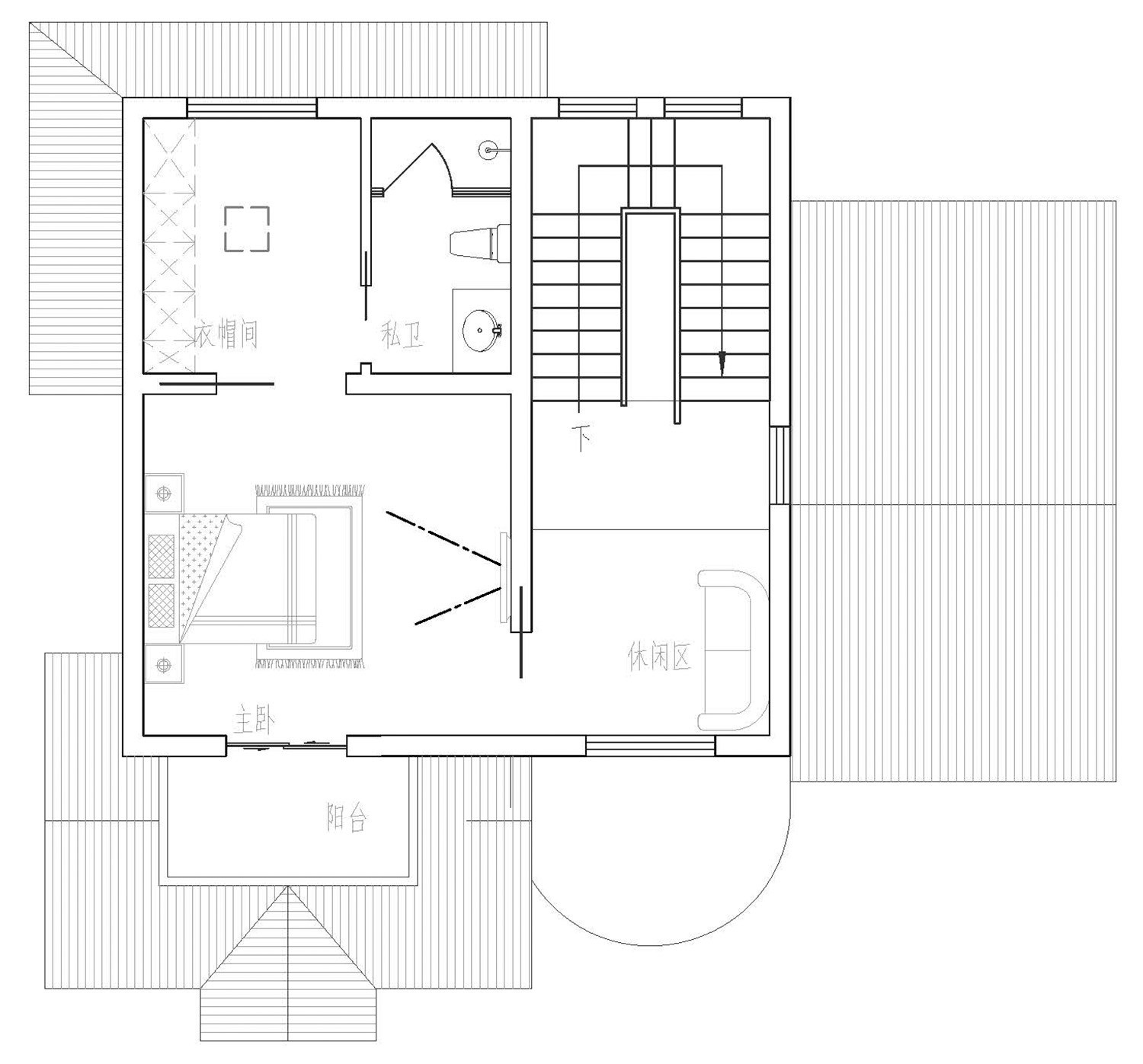
客厅、餐厅、厨房、卧室、公卫、阳台、露台。


。
转载请注明出自轩鼎别墅设计:://www.lemeizhai.com/index.asp