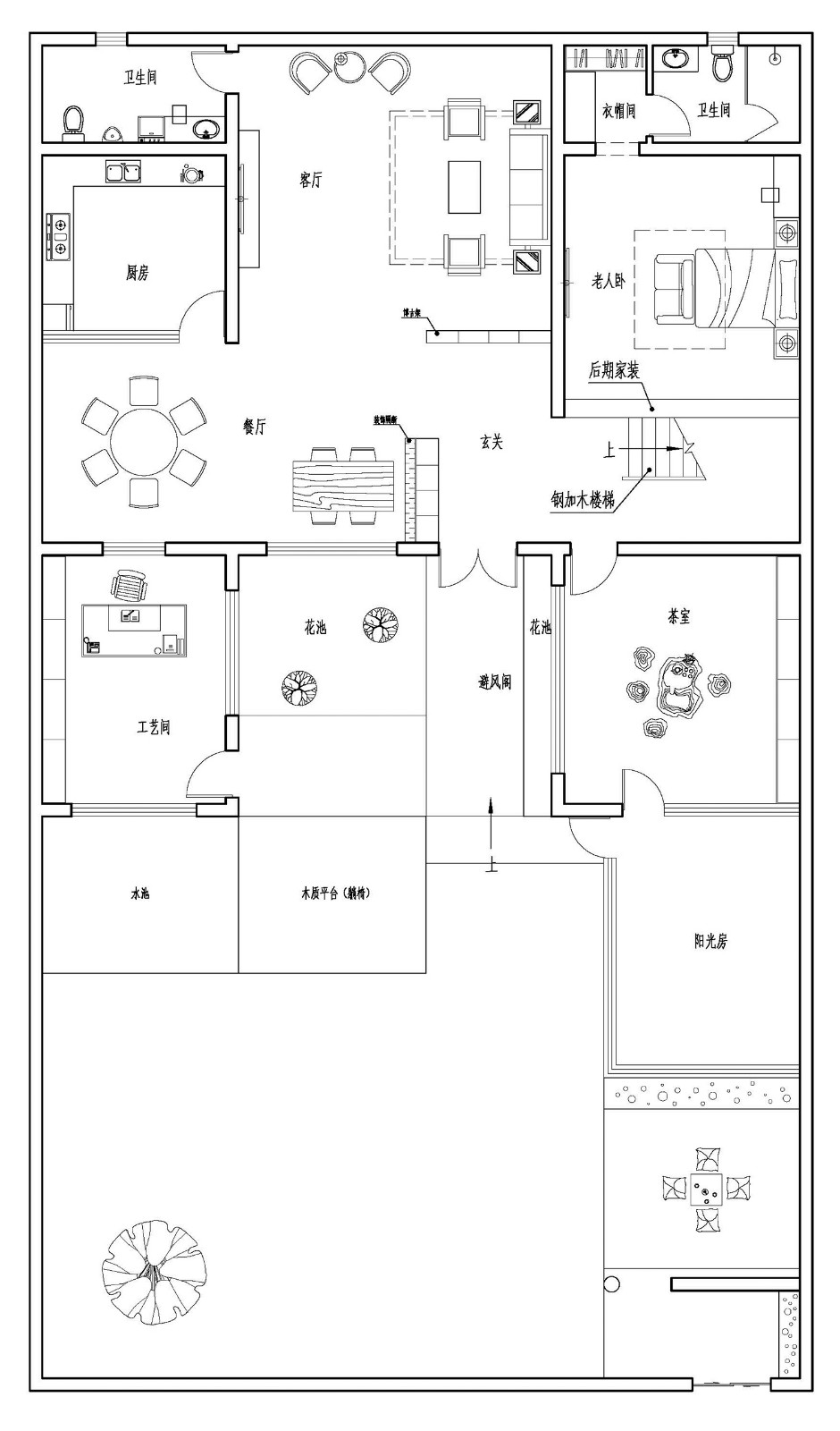
最适合年轻人自建的二层现代别墅,这款别墅非常符合年轻人的观念,年轻人非常注重个人隐私与时尚个性,个性化设计融入了生活的方方面面。这款="://www.lemeizhai.com/Picture.asp?PicClassID=88" target="_self" style="font-size: 24px; text-decoration: underline;">二层别墅设计是我表弟给自己结婚用的,特点就是隐私安全。这款现代别墅设计有阳光房水池就跟日本住的别墅一样的布局。

别墅层数: 二层
别墅风格: 现代
占地面积:300㎡
开 间:15m
进 深:20m
建筑占地:15m×20m
建筑面积:389㎡
主体造价:53.0~58.0万
建筑结构:砖混结构


主体设计:

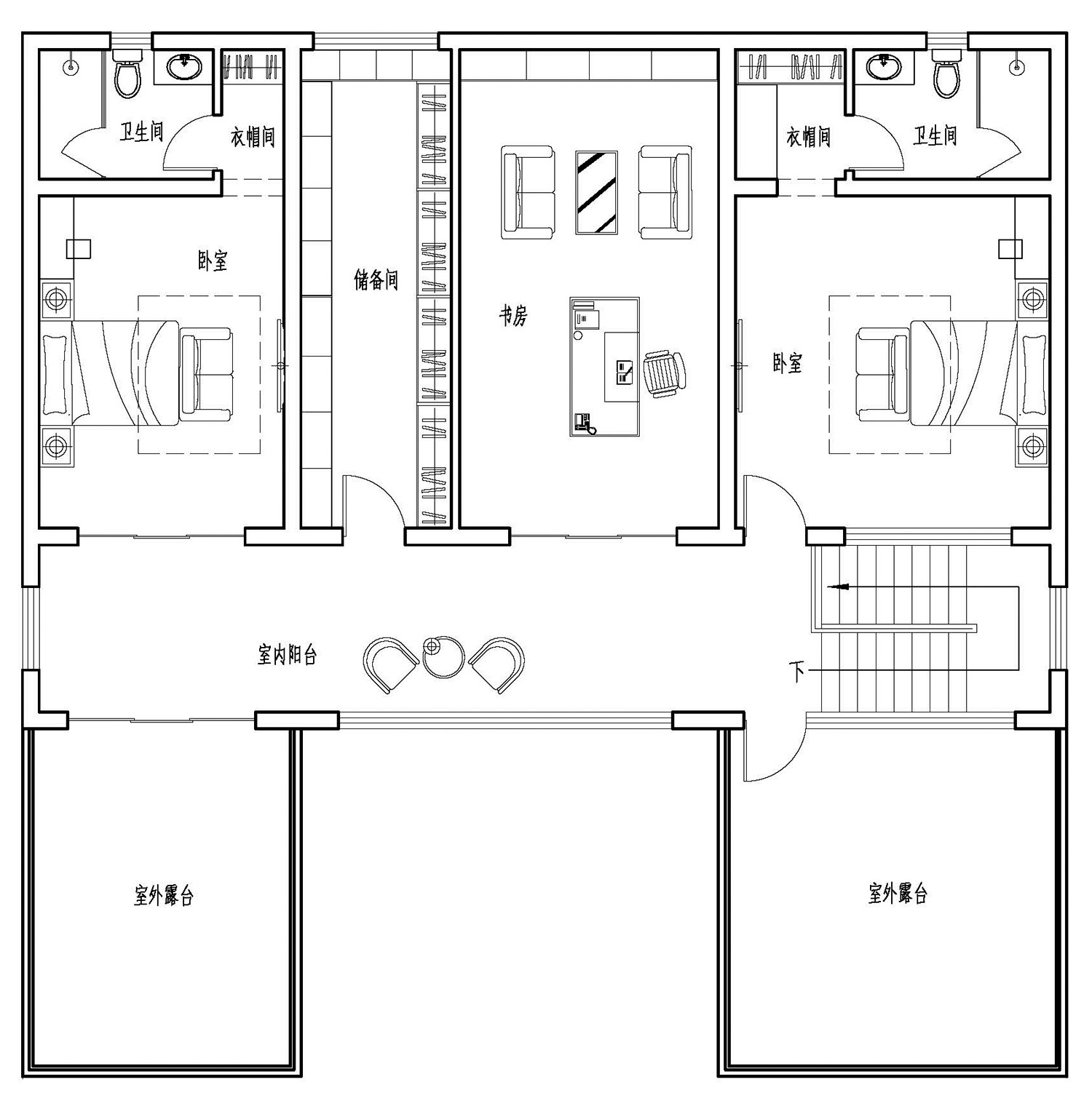
客厅、餐厅、厨房、卧室、公卫、阳台、露台。

。
转载请注明出自轩鼎别墅设计:://www.lemeizhai.com/index.asp