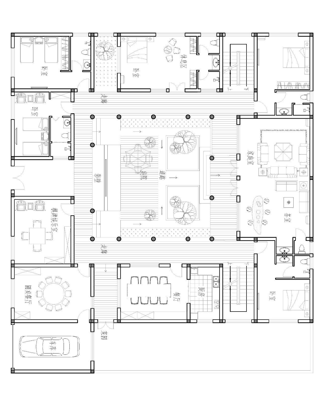
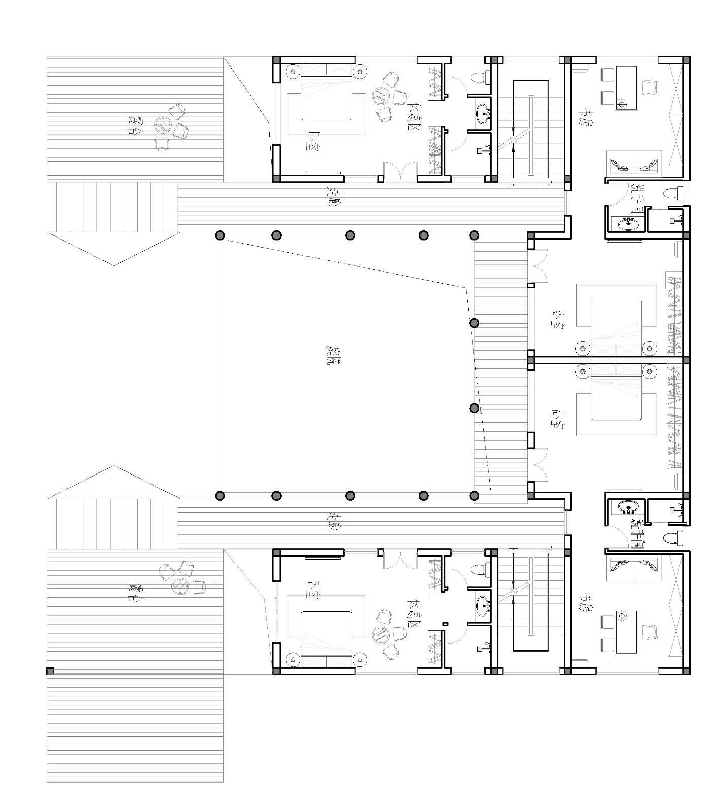
提起四合院朋友们可能想到的一个字就是贵!今天给大家推荐的是一款仿四合院的="://www.lemeizhai.com/Picture.asp?PicClassID=88" target="_self">二层别墅设计,这款别墅主体造价虽然不是大多数人承受的起的,但比真正的四合院便宜很多!

别墅层数: 二层
别墅风格: 中式
占地面积:571㎡
开 间:25.4m
进 深:22.5m
建筑占地:25.4m×22.5m
建筑面积:550㎡
主体造价:79.0~84.0万
建筑结构:框架结构


主体设计:

客厅、餐厅、厨房、卧室、公卫、阳台、露台。

。
转载请注明出自轩鼎别墅设计:://www.lemeizhai.com/index.asp