现代化的今天,人们的生活早已今非昔比,市场经济和现代生产力让人们的生存质量提高了不少,盖房子所需的材料也能买得到。今天给大家推荐一款三层="://www.lemeizhai.com/search.asp?SearchType=Software&imageField.x=35&imageField.y=33&SearchKey=%D6%D0%CA%BD%B1%F0%CA%FB%C9%E8%BC%C6" target="_self" style="font-size: 24px; text-decoration: underline;">新中式别墅设计,白墙黑瓦好不漂亮。

别墅层数: 三层
别墅风格: 中式
占地面积:117㎡
开 间:10.9m
进 深:10.8m
建筑占地:10.9m×10.8m
建筑面积:222㎡
主体造价:29.0~34.0万
建筑结构:砖混结构


主体设计:

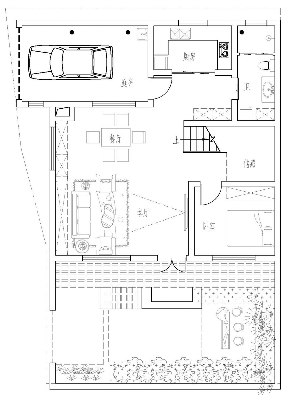
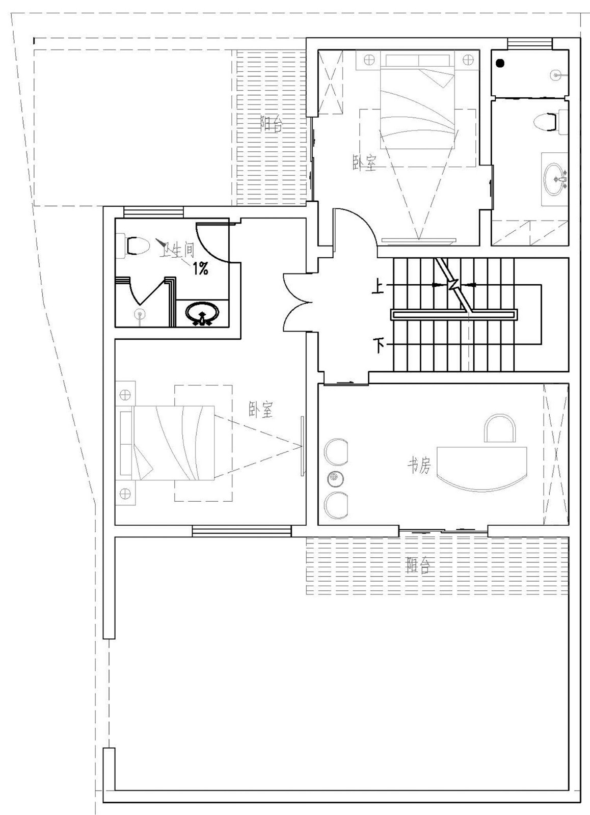
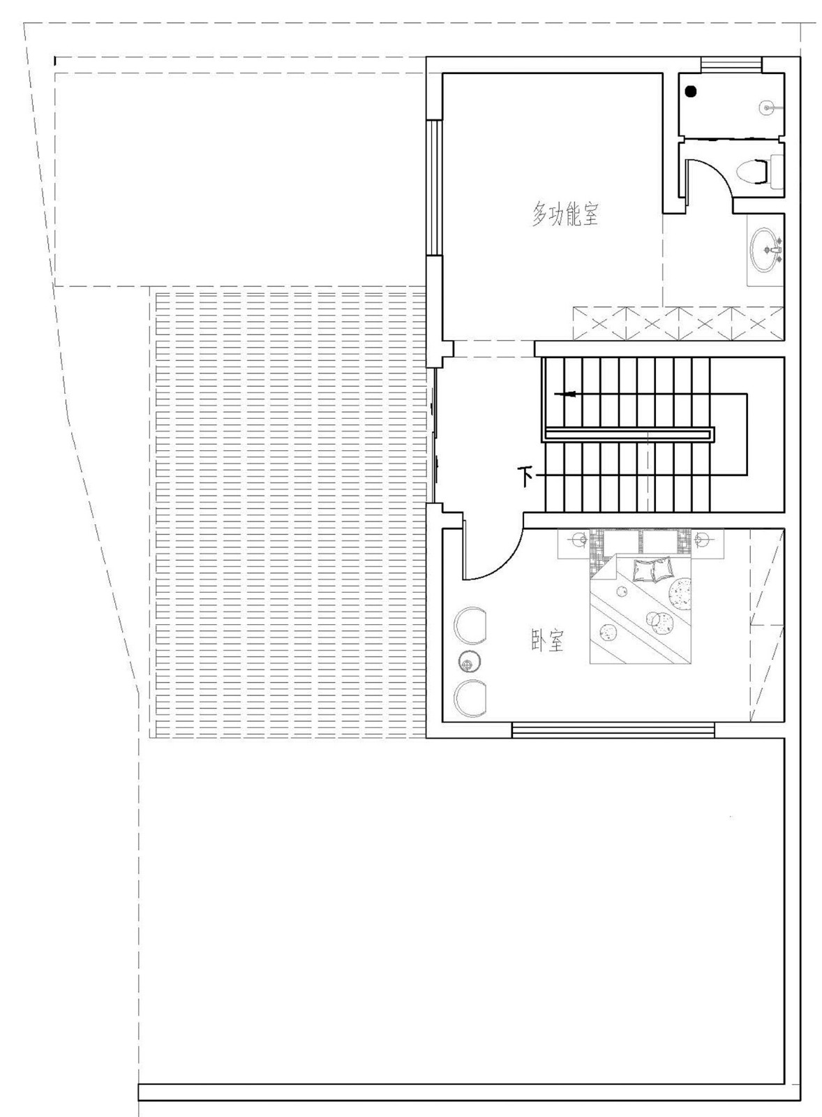
客厅、餐厅、厨房、卧室、公卫、阳台、露台。

。

转载请注明出自轩鼎别墅设计:://www.lemeizhai.com/index.asp