年轻努力赚钱,老来享受晚年,有钱的老年生活多姿多彩,河北吴先生是退休的老教授,他非常喜欢农村,在农村建造了一栋小别墅,这款别墅是设计师刘工设计的,是一款="://www.lemeizhai.com/Picture.asp?PicClassID=88" target="_self" style="font-size: 24px; text-decoration: underline;">二层别墅设计属于欧式别墅。吴先生的欧式别墅配色经典,红色瓦片米黄色和白色真石漆,还漂亮的山花。

别墅层数: 二层
别墅风格: 欧式
占地面积:185㎡
开 间:12.8m
进 深:14.5m
建筑占地:12.8m×14.5m
建筑面积:338㎡
主体造价:49.0~54.0万
建筑结构:砖混结构


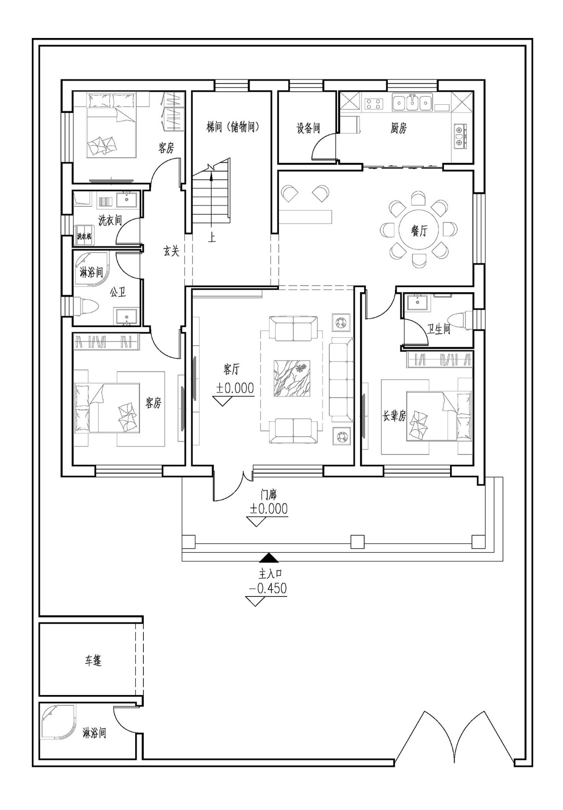
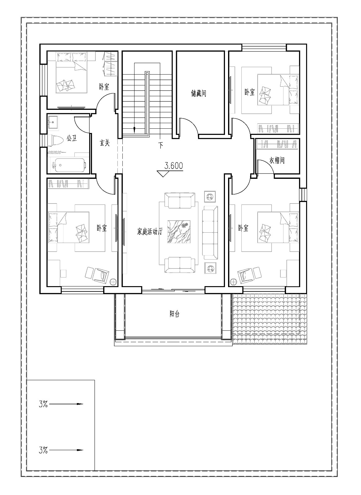
主体设计:

客厅、餐厅、厨房、卧室、公卫、阳台、露台。

。
转载请注明出自轩鼎别墅设计:://www.lemeizhai.com/index.asp