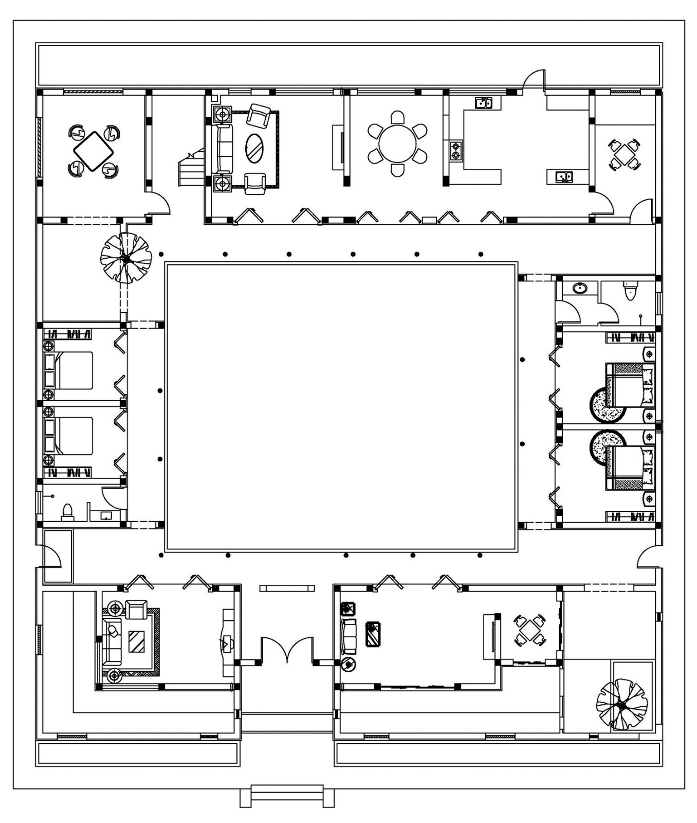
="://www.lemeizhai.com/search.asp?SearchType=Software&imageField.x=42&imageField.y=27&SearchKey=%D0%C2%D6%D0%CA%BD" target="_self" style="font-family: 楷体, 楷体_GB2312, SimKai; font-size: 24px; text-decoration: underline;">新中式别墅设计很受国人的喜爱,今天推荐的新中式仿古类型的二层合院别墅非常不错。传统的院落布局,不传统的建筑结构,清新舒爽的外墙装修,既有古建筑的风骨又有现代别墅的特点。

别墅层数: 二层
别墅风格: 中式
占地面积:650㎡
开 间:25m
进 深:26m
建筑占地:25m×26m
建筑面积:337㎡
主体造价:45.0~50.0万
建筑结构:框架结构


主体设计:

客厅、餐厅、厨房、卧室、公卫、阳台、露台。

。
转载请注明出自轩鼎别墅设计:://www.lemeizhai.com/index.asp