这是一款非常漂亮实用的新中式别墅设计,是肖总私人订制的三层款,这款别墅的外形决定了它是砖混结构,白墙黑瓦些许青砖与木质装饰点缀让别墅更加养眼!想要更多图纸请点击="://www.lemeizhai.com/index.asp" target="_self">别墅设计图及效果图

别墅层数: 三层
别墅风格: 新中式
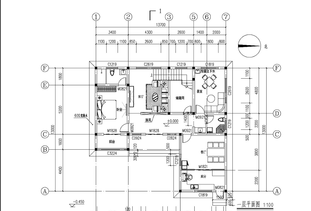
占地面积:145㎡
开 间:13.7m
进 深:13m
建筑占地:13.7m×13m
建筑面积:397㎡
主体造价:35.0~40.0万
建筑结构:砖混结构


主体设计:

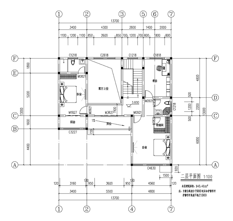
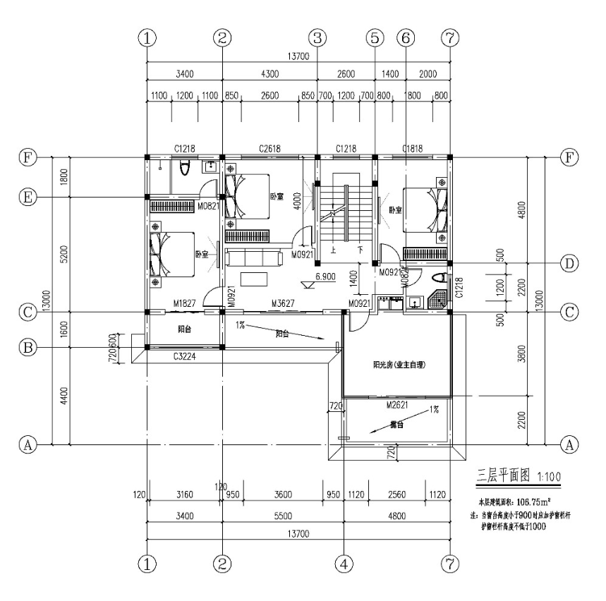
客厅、餐厅、厨房、卧室、公卫、阳台、露台。


。
转载请注明出自轩鼎别墅设计:://www.lemeizhai.com/index.asp